Bénéficiez des services de nos partenaires locaux soigneusement sélectionnés
pour vous accompagner dans votre parcours d'achat immobilier

À vendre - courbevoie hôtel de ville - local commercial de 3 niveaux de 740,44 m² avec jardin

— Courbevoie 92400 —
3 100 000 €
750 m²

Nos partenaires locaux
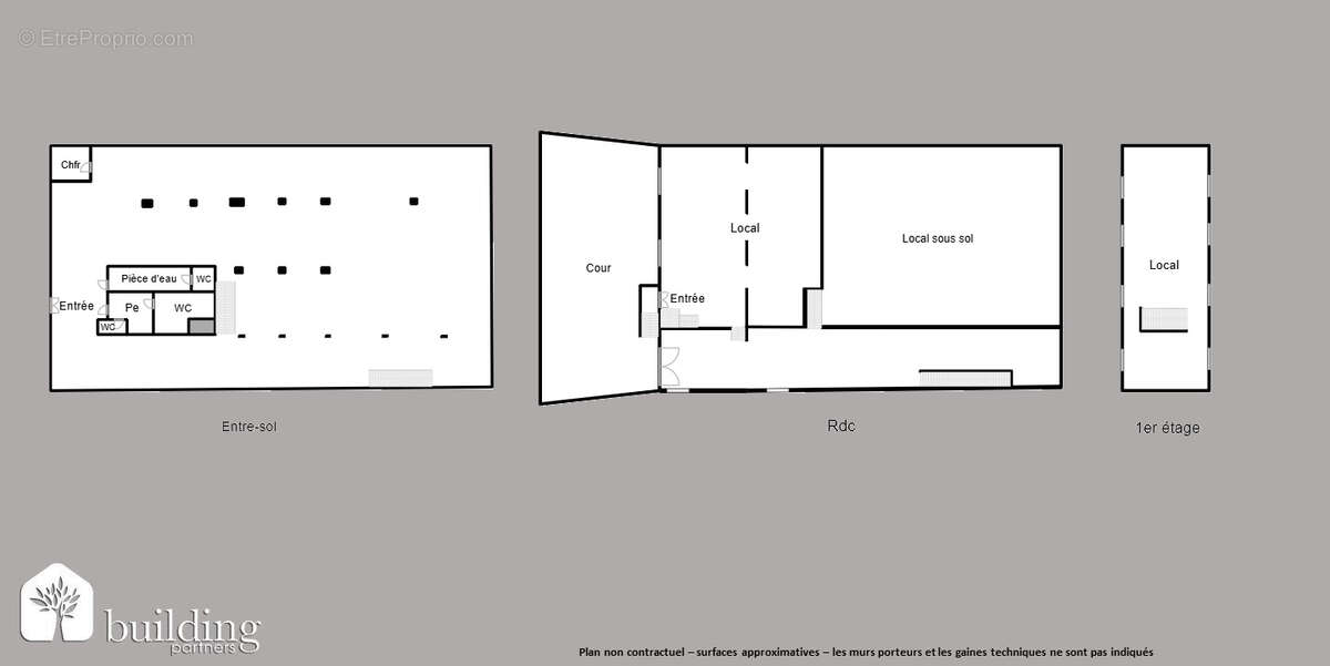
Situé à Courbevoie, au coeur du quartier dynamique de l'Hôtel de Ville, BUILDING PARTNERS vous propose à la vente un vaste local commercial en triplex, d'une surface totale au sol d'environ 740,44 m² (724,62 m² loi Carrez), complété par un agréable jardin privatif de 121,24 m². Ce bien rare, aux volumes généreux et au fort potentiel d'aménagement, convient idéalement à des investisseurs ou porteurs de projet professionnel en quête d'un emplacement stratégique. Répartitions des surfaces sur trois niveaux : Rez-de-chaussée haut (niveau rue) ? plateau d'environ 225,83 m², configuré actuellement en trois espaces distincts, offrant une flexibilité d'usage rare. Rez-de-chaussée bas ? vaste plateau d'environ 412,16 m², incluant un local technique (chaufferie) et deux points d'eau avec WC. Ce niveau, partiellement en rez-de-jardin, bénéficie d'un accès direct vers l'extérieur. 1er étage ? plateau supplémentaire de 86,63 m², venant compléter l'ensemble et surplombant le rez-de-chaussée haut. Travaux à prévoir : des aménagements intérieurs sont à anticiper, offrant une opportunité de personnalisation totale en fonction de l'activité envisagée (structure porteuse permettant de repenser aisément la distribution). L'enveloppe existante, de caractère industriel et atypique, se prête à de multiples exploitations. Usages et projets potentiels : Grâce à ses grandes surfaces modulables et à son jardin privatif, cet ensemble immobilier se prête à de nombreux projets professionnels. Il pourrait convenir, par exemple, pour une salle de sport ou de bien-être, un restaurant gastronomique ou espace événementiel, un laboratoire de cuisine ou atelier de production, une clinique privée ou centre de soins, voire un espace de coworking/bureaux innovants. Surtout, son configuration et son emplacement ouvrent la voie à un projet d'hébergement touristique de type résidence hôtelière / meublés de tourisme, une option particulièrement valorisée dans ce secteur en plein essor. Atout réglementaire ? permis de construire accordé : Un permis de construire récemment obtenu (dossier consultable sur demande) autorise la réhabilitation du site en une résidence de tourisme. Ce projet d'autorisation validé porte sur la création de 19 logements meublés à usage hôtelier, complétés par des locaux communs et un réaménagement paysager du jardin existant. Cet accord administratif confirme la faisabilité réglementaire d'une telle transformation et conforte l'intérêt du lieu pour une exploitation en tourisme meublé. Les documents d'urbanisme et détails du permis accordé sont disponibles sur demande pour tout investisseur intéressé. En résumé, ce local en triplex aux dimensions exceptionnelles offre une base idéale pour développer une activité professionnelle d'envergure, dans un quartier recherché de Courbevoie. Son grand jardin privatif, sa configuration atypique sur trois niveaux et la validation administrative déjà obtenue pour un projet hôtelier constituent des atouts majeurs pour concrétiser votre projet. Contactez-nous pour obtenir toute information complémentaire sur cette opportunité rare sur le secteur.
Voir plus

Honoraires à la charge du vendeur.
Barème des honoraires

Prêt immobilier

Vous souhaitez connaître votre capacité d’emprunt et trouver le meilleur crédit immobilier ?
Réaliser une simulation gratuite

Commerce à COURBEVOIE
Commerce à COURBEVOIE
Commerce à COURBEVOIE
Commerce à COURBEVOIE
Commerce à COURBEVOIE
Commerce à COURBEVOIE
Commerce à COURBEVOIE
Commerce à COURBEVOIE
Commerce à COURBEVOIE
Commerce à COURBEVOIE
Commerce à COURBEVOIE
Ce site est protégé par reCAPTCHA la Politique de confidentialité et les Conditions d’utilisation de Google s’appliquent.
Obtenir un prêt immobilier au meilleur taux ?

En poursuivant votre navigation sans modifier vos paramètres, vous acceptez l'utilisation de cookies susceptibles de réaliser des statistiques de visite. Cliquez ici pour plus d'informations