Bénéficiez des services de nos partenaires locaux soigneusement sélectionnés
pour vous accompagner dans votre parcours d'achat immobilier

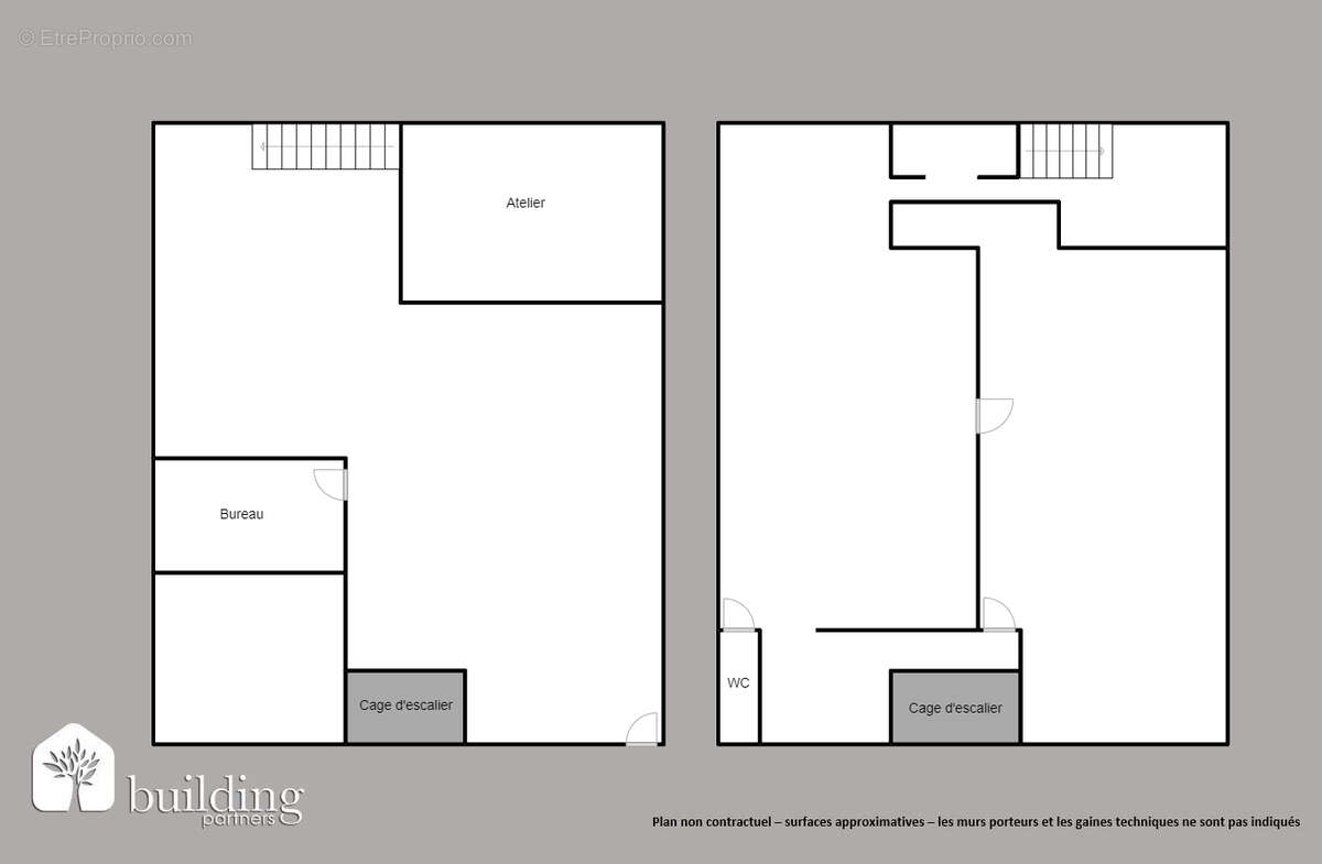
À vendre - asnières-sur-seine quartier bac - hangar réhabilitable de 400 m² sur 2 niveaux

— Asnieres-Sur-Seine 92600 —
1 575 000 €
400 m²
6 pièces

Nos partenaires locaux
Situé dans le très recherché quartier résidentiel du Bac à Asnières-sur-Seine, BUILDING PARTNERS vous propose à la vente un bien rare à fort potentiel : un ancien hangar de 400 m² répartis sur deux niveaux, édifié sur une parcelle de 217 m². Ce bien atypique, baigné de lumière grâce à sa grande hauteur sous plafond, se prête à de nombreuses possibilités de transformation : immeuble d'habitation, loft d'architecte avec terrasse, espace professionnel ou mixte? Les volumes bruts, les proportions généreuses et l'environnement pavillonnaire calme permettent d'imaginer un projet sur-mesure à fort potentiel patrimonial et locatif. Le quartier Bac, prisé pour son ambiance paisible, sa proximité avec les commerces de bouche, les écoles de qualité et les transports vers Paris, constitue un emplacement stratégique pour un projet de réhabilitation ambitieux. Ce bien rare à la vente séduira les investisseurs, architectes ou porteurs de projet à la recherche d'un lieu unique et inspirant. N'hésitez pas à nous contacter pour plus d'informations ou organiser une visite. Depuis 1993, BUILDING PARTNERS accompagne les propriétaires dans la vente de biens immobiliers de standing sur l'ouest parisien. Notre force ? Une organisation unique avec deux rôles experts : >Les Brokers, spécialisés dans la prospection et la valorisation de votre bien. >Les Sellers, experts en négociation et en mise en relation avec notre portefeuille d'acheteurs qualifiés. Avec 5 agences implantées au coeur des quartiers les plus recherchés (Paris 16e, Paris 17e, Neuilly, Levallois, Courbevoie), nous vous offrons une visibilité maximale, un accompagnement personnalisé et un engagement total jusqu'à la signature. Confiez-nous votre bien pour une vente rapide, au meilleur prix. Estimation offerte, confidentielle et sans engagement.
Voir plus

Référence: 16741
Honoraires à la charge du vendeur.
Barème des honoraires

Prêt immobilier

Vous souhaitez connaître votre capacité d’emprunt et trouver le meilleur crédit immobilier ?
Réaliser une simulation gratuite

Appartement à ASNIERES-SUR-SEINE
Appartement à ASNIERES-SUR-SEINE
Appartement à ASNIERES-SUR-SEINE
Appartement à ASNIERES-SUR-SEINE
Appartement à ASNIERES-SUR-SEINE
Appartement à ASNIERES-SUR-SEINE
Appartement à ASNIERES-SUR-SEINE
Appartement à ASNIERES-SUR-SEINE
Ce site est protégé par reCAPTCHA la Politique de confidentialité et les Conditions d’utilisation de Google s’appliquent.
Obtenir un prêt immobilier au meilleur taux ?

En poursuivant votre navigation sans modifier vos paramètres, vous acceptez l'utilisation de cookies susceptibles de réaliser des statistiques de visite. Cliquez ici pour plus d'informations