Bénéficiez des services de nos partenaires locaux soigneusement sélectionnés
pour vous accompagner dans votre parcours d'achat immobilier

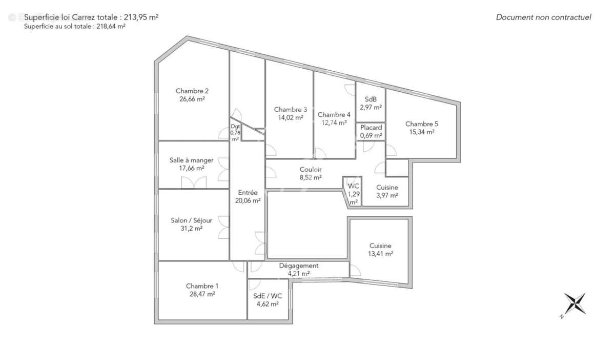
Paris 17e - pereire / berthier - appartement à vendre - 7 pièces - 213,95m² carrez - 5/6 chambres - balcon - vue dégagée.

— Paris-17e 75017 —
1 800 000 €
214 m²
7 pièces
balcon/terrasseascenseur

Nos partenaires locaux
À proximité immédiate de la place Pereire, des transports, des commodités et d'écoles privées prestigieuses.
Dans un bel immeuble haussmannien gardienné, superbe appartement de 213,95m² loi Carrez situé au deuxième étage par ascenseur.
Le plan agréable et fonctionnel comporte une galerie d'entrée, une double réception avec une très belle hauteur sous plafond ouvrant sur un balcon filant, une cuisine séparée, une chambre parentale avec salle de douche adjacente, quatre autres chambres dont une d'angle, une salle de bains, des toilettes séparés ainsi qu'un dégagement aménagé en petite cuisine.
Une cave spacieuse est également inclue.
Vous serez séduit par les très beaux volumes, la luminosité et le charme de l’ancien préservé (parquet, moulures et cheminées).
Voir plus

Référence: 2754WAGBOU
Barème des honoraires
DPE
A
B
C
D
E
F
G
GES
A
B
C
D
E
F
G

Prêt immobilier

Vous souhaitez connaître votre capacité d’emprunt et trouver le meilleur crédit immobilier ?
Réaliser une simulation gratuite

Appartement à PARIS-17E
Appartement à PARIS-17E
Appartement à PARIS-17E
Appartement à PARIS-17E
Appartement à PARIS-17E
Appartement à PARIS-17E
Appartement à PARIS-17E
Appartement à PARIS-17E
Appartement à PARIS-17E
Appartement à PARIS-17E
Appartement à PARIS-17E
Appartement à PARIS-17E
Appartement à PARIS-17E
Appartement à PARIS-17E
Appartement à PARIS-17E
Appartement à PARIS-17E
Appartement à PARIS-17E
Appartement à PARIS-17E
Ce site est protégé par reCAPTCHA la Politique de confidentialité et les Conditions d’utilisation de Google s’appliquent.
Obtenir un prêt immobilier au meilleur taux ?

En poursuivant votre navigation sans modifier vos paramètres, vous acceptez l'utilisation de cookies susceptibles de réaliser des statistiques de visite. Cliquez ici pour plus d'informations