Bénéficiez des services de nos partenaires locaux soigneusement sélectionnés
pour vous accompagner dans votre parcours d'achat immobilier

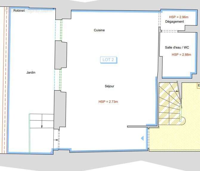
Appartement 28m² à toulouse

— Toulouse 31000 —
150 000 €
28 m²
1 pièce
balcon/terrasse

Nos partenaires locaux
STUDIO AVEC TERRASSE / ST AUBIN

Grand studio avec cour privative.

À seulement deux pas de Jean-Jaurès, il bénéficie d'un emplacement stratégique dans le quartier Saint-Aubin, connu pour son ambiance chaleureuse, ses commerces de proximité, son marché réputé et sa très forte demande locative.

L'appartement offre une surface de 28 m² et s'ouvre directement sur une cour intérieure calme, en plein centre-ville.

Le logement dispose de double vitrage et d'un chauffage électrique, garantissant un bon confort thermique. Le standing général est soigné, sans travaux à prévoir.

Grâce à sa localisation premium et à sa configuration idéale, ce studio constitue une opportunité parfaite pour un investissement locatif sécurisé en hypercentre.

Bien actuellement loué :
Loyer HC : 520 €
Charges : 60 €
Bail de 3 ans signé le 18/08/2021



Honoraires inclus de 5.26% TTC à la charge de l'acquéreur. Prix hors honoraires 142 500 €. Dans une copropriété de 12 lots. Aucune procédure n'est en cours. Classe énergie D, Classe climat B Montant estimé des dépenses annuelles d'énergie pour un usage standard : entre 667.00 € et 904.00 € sur les années 2021, 2022 et 2023 (abonnements compris). Les informations sur les risques auxquels ce bien est exposé sont disponibles sur le site Géorisques : georisques.gouv.fr.
Voir plus

Référence: VA4158-TAUR
Bien en copropriété. Nombre de lots : 12.
Honoraires d'agence de 5.26% à la charge de l'acquéreur
Barème des honoraires
DPE
A
B
C
D
E
F
G
GES
A
B
C
D
E
F
G

Prêt immobilier

Vous souhaitez connaître votre capacité d’emprunt et trouver le meilleur crédit immobilier ?
Réaliser une simulation gratuite

Appartement à TOULOUSE
Appartement à TOULOUSE
Appartement à TOULOUSE
Appartement à TOULOUSE
Appartement à TOULOUSE
Appartement à TOULOUSE
Ce site est protégé par reCAPTCHA la Politique de confidentialité et les Conditions d’utilisation de Google s’appliquent.
Obtenir un prêt immobilier au meilleur taux ?

En poursuivant votre navigation sans modifier vos paramètres, vous acceptez l'utilisation de cookies susceptibles de réaliser des statistiques de visite. Cliquez ici pour plus d'informations