Bénéficiez des services de nos partenaires locaux soigneusement sélectionnés
pour vous accompagner dans votre parcours d'achat immobilier

Appartement 28m² à aix-en-provence

— Aix-En-Provence 13090 —
220 000 €
29 m²
1 pièce
parkingbalcon/terrasseascenseur

Nos partenaires locaux
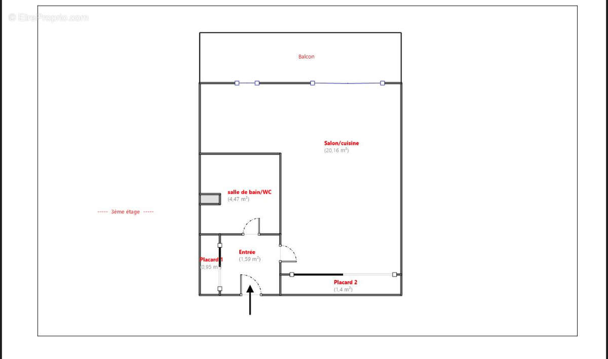
Aixoise Immobilière est fière de vous présenter à la vente ce grand T1 idéalement situé au sein d'une résidence des années 2000, sécurisée et parfaitement entretenue, avec ascenseur.D'une superficie de 28.57 m², ce bien se compose d'une belle pièce de vie lumineuse, d'un espace cuisine / kitchenette, ainsi que d'une salle d'eau avec WC.L'appartement s'ouvre sur une agréable terrasse de 9 m², offrant un véritable espace extérieur, rare sur le secteur.Un parking en sous-sol complète ce bien.Sa localisation est un atout majeur : à seulement 5 minutes à pied des Allées Provençales et du centre historique d'Aix-en-Provence, il conviendra parfaitement pour une résidence principale, un pied-à-terre ou un investissement locatif.
Voir plus

Référence: AG1261-844
DPE
A
B
C
D
E
F
G
GES
A
B
C
D
E
F
G

Prêt immobilier

Vous souhaitez connaître votre capacité d’emprunt et trouver le meilleur crédit immobilier ?
Réaliser une simulation gratuite

Appartement à AIX-EN-PROVENCE
Appartement à AIX-EN-PROVENCE
Appartement à AIX-EN-PROVENCE
Appartement à AIX-EN-PROVENCE
Appartement à AIX-EN-PROVENCE
Appartement à AIX-EN-PROVENCE
Appartement à AIX-EN-PROVENCE
Ce site est protégé par reCAPTCHA la Politique de confidentialité et les Conditions d’utilisation de Google s’appliquent.
Obtenir un prêt immobilier au meilleur taux ?

En poursuivant votre navigation sans modifier vos paramètres, vous acceptez l'utilisation de cookies susceptibles de réaliser des statistiques de visite. Cliquez ici pour plus d'informations