Bénéficiez des services de nos partenaires locaux soigneusement sélectionnés
pour vous accompagner dans votre parcours d'achat immobilier

Votre maison à chalamont

— Chalamont 01320 —
252 526 €
81 m² / 232 m²
4 pièces
parkingjardin

Nos partenaires locaux
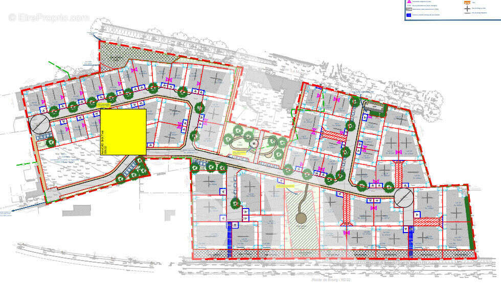
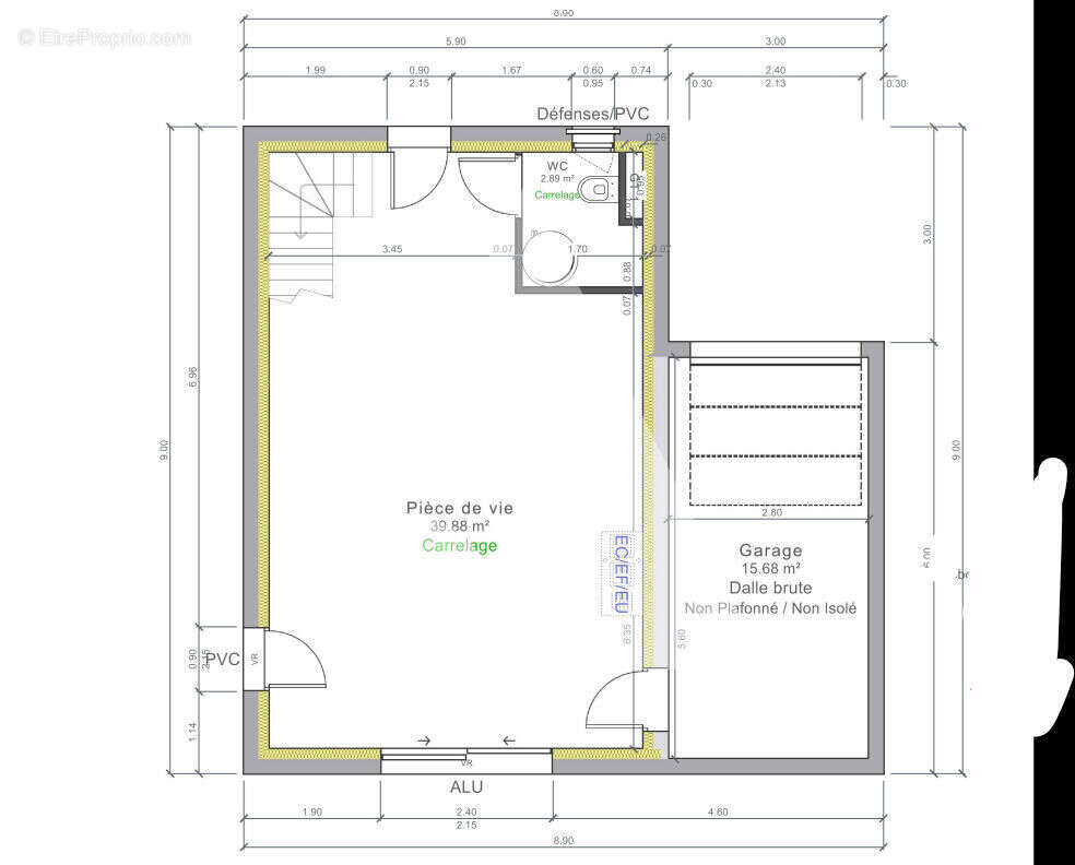
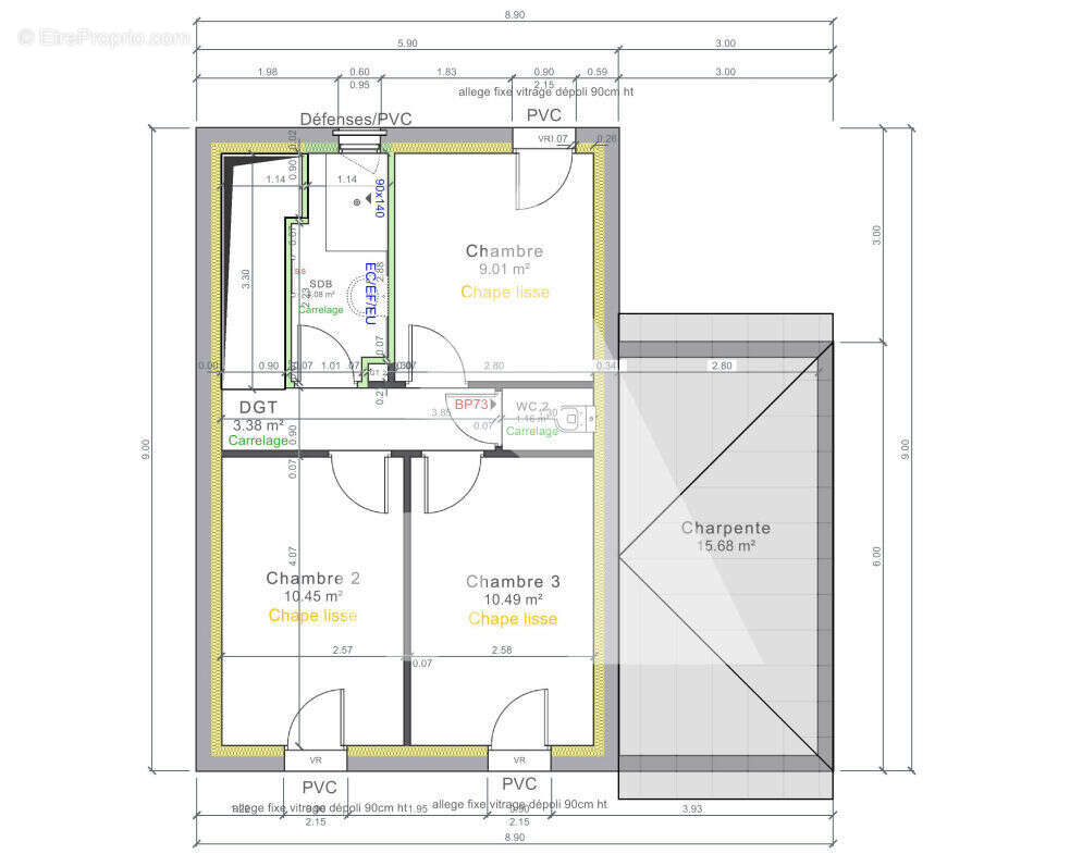
Vous rêvez de Nature de sérénité, nous vous avons sélectionné, une adresse d'exception dans la Dombes. Idéal pour votre projet de vie , et pour un premier achat , investissez dans la charmante commune de Chalamont. Offrez vous le confort d'une maison pour le prix d'un appartement ! Votre Conviviale maison d'environ 81 m² habitables, plus garage, est composée : En rez de chaussé d'un espace de vie traversant, et Lumineux de 39.88m², et d'un WC Imaginez votre future cuisine ouverte, la vue sur votre jardinet avec vos petites fleurs, par la baie vitrée, la porte fenêtre pour pouvoir surveiller votre enfant qui joue dehors.... A l'étage l'espace nuit : trois chambres, une salle d'eau avec sèche serviettes, un WC indépendant. Autre avantage le garage avec porte sectionnelle motorisée, offre un accès dans la pièce de vie, avec une porte isolante. Une réalisation personnalisable, qui vous offre des prestations de qualité, en RE 2020: Enduit gratté, tuiles terre cuite, film sous toiture; menuiseries ( RAL 7035) avec volets roulants électriques; carrelage 60X60, chauffage individuel par pompe à chaleur (AIR/AIR); chauffe eaux thermodynamique. Porte de garage sectionnelle motorisée. Finitions, agencements intérieur et extérieurs à prévoir. Cuisine équipée , et meuble vasque, non fournis à la charge des clients. Situé dans un Village fleuri et agréable, au riche patrimoine architectural, qui séduit par sa tranquillité et son atmosphère naturelle apaisante, tout en vous offrant une structure locale qualitative avec tous commerces, cabinet médical, services, équipements sportifs, école primaire très proche du centre, collèges et lycées accessibles en moins de 15 min en voiture ; gare à 10mn ; aéroport de Lyon-Saint-Exupéry à moins de 40 min . Prix de vente 252 526 euros. Honoraires à la charge du vendeur. Référence 2278-1F. N'hésitez plus car votre budget pour un appartement vous permet aussi de vivre en maison individuelle, dans un cadre de vie préservé, et de personnaliser votre chez vous, à votre rythme et selon vos envies. Alors contactez moi vite ! Vidéos visibles sur notre site et sur le compte INSTAGRAM: fabienne_sixiemeavenue_69 Pour plus de renseignements contactez: Fabienne Creola au [Coordonnées masquées] . Agent commercial en EI, au RSAC 340180800 Lyon pour Sixième Avenue agence Miribel-Fontaines. Fabienne CREOLA (EI) Agent Commercial - Numéro RSAC : 340128800 - lyon.
Voir plus

Référence: 2278F
Barème des honoraires

Prêt immobilier

Vous souhaitez connaître votre capacité d’emprunt et trouver le meilleur crédit immobilier ?
Réaliser une simulation gratuite

Maison à CHALAMONT
Maison à CHALAMONT
Maison à CHALAMONT
Maison à CHALAMONT
Maison à CHALAMONT
Maison à CHALAMONT
Maison à CHALAMONT
Maison à CHALAMONT
Maison à CHALAMONT
Maison à CHALAMONT
Maison à CHALAMONT
Maison à CHALAMONT
Ce site est protégé par reCAPTCHA la Politique de confidentialité et les Conditions d’utilisation de Google s’appliquent.
Obtenir un prêt immobilier au meilleur taux ?

En poursuivant votre navigation sans modifier vos paramètres, vous acceptez l'utilisation de cookies susceptibles de réaliser des statistiques de visite. Cliquez ici pour plus d'informations