Bénéficiez des services de nos partenaires locaux soigneusement sélectionnés
pour vous accompagner dans votre parcours d'achat immobilier

Appartement lumineux avec balcon, cave et garage

— Thionville 57100 —
240 000 €
83 m²
4 pièces
parking

Nos partenaires locaux
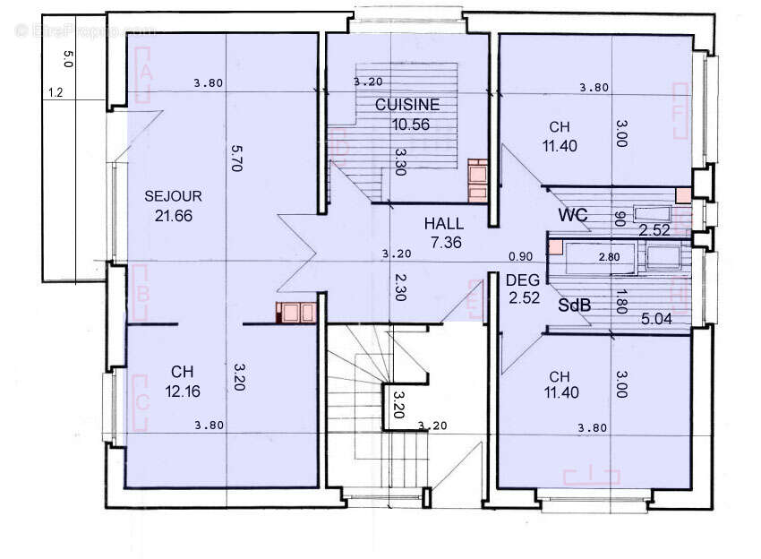
THIONVILLE - RUE BERTHE AU GRAND PIED Idéalement situé à moins de 2 km de la Gare de Thionville ( environ 6 min et voiture et 23 min à pieds), à moins de 25 min de la frontière luxembourgeoise et à proximité immédiate des commerces. Au rez-de-chaussée surélevé d'une maison individuelle divisée en 2 appartements (en cours de mise en copropriété), découvrez cet appartement 4 pièces de plus de 83 m², aussi fonctionnel que lumineux. Il se compose d'une grande entrée desservant un agréable séjour baigné de lumière (avec accès au balcon idéalement exposé), d'une cuisine indépendante aménagée, de trois chambres, d'une salle de bains et d'un WC indépendant. Les parquets des pièces de vie et de nuit sont en parfait état, et les murs prêts à tapisser selon vos envies. L'appartement profite de travaux très récents, offrant confort et sérénité pour les années à venir: - isolation des murs par l'extérieur - travaux d'électricité (incluant notamment le renforcement complet de la colonne électrique, permettant à chaque appartement d'accueillir une pompe à chaleur) En annexes, vous disposerez de deux caves au sous-sol et d'un garage à l'arrière de la copropriété (avec possibilité d'acquérir un second garage!). DPE C - chauffage individuel gaz Très faibles charges de copropriété à prévoir (assurance du bâtiment et électricité des communs uniquement). 2 lots principaux. Montant estimé des dépenses annuelles d'énergie pour un usage standard entre 1390 euros et 1940 euros (prix moyens des énergies indexés sur les années 2021, 2022, 2023 (abonnements compris)). Les informations sur les risques auxquels ce bien est exposé sont disponibles sur le site Géorisques : www.georisques.gouv.fr '. Honoraires agence charge vendeur. Copropriété de 9 lots - dont 2 lots habitation.(Pas de procédure en cours).
Voir plus

Référence: 9590
Bien en copropriété. Nombre de lots : 9.
Honoraires à la charge du vendeur.
Barème des honoraires
DPE
A
B
C
D
E
F
G
GES
A
B
C
D
E
F
G

Prêt immobilier

Vous souhaitez connaître votre capacité d’emprunt et trouver le meilleur crédit immobilier ?
Réaliser une simulation gratuite

Appartement à THIONVILLE
Appartement à THIONVILLE
Appartement à THIONVILLE
Appartement à THIONVILLE
Appartement à THIONVILLE
Appartement à THIONVILLE
Appartement à THIONVILLE
Appartement à THIONVILLE
Appartement à THIONVILLE
Appartement à THIONVILLE
Appartement à THIONVILLE
Appartement à THIONVILLE
Appartement à THIONVILLE
Appartement à THIONVILLE
Ce site est protégé par reCAPTCHA la Politique de confidentialité et les Conditions d’utilisation de Google s’appliquent.
Obtenir un prêt immobilier au meilleur taux ?

En poursuivant votre navigation sans modifier vos paramètres, vous acceptez l'utilisation de cookies susceptibles de réaliser des statistiques de visite. Cliquez ici pour plus d'informations