Vente appartement morestel(38510) 290 600ᅵ

— Morestel 38510 —
290 600 €
76 m²
3 pièces

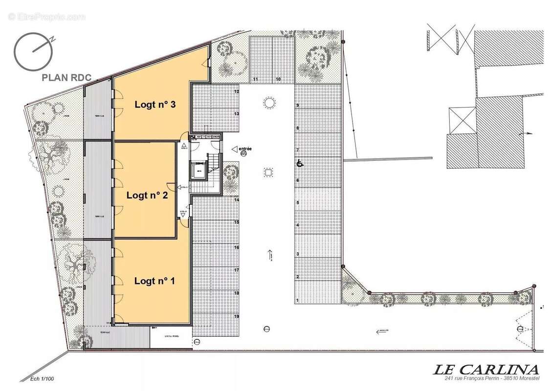
Appartement t3 rdc 75m² - morestel a deux pas des commerces, services et école, arthurimmo morestel a le plaisir de vous présenter ce très bel appartement t3 en rez de jardin, d'une surface habitable de 75 m² composé de deux chambres, d'une salle de bain, d'un wc, d'une cuisine ouverte sur le séjour donnant accès à la terrasse de 31 m² avec un jardin privatif de 41 m². deux places de parking sont vendues avec l'appartement. la résidence le carlina est un programme de standing avec ascenseur de 10 logements au coeur de morestel, avec accès sécurisé. composé de deux t2 et de 8 t3 avec de beaux balcons ou terrasses avec jardin privatif au rdc, ce programme propose de belles prestations comme des menuiseries aluminium, volets roulants motorisés, chauffe-eau thermodynamique, carrelage 60x60... n'hésitez pas à nous consulter pour plus d'information sur ce programme et ses prestations. programme en vefa livraison prévue 2ème semestre 2027. assainissement collectif. 10 lots. charges prévisionnelles: 1,50euros par m² (estimation). mandat n° 7039 honoraires charge vendeurs. 'les informations sur les risques auxquels ce bien est exposé sont disponibles sur le site géorisques : georisques.gouv.fr'.
Voir plus

Référence: 7039B

Prêt immobilier

Vous souhaitez connaître votre capacité d’emprunt et trouver le meilleur crédit immobilier ?
Réaliser une simulation gratuite

Appartement à MORESTEL
Appartement à MORESTEL
Appartement à MORESTEL
Appartement à MORESTEL
Appartement à MORESTEL
Ce site est protégé par reCAPTCHA la Politique de confidentialité et les Conditions d’utilisation de Google s’appliquent.
Obtenir un prêt immobilier au meilleur taux ?

En poursuivant votre navigation sans modifier vos paramètres, vous acceptez l'utilisation de cookies susceptibles de réaliser des statistiques de visite. Cliquez ici pour plus d'informations