Paris 20 - rue de la duee

— Paris-20e 75020 —
700 000 €
85 m²
4 pièces
ascenseur

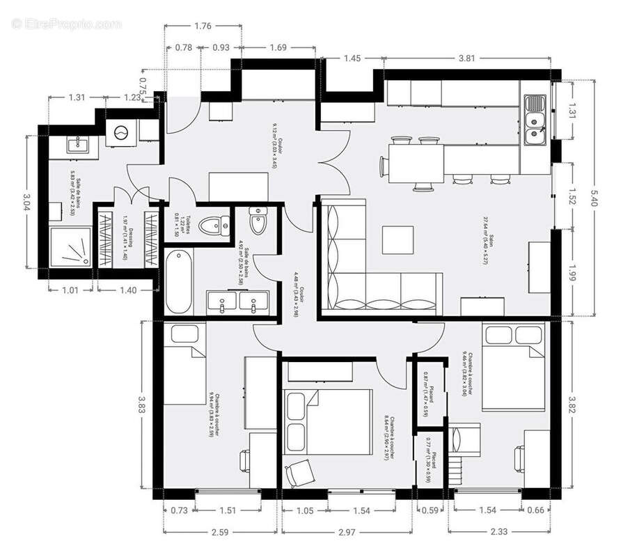
Votre agence FREDELION Gambetta vous présente en exclusivité le bien suivant : Situé au cinquième étage avec ascenseur d'un immeuble de standing des années 70 avec gardien, cet appartement familial de 85 m2, offre un cadre de vie à la fois lumineux, calme et particulièrement agréable. Dès l'entrée, les volumes sont bien pensés, avec de nombreux rangements intégrés qui structurent l'espace sans perte de place. La pièce de vie, composée d'un salon et d'une cuisine dinatoire ouverte, est exposée plein Sud. Elle bénéficie d'une belle lumière naturelle tout au long de la journée et d'une vue dégagée. L'ensemble donne sur un jardin, garantissant un environnement paisible, à l'abri de toute nuisance. L'espace nuit se compose de trois chambres aux dimensions confortables, toutes équipées de placards et orientées à l'Ouest et d'une vue dégagée, avec un agréable aperçu sur le Sacré-Coeur. L'appartement dispose également d'une grande salle de bain avec WC, d'une salle d'eau intégrant un dressing et un espace buanderie, ainsi que de WC séparés, offrant un vrai confort de vie au quotidien. Le plan est compact, fonctionnel et parfaitement adapté à une vie de famille. Un léger rafraîchissement est à prévoir, permettant de repenser l'appartement selon ses envies et de créer un véritable cocon, un havre de paix en plein coeur du 20ème arrondissement. Les transports, commerces et écoles sont accessibles à proximité immédiate. Une cave complète ce bien. Une place de parking au sein de la copropriété est proposée en supplément. (5.26 % honoraires TTC à la charge de l'acquéreur.) Copropriété de 144 lots - dont 46 lots habitation. (Pas de procédure en cours). Charges annuelles : 4000 euros.
Voir plus

Référence: 1722
Bien en copropriété. Nombre de lots : 144. Charges de copropriété : 4000 €.
Honoraires d'agence de 5.26% à la charge de l'acquéreur
DPE
A
B
C
D
E
F
G
GES
A
B
C
D
E
F
G

Prêt immobilier

Vous souhaitez connaître votre capacité d’emprunt et trouver le meilleur crédit immobilier ?
Réaliser une simulation gratuite

Appartement à PARIS-20E
Appartement à PARIS-20E
Appartement à PARIS-20E
Appartement à PARIS-20E
Appartement à PARIS-20E
Appartement à PARIS-20E
Appartement à PARIS-20E
Appartement à PARIS-20E
Appartement à PARIS-20E
Appartement à PARIS-20E
Appartement à PARIS-20E
Ce site est protégé par reCAPTCHA la Politique de confidentialité et les Conditions d’utilisation de Google s’appliquent.
Obtenir un prêt immobilier au meilleur taux ?

En poursuivant votre navigation sans modifier vos paramètres, vous acceptez l'utilisation de cookies susceptibles de réaliser des statistiques de visite. Cliquez ici pour plus d'informations