Maison 158m² à port-la-nouvelle

— Port-La-Nouvelle 11210 —
235 000 €
158 m² / 265 m²
8 pièces
jardin

Iad France - Valérie Rico vous propose : Port-la-Nouvelle (11210) Charmante commune au bord de la mer Méditerranée, nichée dans un quartier paisible, Traditionnelle Maison de Caractère de 158 m² sur un terrain de 265 m² qui offre un potentiel unique pour une rénovation sur mesure. Construite en 1956, cette propriété présente des caractéristiques authentiques qui attendent d'être sublimées par une touche moderne.

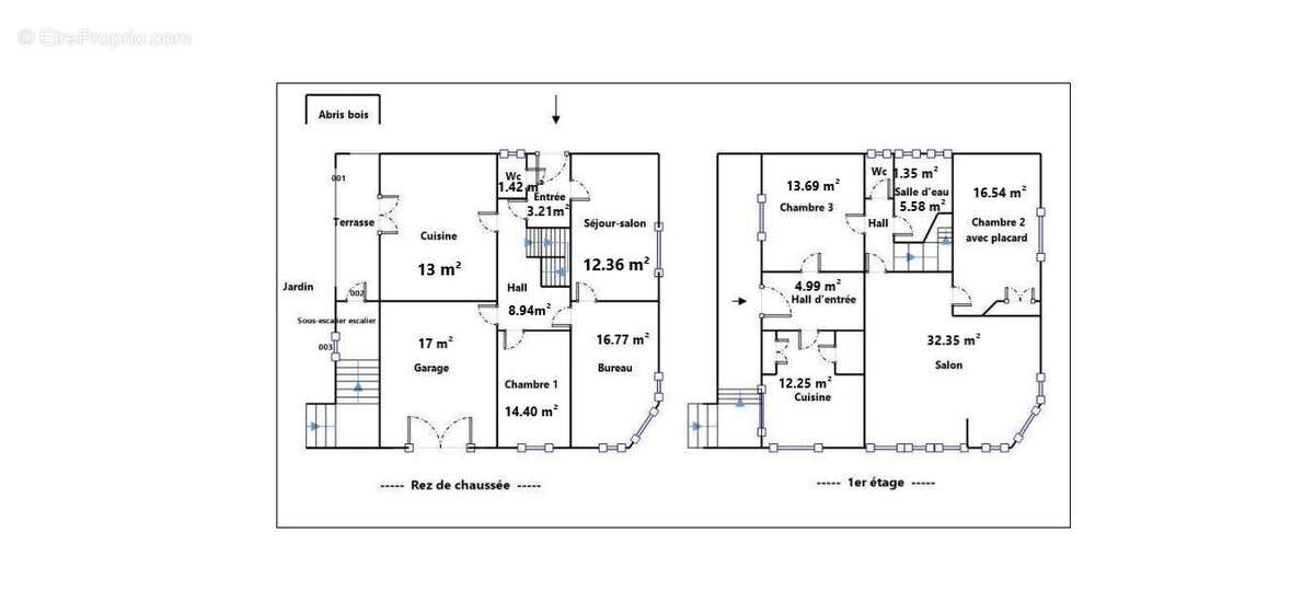
L'espace intérieur, réparti sur deux niveaux, comprend un total de 8 pièces offrant de multiples possibilités d'aménagement. Au rez-de-chaussée, vous découvrirez un salon chaleureux, une cuisine séparée, une chambre avec lavabo, un bureau et un WC. À l'étage, deux chambres spacieuses, une seconde cuisine, un salon / séjour lumineux, une salle d'eau et un WC vous attendent.

Laissez libre cours à votre créativité pour rénover cette maison et la transformer en un véritable cocon familial. Les éléments d'époque tels que les planchers en bois massif, les carrelages anciens et les plafonds apportent une touche d'authenticité à l'ensemble.

Côté extérieur, un agréable jardin vous permettra de profiter des belles journées ensoleillées. De plus, deux garages offrent un espace de stationnement sécurisé pour vos véhicules, ajoutant une dimension pratique à cette propriété.

Située à proximité des commerces, des écoles, des transports et des points d'intérêts, cette maison bénéficie d'un emplacement idéal pour la vie quotidienne.

Cette maison pleine de potentiel attend une vision créative pour retrouver tout son éclat. Une occasion unique d'acquérir une propriété à rénover selon vos goûts et vos envies.

Laissez-vous séduire par le charme et le cachet de cette maison, contactez-moi !

Honoraires d'agence à la charge du vendeur.
Information d'affichage énergétique sur ce bien : classe ENERGIE G indice 609 et classe CLIMAT C indice 20. Les informations sur les risques auxquels ce bien est exposé, y compris l'obligation légale de débroussaillement, sont disponibles sur le site Géorisques : http://www.georisques.gouv.fr.
La présente annonce immobilière a été rédigée sous la responsabilité éditoriale de Mme Valérie Rico mandataire indépendant en immobilier (sans détention de fonds), agent commercial de la SAS I@D France immatriculé au RSAC de NARBONNE sous le numéro 391561917, titulaire de la carte de démarchage immobilier pour le compte de la société I@D France SAS.
Informations LOI ALUR :
Honoraires charge vendeur. (gedeon_6727_32331498)
Voir plus

Référence: 1907365
Honoraires à la charge du vendeur.
DPE
A
B
C
D
E
F
G
GES
A
B
C
D
E
F
G

Prêt immobilier

Vous souhaitez connaître votre capacité d’emprunt et trouver le meilleur crédit immobilier ?
Réaliser une simulation gratuite

Photo 1 - Maison à PORT-LA-NOUVELLE
Photo 1
Photo 2 - Maison à PORT-LA-NOUVELLE
Photo 2
Photo 3 - Maison à PORT-LA-NOUVELLE
Photo 3
Photo 4 - Maison à PORT-LA-NOUVELLE
Photo 4
Photo 5 - Maison à PORT-LA-NOUVELLE
Photo 5
Photo 6 - Maison à PORT-LA-NOUVELLE
Photo 6
Photo 7 - Maison à PORT-LA-NOUVELLE
Photo 7
Photo 8 - Maison à PORT-LA-NOUVELLE
Photo 8
Photo 9 - Maison à PORT-LA-NOUVELLE
Photo 9
Ce site est protégé par reCAPTCHA la Politique de confidentialité et les Conditions d’utilisation de Google s’appliquent.
Obtenir un prêt immobilier au meilleur taux ?

En poursuivant votre navigation sans modifier vos paramètres, vous acceptez l'utilisation de cookies susceptibles de réaliser des statistiques de visite. Cliquez ici pour plus d'informations