Appartement 78m² à eze

— Eze 06360 —
979 000 €
78 m²
3 pièces
parkingbalcon/terrasseascenseur

Iad France - Pierre Magerand ([Coordonnées masquées]) vous propose : Appartement T3 avec jardin à Èze.

Surplombant la Méditerranée et le village perché d'Èze, la résidence contemporaine La Baie des Saphirs incarne l'élégance et la sérénité de la Côte d'Azur. Lovée dans un écrin de verdure, à quelques minutes de Monaco, Saint-Jean-Cap-Ferrat et Nice, cette adresse offre un panorama exceptionnel entre ciel et mer. Disponible 2026.

Un appartement raffiné :
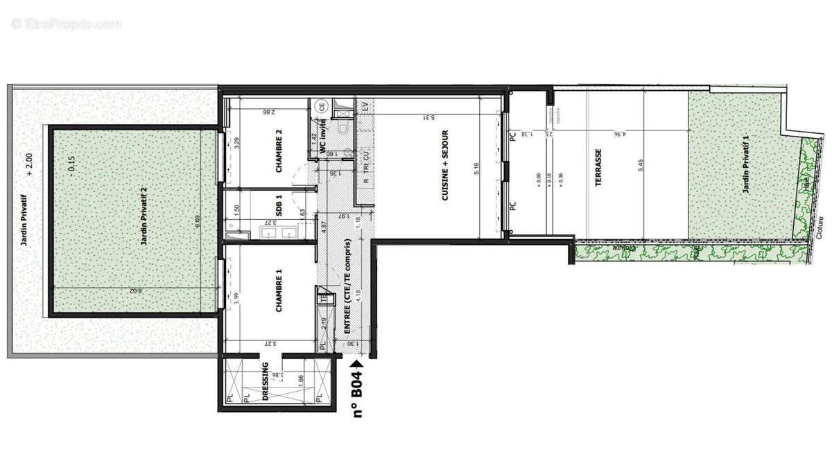
Situé au rez-de-jardin, cet appartement T3 de 78 m² environ habitables se prolonge par une terrasse de 34 m² environ et un jardin privatif de 60 m² environ.

- Séjour / cuisine de 27 m² environ.
- Deux chambres confortables.
- Salle d'eau moderne et WC séparés.
- Annexe incluse : un parking.

De belles prestations :
- Climatisation réversible et domotique intégrée.
- Résidence haut de gamme avec piscine à débordement, jardin méditerranéen et toitures végétalisées

L'art de vivre à Èze :
- Village d'Èze et son jardin exotique à 3 min.
- Plage d'Èze-sur-Mer à 10 min et Monaco à 14 min.
- À 25 min de l'aéroport Nice Côte d'Azur.
- Un environnement préservé, calme et luxuriant, entre mer et montagne.

N'hésitez pas à me contacter pour plus d'informations ou pour un accompagnement sur mesure.

Honoraires d'agence à la charge du vendeur. Bien non soumis au DPE. Les informations sur les risques auxquels ce bien est exposé sont disponibles sur le site Géorisques : www.georisques.gouv.fr. La présente annonce immobilière a été rédigée sous la responsabilité éditoriale de M. Pierre Magerand EI (ID 86098), mandataire indépendant en immobilier (sans détention de fonds), agent commercial de la SAS I@D France immatriculé au RSAC de Cusset sous le numéro 938729175, titulaire de la carte de démarchage immobilier pour le compte de la société I@D France SAS.
Retrouvez tous nos biens sur notre site internet. www.iadfrance.fr.
Informations LOI ALUR :
Honoraires charge vendeur. (gedeon_6727_32331577)
Voir plus

Référence: 1908578-7
Honoraires à la charge du vendeur.

Prêt immobilier

Vous souhaitez connaître votre capacité d’emprunt et trouver le meilleur crédit immobilier ?
Réaliser une simulation gratuite

Photo 1 - Appartement à EZE
Photo 1
Photo 2 - Appartement à EZE
Photo 2
Photo 3 - Appartement à EZE
Photo 3
Photo 4 - Appartement à EZE
Photo 4
Photo 5 - Appartement à EZE
Photo 5
Photo 6 - Appartement à EZE
Photo 6
Photo 7 - Appartement à EZE
Photo 7
Ce site est protégé par reCAPTCHA la Politique de confidentialité et les Conditions d’utilisation de Google s’appliquent.
Obtenir un prêt immobilier au meilleur taux ?

En poursuivant votre navigation sans modifier vos paramètres, vous acceptez l'utilisation de cookies susceptibles de réaliser des statistiques de visite. Cliquez ici pour plus d'informations