Bénéficiez des services de nos partenaires locaux soigneusement sélectionnés
pour vous accompagner dans votre parcours d'achat immobilier

Appartement t2 avec balcon et parking

— Bayonne 64100 —
182 000 €
44 m²
2 pièces
parkingbalcon/terrasse

Nos partenaires locaux
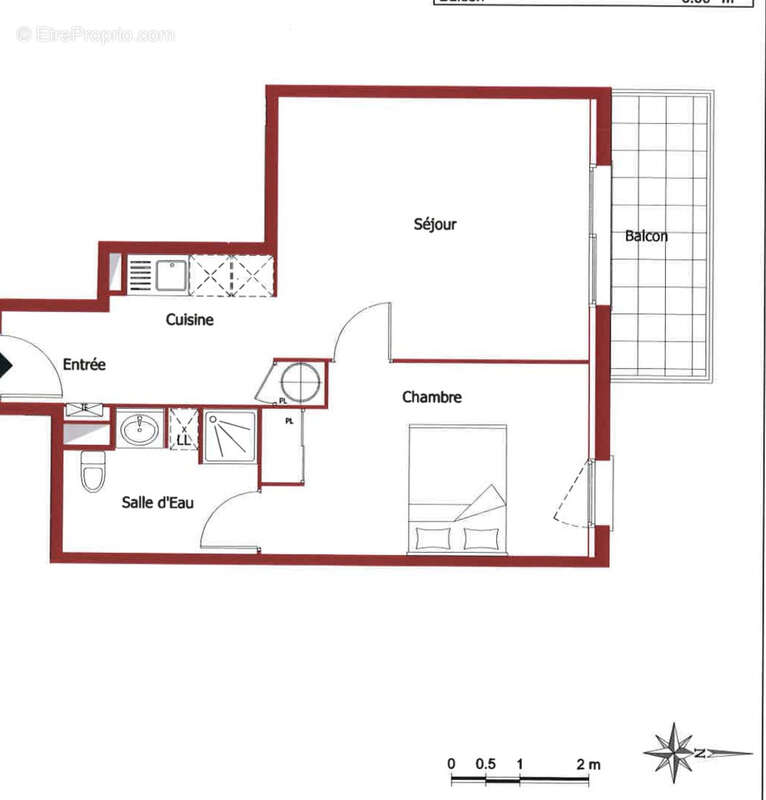
Situé dans le quartiers des Arènes, au 31 Chemin de Sabalce au 1er étage, venez découvrir ce charmant appartement T2 d'environ 42 M2. Il se compose d'une entrée avec une cuisine semi équipée, un salon-séjour d'environ 17 M2, une belle chambre avec placards de 12 M2 et une salle d'eau avec WC. L'appartement bénéficie également d'un balcon (exposé Nord-est) et une place de parking privative. La résidence va être entièrement ravalée (intégralement payé par le propriétaire). Pour plus d'informations, n'hésitez pas à nous contacter.
Voir plus

Bien en copropriété. Nombre de lots : 187. Charges de copropriété : 760 €.
Barème des honoraires
DPE
A
B
C
D
E
F
G
GES
A
B
C
D
E
F
G

Prêt immobilier

Vous souhaitez connaître votre capacité d’emprunt et trouver le meilleur crédit immobilier ?
Réaliser une simulation gratuite

Appartement à BAYONNE
Appartement à BAYONNE
Ce site est protégé par reCAPTCHA la Politique de confidentialité et les Conditions d’utilisation de Google s’appliquent.
Obtenir un prêt immobilier au meilleur taux ?

En poursuivant votre navigation sans modifier vos paramètres, vous acceptez l'utilisation de cookies susceptibles de réaliser des statistiques de visite. Cliquez ici pour plus d'informations