Bénéficiez des services de nos partenaires locaux soigneusement sélectionnés
pour vous accompagner dans votre parcours d'achat immobilier

Maison neuve en fin de construction

— Le Miroir 71480 —
295 000 €
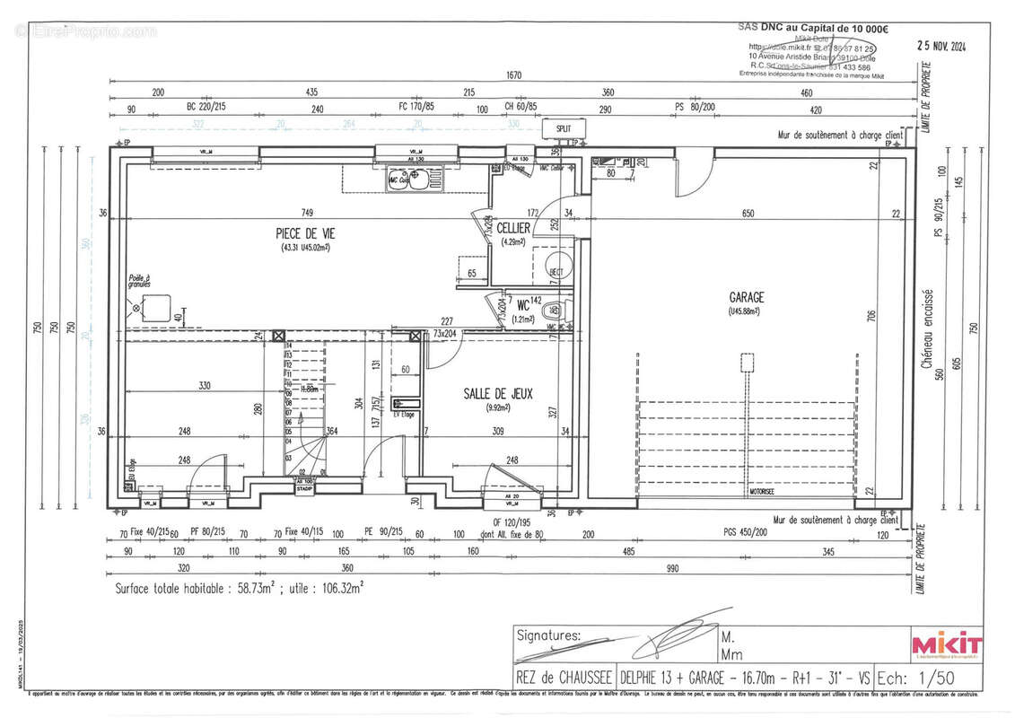
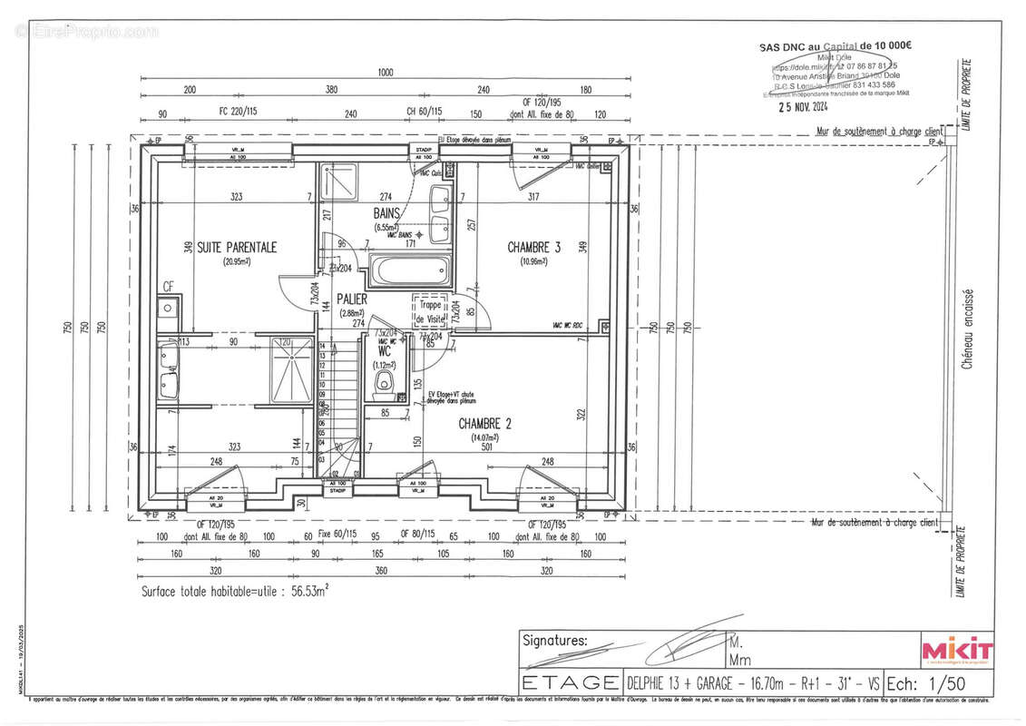
116 m² / 706 m²
6 pièces
parkingjardin

Nos partenaires locaux
Au cœur du village du Miroir, cette maison neuve modèle DELPHÉ 13 incarne la nouvelle génération de constructions performantes et pensées pour le confort. Déjà hors d’eau, hors d’air, avec un terrassement entièrement réalisé et un crépi fraîchement appliqué, elle offre une base solide pour un acquéreur souhaitant prendre la suite du chantier avec sérénité.
L’essentiel du gros œuvre est achevé, permettant d’imaginer immédiatement la vie future dans ces volumes lumineux et bien proportionnés. Les matériaux nécessaires à la poursuite de la construction ont été livrés : un atout rare, qui réduit considérablement les délais et les aléas logistiques. La maison peut ainsi évoluer rapidement vers son achèvement, selon les goûts et les priorités de son prochain propriétaire.
Conforme aux exigences de la RE 2020, elle garantit un niveau de performance remarquable. Son DPE classé A en fait une construction exemplaire, pensée pour maîtriser durablement les consommations d’énergie tout en assurant un confort optimal en été comme en hiver. Une maison qui respecte son environnement autant que votre qualité de vie.
La reprise du chantier se fait dans un cadre sécurisé : la Dommages-Ouvrage et les garanties décennales sont transférées, permettant d’avancer avec l’esprit tranquille. C’est l’assurance de poursuivre les travaux en bénéficiant de la protection et du sérieux d’un constructeur reconnu.
Proposée au prix de 295 000 €, matériaux livrés, cette maison représente une opportunité rare : celle de s’installer dans un projet déjà largement avancé, tout en conservant la liberté d’en façonner les finitions. Un compromis idéal pour qui recherche une construction moderne, performante, et encore personnalisable.
Pour découvrir cette maison, obtenir le dossier complet et organiser une visite, contactez-nous!
Voir plus

Honoraires à la charge du vendeur.
Barème des honoraires
DPE
A
B
C
D
E
F
G
GES
A
B
C
D
E
F
G

Prêt immobilier

Vous souhaitez connaître votre capacité d’emprunt et trouver le meilleur crédit immobilier ?
Réaliser une simulation gratuite

Maison à LE MIROIR
Maison à LE MIROIR
Maison à LE MIROIR
Maison à LE MIROIR
Maison à LE MIROIR
Maison à LE MIROIR
Maison à LE MIROIR
Maison à LE MIROIR
Maison à LE MIROIR
Maison à LE MIROIR
Ce site est protégé par reCAPTCHA la Politique de confidentialité et les Conditions d’utilisation de Google s’appliquent.
Obtenir un prêt immobilier au meilleur taux ?

En poursuivant votre navigation sans modifier vos paramètres, vous acceptez l'utilisation de cookies susceptibles de réaliser des statistiques de visite. Cliquez ici pour plus d'informations