Bénéficiez des services de nos partenaires locaux soigneusement sélectionnés
pour vous accompagner dans votre parcours d'achat immobilier

Maison de village 108 m² + dépendances – terrain constructible 1 300 m² éloise 01200

— Eloise 01200 —
315 000 €
108 m² / 1 300 m²
2 pièces
parkingjardinascenseurpiscine

Nos partenaires locaux
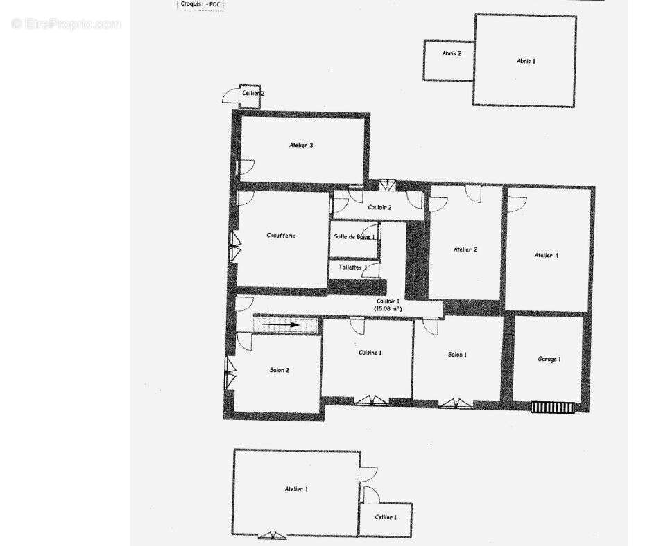
Maison de village mitoyenne d'un côté – 108 m² + dépendances – Une partie du terrain constructible de 1 300 m² – Éloise

Sur la commune d'Éloise, à proximité immédiate de la sortie A40, venez découvrir cette maison de village à rénover, offrant de beaux volumes et un fort potentiel d'aménagement.

La maison développe une surface habitable de 108 m² sur deux niveaux, complétée par environ 156 m² de surfaces annexes (garages, dépendances possible de faire un studio, pièces à rénover).

Elle se compose de :

1 Entrée, Un salon, Un séjour, Une cuisine indépendante, 3 chambres, Une salle d'eau, Un WC séparé, Garages et dépendances,
2 Caves, 3 Ateliers, 1 pièce de rangement,1 buanderie, Comble

Le tout est implanté sur une parcelle constructible de 1 300 m², comprenant jardin et cour, avec possibilités d'aménagement extérieur.
Travaux de rénovation à prévoir.

Situation :
Environnement calme et rural
Accès rapide A40
10 min de Bellegarde-sur-Valserine (gare TGV)
40 min de Genève et Annecy
Écoles à proximité
Bien idéal pour résidence principale, projet familial ou investissement.

Pour plus d'informations ou organiser une visite, merci de nous contacter.
a présente annonce immobilière a été rédigée sous la responsabilité éditoriale de Mme Sonia BOULEGHLIMAT, agent commercial (EI enregistrée au tribunal de commerce de BOURG-EN BRESSE sous le numéro RSAC 889734802)Les informations sur les risques auxquels ce bien est exposé sont disponibles sur le site Géorisques https://www.georisques.gouv.fr/.
Estimation des coûts annuels : entre 6 280€ et 8 560€ par an.
Référence agence : 0000
Voir plus

Référence: D1UU-ZBA-FR7
Honoraires d'agence de 6% à la charge de l'acquéreur
DPE
A
B
C
D
E
F
G
GES
A
B
C
D
E
F
G

Prêt immobilier

Vous souhaitez connaître votre capacité d’emprunt et trouver le meilleur crédit immobilier ?
Réaliser une simulation gratuite

Maison à ELOISE
Maison à ELOISE
Maison à ELOISE
Maison à ELOISE
Maison à ELOISE
Maison à ELOISE
Maison à ELOISE
Maison à ELOISE
Maison à ELOISE
Maison à ELOISE
Ce site est protégé par reCAPTCHA la Politique de confidentialité et les Conditions d’utilisation de Google s’appliquent.
Obtenir un prêt immobilier au meilleur taux ?

En poursuivant votre navigation sans modifier vos paramètres, vous acceptez l'utilisation de cookies susceptibles de réaliser des statistiques de visite. Cliquez ici pour plus d'informations