Bénéficiez des services de nos partenaires locaux soigneusement sélectionnés
pour vous accompagner dans votre parcours d'achat immobilier

Appartement - doly - rue lemercier, 75017 paris

— Paris-17e 75017 —
650 000 €
52 m²
2 pièces

Nos partenaires locaux
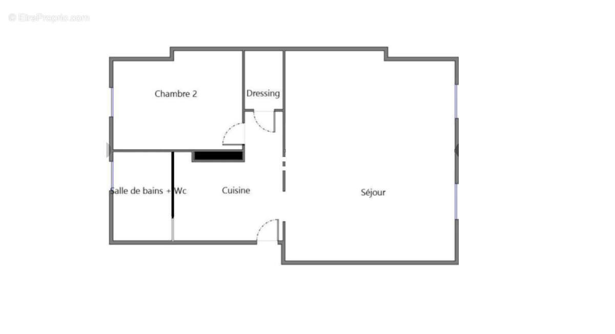
Dans une charmante rue commerçante en plein coeur du quartier des Batignolles, DOLY vous propose en exclusivité ce ravissant appartement deux pièces de 52 m² Carrez, situé au quatrième et dernier étage par escalier d'un bel immeuble ancien datant de 1870.
Vous apprécierez sa localisation, à deux pas du Parc Martin Luther King et du Square des Batignolles, du marché couvert et des commerces de la rue Legendre
L'appartement, traversant, se compose d'une entrée ouvrant sur un vaste séjour de 27m2 doté de deux fenêtres sur rue. Face au séjour, séparée par des colombages, une cuisine semi-ouverte entièrement aménagée.
Au calme d'une cour dégagée et arborée, une chambre et un dressing indépendant ainsi qu'une salle de bains avec baignoire, fenêtre et wc.

Appartement en très bon état général, vendu vide. Première image meublé par l'IA, photos en l'état après le plan.
Parquet en point de Hongrie, moulures .
Lignes 13,14
Possibilité de garer une poussette dans le hall de l'immeuble.

Ravalement de façade effectué en 2025.
Une cave saine de 5m2 complète ce bien
Voir plus

Référence: DOM27296
Bien en copropriété. Nombre de lots : 10. Charges de copropriété : 165 €.
Honoraires d'agence de 5% à la charge de l'acquéreur
DPE
A
B
C
D
E
F
G
GES
A
B
C
D
E
F
G

Prêt immobilier

Vous souhaitez connaître votre capacité d’emprunt et trouver le meilleur crédit immobilier ?
Réaliser une simulation gratuite

Appartement à PARIS-17E
Appartement à PARIS-17E
Appartement à PARIS-17E
Appartement à PARIS-17E
Appartement à PARIS-17E
Appartement à PARIS-17E
Appartement à PARIS-17E
Appartement à PARIS-17E
Appartement à PARIS-17E
Ce site est protégé par reCAPTCHA la Politique de confidentialité et les Conditions d’utilisation de Google s’appliquent.
Obtenir un prêt immobilier au meilleur taux ?

En poursuivant votre navigation sans modifier vos paramètres, vous acceptez l'utilisation de cookies susceptibles de réaliser des statistiques de visite. Cliquez ici pour plus d'informations