Bénéficiez des services de nos partenaires locaux soigneusement sélectionnés
pour vous accompagner dans votre parcours d'achat immobilier

Maison 5 pièces, 130 m² , 4 chambres et jardin, allée des flandres, jonage

— Jonage 69330 —
580 000 €
130 m² / 580 m²
5 pièces
parkingbalcon/terrassejardin

Nos partenaires locaux
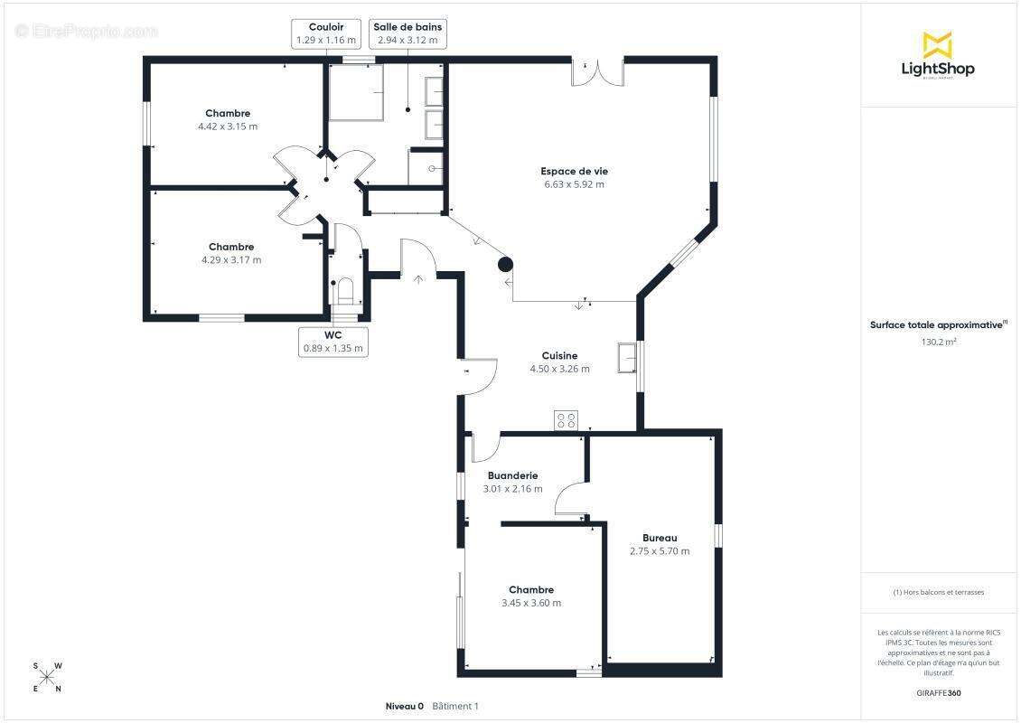
Cette maison de 5 pièces, d'une surface habitable de 130 m², est située Allée des Flandres à Jonage. Construite en 2000, elle offre un jardin de 580 m² agrémenté d'une terrasse en résine de marbre italien de 60 M2 autour de la piscine à cascade . La maison bénéficie d'une excellente luminosité grâce à son exposition EST. La pièce principale de 52 m² comprend une cuisine ouverte, offrant un espace de vie optimisé. L'ensemble a été rénové, y compris un système de chauffage par pompe avec gainage pour climatisation AIRZONE

Planifiez facilement votre visite en choisissant le créneau qui vous convient depuis le site d'Hosman.

La maison propose trois chambres de 13 m² chacune avec placards ou dressings dont l'une donne directement sur la piscine, ainsi qu'un espace dressing pouvant servir de chambre d'amis. La salle de bains de 9 m² est équipée de baignoire , douche et rangements . Un cellier vient compléter l'agencement intérieur.

À l'extérieur, un vaste jardin avec deux abris . Le stationnement est assuré pour deux à trois voitures grâce à un espace en graviers.

La taxe foncière annuelle est de 1670 €.

Commodités : Située à proximité, vous trouverez la boulangerie Artisan du Pain, le restaurant Le Bistrot de l'Écureuil, et le cinéma Éden. À 500 mètres, le Parc des Sports offre une vaste zone de loisirs.

Espaces verts : Le Parc Naturel est à quelques minutes, garantissant un cadre verdoyant et agréable.

Écoles : L'école primaire Marcel Pagnol et le collège Paul Éluard sont facilement accessibles à pied.

Transports : L'arrêt de bus « Jonage Centre » (ligne 28) est à environ 5 minutes de marche, facilitant les déplacements vers le centre-ville.

Le bien est soumis au statut de copropriété. Les charges de copropriété s'élèvent à 40 € par trimestre.

Année de construction : 2000

Hosman s'efforce de réinventer l'agence immobilière en offrant un service innovant et transparent aux acheteurs et aux vendeurs. Nos frais d'agence sont de 12500 euros au pourcentage à la charge du vendeur.

Si vous êtes un professionnel de l'immobilier (agent, mandataire ou chasseur immobilier), sachez que toutes les annonces Hosman sont ouvertes à la collaboration. N'hésitez pas à nous contacter pour en discuter.
Voir plus

Référence: ff89f2
Honoraires à la charge du vendeur.
DPE
A
B
C
D
E
F
G
GES
A
B
C
D
E
F
G

Prêt immobilier

Vous souhaitez connaître votre capacité d’emprunt et trouver le meilleur crédit immobilier ?
Réaliser une simulation gratuite

Maison à JONAGE
Maison à JONAGE
Maison à JONAGE
Maison à JONAGE
Maison à JONAGE
Maison à JONAGE
Maison à JONAGE
Maison à JONAGE
Maison à JONAGE
Maison à JONAGE
Maison à JONAGE
Maison à JONAGE
Maison à JONAGE
Maison à JONAGE
Maison à JONAGE
Maison à JONAGE
Maison à JONAGE
Maison à JONAGE
Maison à JONAGE
Ce site est protégé par reCAPTCHA la Politique de confidentialité et les Conditions d’utilisation de Google s’appliquent.
Obtenir un prêt immobilier au meilleur taux ?

En poursuivant votre navigation sans modifier vos paramètres, vous acceptez l'utilisation de cookies susceptibles de réaliser des statistiques de visite. Cliquez ici pour plus d'informations