Bénéficiez des services de nos partenaires locaux soigneusement sélectionnés
pour vous accompagner dans votre parcours d'achat immobilier

Belle échoppe 5 pièces avec terrasse - rue naujac, bordeaux

— Bordeaux 33000 —
798 000 €
140 m² / 114 m²
5 pièces
balcon/terrasse

Nos partenaires locaux
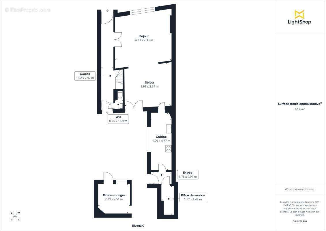
Découvrez cette maison de 5 pièces située dans la Rue Naujac à Bordeaux, disposant d'une surface habitable de 140 m². Elle s'étend sur une parcelle de 114 m² et bénéficie d'une terrasse de 40 m². La maison, mitoyenne sur deux côtés, disposée sur trois niveaux et l'entrée est accueillie par un double séjour avec une cheminée fonctionnelle. À l'arrière se trouve une cuisine équipée avec induction, lave-vaisselle, four et hotte.

Le rez-de-chaussée comporte également un WC situé sous l'escalier.
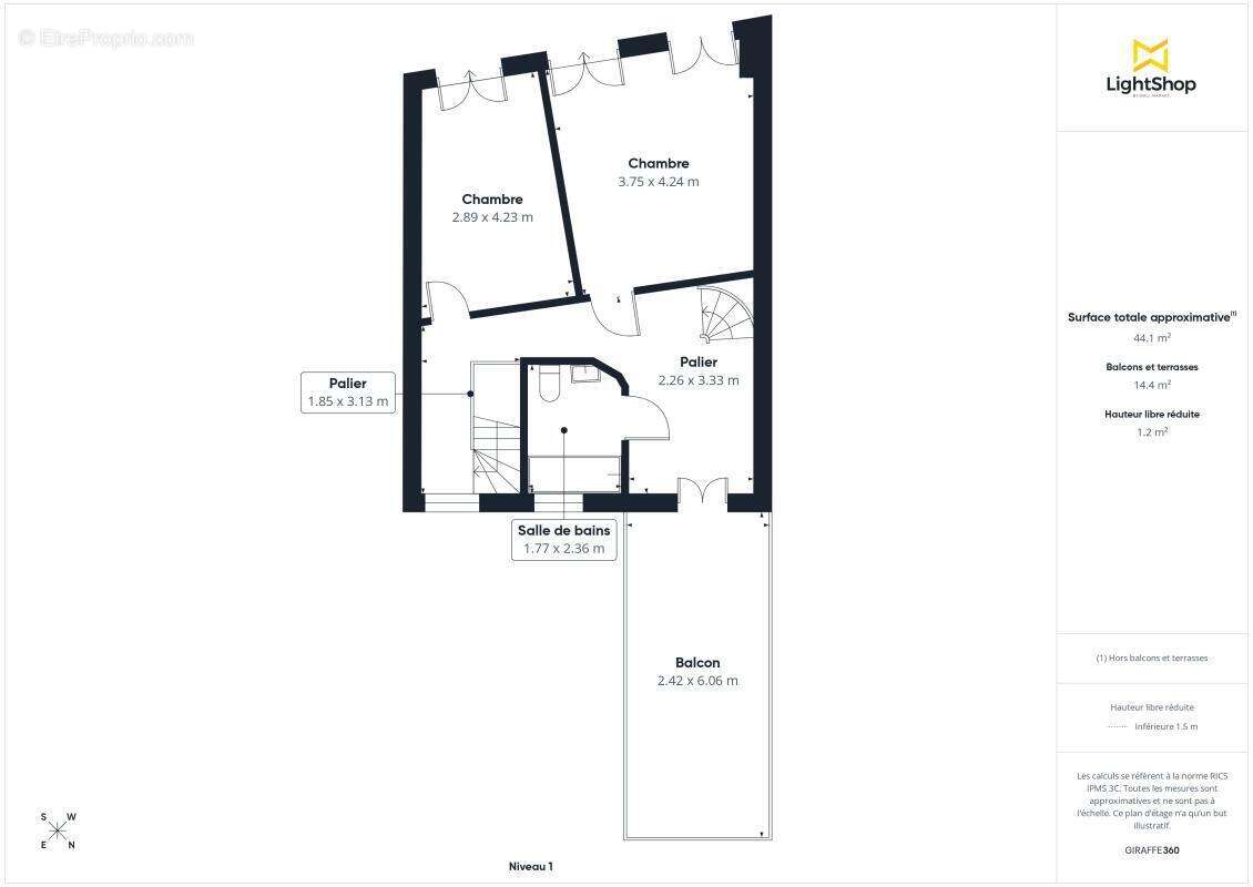
À l'étage, deux chambres proposent des espaces de rangement pratiques avec des placards intégrés. Une salle de bain dotée d'une fenêtre est équipée de WC et sèche-serviette, tandis qu'une salle d'eau avec vasque complète l'étage.
La maison possède une surélévation de 2007, abritant un espace bureau climatisé. Le bien propose enfin un espace cellier d'environ 6 m² et une petite buanderie à l'extérieur.
Le chauffage et l'eau chaude sont assurés par le gaz.

La taxe foncière annuelle est de 2500 €.
Planifiez facilement votre visite en choisissant le créneau qui vous convient depuis le site d'Hosman.

Située dans un quartier recherché de Bordeaux, cette maison se trouve à proximité de plusieurs commodités, y compris des commerces locaux et des restaurants typiques à quelques pas. Les familles apprécieront la présence de l'école maternelle Naujac à proximité.
Pour ceux qui souhaitent se déplacer facilement, les transports en commun incluent la station de tramway Croix de Seguey desservant la ligne D, située à 4 minutes à pied.

Hosman s'efforce de réinventer l'agence immobilière en offrant un service innovant et transparent aux acheteurs et aux vendeurs. Nos frais d'agence sont de 25 000 euros au pourcentage à la charge du vendeur.

Si vous êtes un professionnel de l'immobilier (agent, mandataire ou chasseur immobilier), sachez que toutes les annonces Hosman sont ouvertes à la collaboration. N'hésitez pas à nous contacter pour en discuter.
Voir plus

Référence: b9d390
Honoraires à la charge du vendeur.
DPE
A
B
C
D
E
F
G
GES
A
B
C
D
E
F
G

Prêt immobilier

Vous souhaitez connaître votre capacité d’emprunt et trouver le meilleur crédit immobilier ?
Réaliser une simulation gratuite

Maison à BORDEAUX
Maison à BORDEAUX
Maison à BORDEAUX
Maison à BORDEAUX
Maison à BORDEAUX
Maison à BORDEAUX
Maison à BORDEAUX
Maison à BORDEAUX
Maison à BORDEAUX
Maison à BORDEAUX
Maison à BORDEAUX
Maison à BORDEAUX
Maison à BORDEAUX
Maison à BORDEAUX
Maison à BORDEAUX
Maison à BORDEAUX
Maison à BORDEAUX
Maison à BORDEAUX
Maison à BORDEAUX
Maison à BORDEAUX
Maison à BORDEAUX
Maison à BORDEAUX
Ce site est protégé par reCAPTCHA la Politique de confidentialité et les Conditions d’utilisation de Google s’appliquent.
Obtenir un prêt immobilier au meilleur taux ?

En poursuivant votre navigation sans modifier vos paramètres, vous acceptez l'utilisation de cookies susceptibles de réaliser des statistiques de visite. Cliquez ici pour plus d'informations