Bénéficiez des services de nos partenaires locaux soigneusement sélectionnés
pour vous accompagner dans votre parcours d'achat immobilier

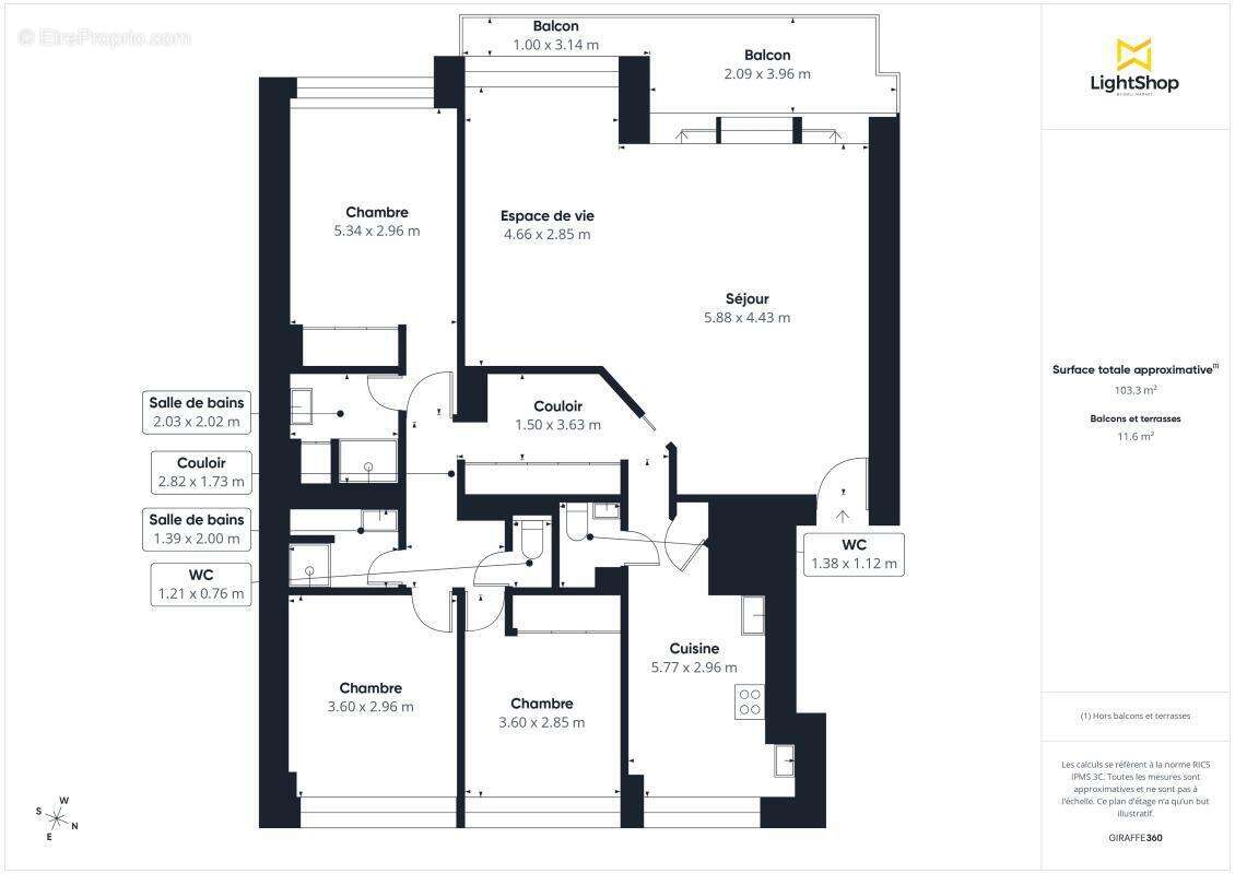
Appartement 5 pièces 103 m² avec balcon spacieux – rue deurbroucq, nantes

— Nantes 44000 —
440 000 €
103 m²
5 pièces
parkingbalcon/terrasseascenseur

Nos partenaires locaux
Cet appartement de type T4 se situe au 4ème étage d'un immeuble de 10 étages à Nantes, Rue Deurbroucq. Avec une surface Carrez de 103 m², l'appartement bénéficie d'une exposition sud-ouest. Il dispose d'un balcon de 10 m², parfait pour profiter d'une vue dégagée.

Planifiez facilement votre visite en choisissant le créneau qui vous convient depuis le site d'Hosman.

L'espace de vie est vaste, comprenant un salon de 38,50 m² qui s'ouvre sur le balcon. La cuisine est séparée, équipée de plaques à induction, d'un lave-vaisselle, d'un four, d'une hotte et d'un micro-ondes. Il est possible de réouvrir la cuisine sur le salon. Un couloir avec plusieurs placards mène aux trois chambres. La première chambre inclut une salle d'eau attenante avec meuble vasque et sèche-serviettes. La deuxième chambre n'a pas de placard, tandis que la troisième est pourvue d'un placard. Une seconde salle d'eau ainsi qu'un WC suspendu indépendant sont à disposition dans la partie nuit. La présence de double vitrage en aluminium avec volets télécommandés à l'énergie solaire, sauf pour la baie vitrée, assure une bonne isolation.

Pour le stationnement, deux places en enfilade sont disponibles au rez-de-chaussée de la résidence voisine, située au 8 quai de Tourville.
L'appartement inclut également une cave avec lumière et étagères.
Un local à vélos est disponible avec de nombreux emplacements.
Le chauffage et l'eau chaude sont collectifs au gaz.
La taxe foncière annuelle est de 2 263 €.

À proximité immédiate, vous trouverez plusieurs commodités telles que le centre ville place Royale et le théâtre Graslin. Les espaces verts ne manquent pas avec le jardin des Plantes. L'éducation est assurée par l'école maternelle du Chêne d'Aron, le collège Guist'hau, l'Externat des enfants Nantais et les lycées Guist'hau, Jules Verne, Chavagne.
Pour vos déplacements, la proximité est immédiate pour tous les transports, bus, tram et gare : la station de tramway Commerce (lignes 1, 2, 3) est accessible à pied.

Le bien est soumis au statut de copropriété. Construit en 1974, l'immeuble est entretenu par le syndic
Maestro et bénéficie d'un bon état des parties communes. Deux ascenseurs sont disponibles. Les charges
de copropriété s'élèvent à 573 € par trimestre.

Hosman s'efforce de réinventer l'agence immobilière en offrant un service innovant et transparent aux acheteurs et aux vendeurs. Nos frais d'agence sont de 9 900 euros fixes à la charge du vendeur.

Si vous êtes un professionnel de l'immobilier (agent, mandataire ou chasseur immobilier), sachez que toutes les annonces Hosman sont ouvertes à la collaboration. N'hésitez pas à nous contacter pour en discuter.
Voir plus

Référence: 9f2ecf
Bien en copropriété. Charges de copropriété : 191 €.
Honoraires à la charge du vendeur.
DPE
A
B
C
D
E
F
G
GES
A
B
C
D
E
F
G

Prêt immobilier

Vous souhaitez connaître votre capacité d’emprunt et trouver le meilleur crédit immobilier ?
Réaliser une simulation gratuite

Appartement à NANTES
Appartement à NANTES
Appartement à NANTES
Appartement à NANTES
Appartement à NANTES
Appartement à NANTES
Appartement à NANTES
Appartement à NANTES
Appartement à NANTES
Appartement à NANTES
Appartement à NANTES
Appartement à NANTES
Appartement à NANTES
Appartement à NANTES
Appartement à NANTES
Appartement à NANTES
Appartement à NANTES
Appartement à NANTES
Ce site est protégé par reCAPTCHA la Politique de confidentialité et les Conditions d’utilisation de Google s’appliquent.
Obtenir un prêt immobilier au meilleur taux ?

En poursuivant votre navigation sans modifier vos paramètres, vous acceptez l'utilisation de cookies susceptibles de réaliser des statistiques de visite. Cliquez ici pour plus d'informations