Bénéficiez des services de nos partenaires locaux soigneusement sélectionnés
pour vous accompagner dans votre parcours d'achat immobilier

Exclusivité !! 22300 lannion (servel) maison en pierres, 2 chambres, ancien garage attenant

— Lannion 22300 —
152 174 €
50 m² / 123 m²
3 pièces

Nos partenaires locaux
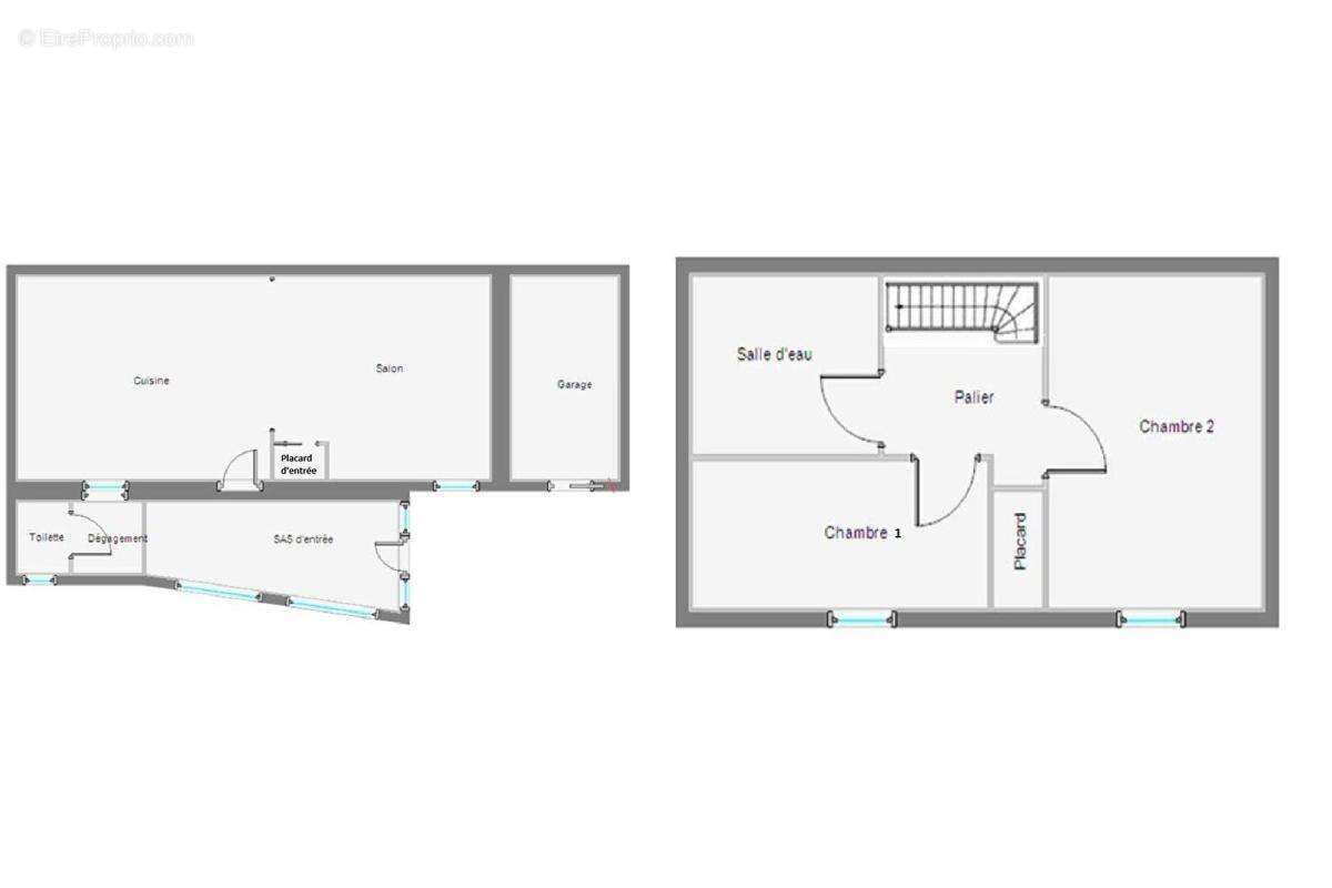
Julien Pérot vous propose : dans le secteur recherché de Servel, cette authentique maison en pierres datant de 1826, couverte sous ardoises naturelles, allie charme de l'ancien et fonctionnalité.
A seulement 4 km du centre-bourg de Lannion et de l'ensemble des commerces et services.
A 10 minutes de Trébeurden, de la mer et des plages ainsi que de l'hôpital de Lannion.
Et 15 minutes de la Côte de Granit Rose
Au rez-de-chaussée :
Un local indépendant (ancien garage), idéal pour stockage, atelier ou usage professionnel
Un sas d'entrée
Un WC séparé
Une agréable pièce de vie, lumineuse et chaleureuse, avec cuisine aménagée/équipée.
A l'étage :
Deux chambres
Une salle d'eau avec WC intégré
Au-dessus :
Un grenier isolé sur plancher, offrant un bel espace de stockage

Raccordement au tout-à-l'égout
Menuiseries PVC double vitrage (fenêtres + porte d'entrée)
Maison saine et entretenue
Radiateurs électriques récents
Vous n'avez plus qu'à poser vos valises

Un cadre de vie recherché, idéalement située pour profiter :
Du dynamisme de Lannion
Du littoral breton
Des plages et paysages emblématiques de la Côte de Granit Rose

Une maison pleine de charme, parfaite en résidence principale, pied-à-terre ou investissement.
Au prix de 152174 euros, honoraires d'agence à la charge du vendeur.
Frais notariés estimés à environ 13 000 euros. Taxe Foncière : 620 euros. Ce bien présente une excellente opportunité pour les particuliers et les investisseurs. Que ce soit pour un projet de résidence principale ou secondaire ou encore pour un investissement à long terme.
DPE : C. GES : C. Montant estimé des dépenses annuelles d'énergie pour un usage standard entre 1550 euros et 2150 euros indexées aux années 2021, 2022 et 2023 (ou 2021 uniquement) (si logement F ou G Logement à consommation énergétique excessive : classe F ou G).

Pour Visiter : Contactez votre conseiller local Julien Pérot au [Coordonnées masquées] ou par mail : [Coordonnées masquées] en précisant la référence du mandat n°432705. N'hésitez pas à concrétiser vos projets immobiliers avec un professionnel agréé FNAIM qui vous conseille, garantit, et sécurise votre projet immobilier.

Cette annonce a été rédigée sous la responsabilité éditoriale de Julien Pérot, votre conseiller immobilier de confiance. Achats, ventes, estimations gratuites - faites confiance à un professionnel pour concrétiser vos projets immobiliers.

Julien Pérot, agissant en tant qu'agent commercial immatriculé au RSAC Saint-Brieuc 822474151, est affilié à la SAS PROPRIETES PRIVEES, Réseau national immobilier, au capital de 40000 euros, 44 ALLÉE DES CINQ CONTINENTS - ZAC LE CHÊNE FERRÉ, 44120 VERTOU, RCS Nantes n° 487 624 777 00040, Carte professionnelle T et G n° CPI 44[Coordonnées masquées]10 388 CCI Nantes Saint-Nazaire. Garantie GALIAN - 89 rue de la Boétie, 75008 Paris un réseau national immobilier. La garantie GALIAN assure la sécurité de votre transaction

Julien PÉROT (EI) Agent Commercial - Numéro RSAC : SAINT BRIEUC 822474151 - .
Les informations sur les risques auxquels ce bien est exposé sont disponibles sur le site Géorisques : www. georisques. gouv. fr
Voir plus

Référence: 432705JUP
Honoraires à la charge du vendeur.
DPE
A
B
C
D
E
F
G
GES
A
B
C
D
E
F
G

Prêt immobilier

Vous souhaitez connaître votre capacité d’emprunt et trouver le meilleur crédit immobilier ?
Réaliser une simulation gratuite

Maison à LANNION
Maison à LANNION
Maison à LANNION
Maison à LANNION
Maison à LANNION
Maison à LANNION
Maison à LANNION
Maison à LANNION
Maison à LANNION
Maison à LANNION
Maison à LANNION
Maison à LANNION
Maison à LANNION
Ce site est protégé par reCAPTCHA la Politique de confidentialité et les Conditions d’utilisation de Google s’appliquent.
Obtenir un prêt immobilier au meilleur taux ?

En poursuivant votre navigation sans modifier vos paramètres, vous acceptez l'utilisation de cookies susceptibles de réaliser des statistiques de visite. Cliquez ici pour plus d'informations