Bénéficiez des services de nos partenaires locaux soigneusement sélectionnés
pour vous accompagner dans votre parcours d'achat immobilier

Vente maison 120m2 begles (33130)

— Bordeaux 33800 —
599 000 €
120 m²
4 pièces

Nos partenaires locaux
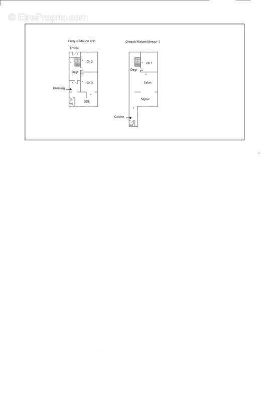
33130 - BEGLES - BARRIERE DE BEGLES. COUP DE COEUR pour cette maison INTEGRALEMENT RENOVEE CLES EN MAIN avec TERRASSE et ACCES INDEPENDANT pour VELOS. Distribuée sur deux niveaux, elle propose une cuisine EQUIPEE/AMENAGEE ouverte sur une belle pièce de vie avec salon, salle à manger donnant sur une TERRASSE de 30m2 EXPOSEE SUD-EST et SANS VIS-A-VIS, idéale pour profiter des journées ensoleillées en famille ou entre amis. Une chambre avec salle d'eau et bureau sur-mesure, un WC indépendant et un cellier complètent ce niveau. L'étage propose une belle SUITE PARENTALE avec deux DRESSING SUR-MESURE et BAIGNOIRE PRIVATIVE, double vasque et DOUCHE ITALIENNE, un ESPACE BUANDERIE, une troisième chambre, un WC. DOUBLE VITRAGE. VOLETS ROULANTS ELECTRIQUES. FIBRE OPTIQUE. CLIMATISATION REVERSIBLE NEUVE. Toiture RENOVEE récemment. POSSIBILITES STATIONNEMENT voiture. ACCES INDEPENDANT idéal pour deux roues et poussettes. Ce bien peut être VENDU MEUBLE. Proche NOMBREUX COMMERCES et MARCHE de la Barrière de Bègles, ECOLES et TRANSPORTS. A moins de 10min A PIED DU TRAM C, proche BUS (lignes 15 et 31). A moins de 5min A VELO des PLACES NANSOUTY et du XIV JUILLET. ACCES FACILE à la GARE SAINT-JEAN (10min à vélo, 15min en tram).
PRIX : 599 000 euros
DPE : B GES : B. Montant moyen estimé des dépenses annuelles d'énergie pour un usage standard établi à partir des prix de l'énergie de l'année 2021 : entre 890 euros et 1270 euros
Pour visiter et vous accompagner dans votre projet, contactez Arnaud FRAYRET, au [Coordonnées masquées] ou par courriel à [Coordonnées masquées]
Cette présente annonce a été rédigée sous la responsabilité éditoriale de Arnaud FRAYRET agissant sous le statut d'agent commercial immatriculé au RSAC Nantes 837775543 auprès de la SAS PROPRIETES PRIVEES, Réseau national immobilier, au capital de 40000 euros, 44 ALLÉE DES CINQ CONTINENTS - ZAC LE CHÊNE FERRÉ, 44120 VERTOU, RCS Nantes n° 487 624 777 00040, Carte professionnelle T et G n° CPI 44[Coordonnées masquées]10 388 CCI Nantes-Saint Nazaire. Garantie GALIAN - 89 rue de la Boétie, 75008 Paris.
Mandat réf : 391661 - Le professionnel garantit et sécurise votre projet immobilier. (3.28 % honoraires TTC à la charge de l'acquéreur.)

Arnaud FRAYRET (EI) Agent Commercial - Numéro RSAC : STRASBOURG 837775543 - .
Les informations sur les risques auxquels ce bien est exposé sont disponibles sur le site Géorisques : www. georisques. gouv. fr
Voir plus

Référence: 391661WARY
Honoraires d'agence de 3.28% à la charge de l'acquéreur
DPE
A
B
C
D
E
F
G
GES
A
B
C
D
E
F
G

Prêt immobilier

Vous souhaitez connaître votre capacité d’emprunt et trouver le meilleur crédit immobilier ?
Réaliser une simulation gratuite

Maison à BORDEAUX
Maison à BORDEAUX
Maison à BORDEAUX
Maison à BORDEAUX
Maison à BORDEAUX
Maison à BORDEAUX
Maison à BORDEAUX
Maison à BORDEAUX
Maison à BORDEAUX
Ce site est protégé par reCAPTCHA la Politique de confidentialité et les Conditions d’utilisation de Google s’appliquent.
Obtenir un prêt immobilier au meilleur taux ?

En poursuivant votre navigation sans modifier vos paramètres, vous acceptez l'utilisation de cookies susceptibles de réaliser des statistiques de visite. Cliquez ici pour plus d'informations