Appartement 26m² à gagny

— Gagny 93220 —
150 000 €
27 m² / 36 m²
2 pièces

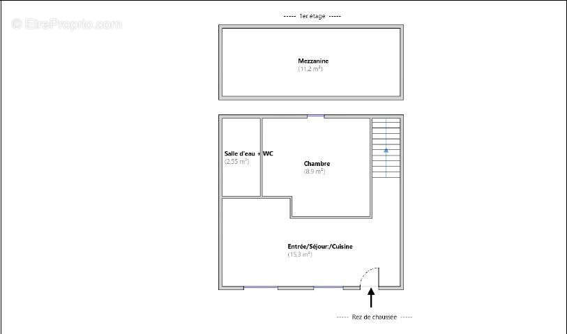
Le Cabinet CHAUVET & Cie vous propose proche de toutes commodités dans secteur pavillonnaire à 2min du Bus 604 un Appartement de type F2 pour une surface d'environ 38m² habitables, comprenant : Entrée, cuisine équipée et aménagée sur séjour donnant sur une cour de 36m² environ, une chambre, salle d'eau avec WC, mezzanine. Chauffage individuel électrique. Vue sur jardin privatif 36m². Calme. Charges faibles. Idéal pour investissement. CONTACT : [Coordonnées masquées]. Mail : [Coordonnées masquées]. A VOIR !

Voir plus

Référence: CHA1715B
Honoraires à la charge du vendeur.
Barème des honoraires
DPE
A
B
C
D
E
F
G
GES
A
B
C
D
E
F
G

Prêt immobilier

Vous souhaitez connaître votre capacité d’emprunt et trouver le meilleur crédit immobilier ?
Réaliser une simulation gratuite

Appartement à GAGNY
Appartement à GAGNY
Appartement à GAGNY
Appartement à GAGNY
Appartement à GAGNY
Appartement à GAGNY
Appartement à GAGNY
Appartement à GAGNY
Appartement à GAGNY
Ce site est protégé par reCAPTCHA la Politique de confidentialité et les Conditions d’utilisation de Google s’appliquent.
Obtenir un prêt immobilier au meilleur taux ?

En poursuivant votre navigation sans modifier vos paramètres, vous acceptez l'utilisation de cookies susceptibles de réaliser des statistiques de visite. Cliquez ici pour plus d'informations