Bénéficiez des services de nos partenaires locaux soigneusement sélectionnés
pour vous accompagner dans votre parcours d'achat immobilier

Appartement 61m² à nice

— Nice 06000 —
630 000 €
61 m²
3 pièces

Nos partenaires locaux
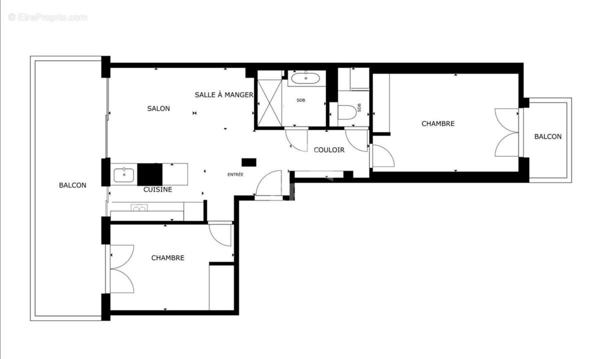
NICE - RUE DE FRANCE / PROMENADE : Dans une belle résidence bien tenue, MAGNIFIQUE 3 PIÈCES TRAVERSANT EN DERNIER ÉTAGE AVEC GRANDE TERRASSE DE 17 M² À CIEL OUVERT VUE DÉGAGÉE VILLE ET MER, vendu clé en main.
Composé d'une entrée, beau séjour avec une cuisine américaine aménagée et équipée donnant sur une grande terrasse, 2 belles chambres, nombreux placards et rangements, salle d'eau et WC indépendant.
Chaque pièce donne sur extérieur. Lumineux et ensoleillé.
Prestations haut de gamme avec tout le confort nécessaire, climatisation, double vitrage, volets électriques...
Une cave complète ce bien.
Possibilité parking en sus au sein de la résidence.
Idéal pour une résidence principale, secondaire ou un investissement locatif.
À proximité immédiate de tous les commerces et commodités, à deux pas de la station de tramway et à 20 mètres de la Promenade des Anglais et des plages.
Contactez notre agence immobilière Nice Era Gambetta ; spécialiste de l'immobilier dans les quartiers Gambetta/Fleurs/Musiciens/Carré d'Or pour plus d'informations (vente, achat, estimation, conseil en immobilier...).
Contactez-nous au [Coordonnées masquées] ! 
L'Etat des Risques et Pollution peut être consulté sur https://www.georisques.gouv.fr
Voir plus

Référence: n926
DPE
A
B
C
D
E
F
G
GES
A
B
C
D
E
F
G

Prêt immobilier

Vous souhaitez connaître votre capacité d’emprunt et trouver le meilleur crédit immobilier ?
Réaliser une simulation gratuite

Appartement à NICE
Appartement à NICE
Appartement à NICE
Appartement à NICE
Appartement à NICE
Appartement à NICE
Appartement à NICE
Appartement à NICE
Appartement à NICE
Appartement à NICE
Appartement à NICE
Appartement à NICE
Appartement à NICE
Appartement à NICE
Appartement à NICE
Appartement à NICE
Appartement à NICE
Appartement à NICE
Ce site est protégé par reCAPTCHA la Politique de confidentialité et les Conditions d’utilisation de Google s’appliquent.
Obtenir un prêt immobilier au meilleur taux ?

En poursuivant votre navigation sans modifier vos paramètres, vous acceptez l'utilisation de cookies susceptibles de réaliser des statistiques de visite. Cliquez ici pour plus d'informations