Bénéficiez des services de nos partenaires locaux soigneusement sélectionnés
pour vous accompagner dans votre parcours d'achat immobilier

Maison 130m² à denee

— Denee 49190 —
398 000 €
130 m² / 301 m²
6 pièces
parkingjardinpiscine

Nos partenaires locaux
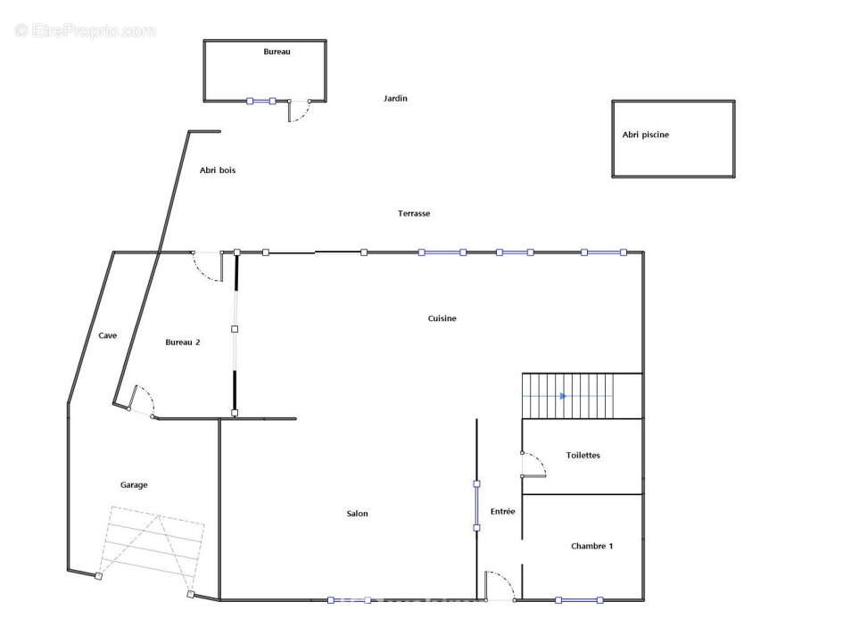
Votre agence 123webimmo l'immobilier au meilleur prix vous présente : Dès que vous franchissez la porte de cette maison à Denée (49190), le charme opère : cour, terrasse et jardin s'ouvrent sur une piscine avec bar, offrant un cadre idéal pour travailler ou se détendre au quotidien.

Avec environ 140 m² au sol, cette maison propose une vie de plain-pied avec une chambre au rez-de-chaussée, trois chambres à l'étage, deux salles d'eau et deux bureaux, dont un indépendant près de la piscine, parfait pour le télétravail ou vos projets personnels. La fibre est installée et aucun travaux n'est à prévoir : il ne vous reste plus qu'à poser vos valises.

Économe et confortable, le bien bénéficie d'une faible consommation électrique avec un diagnostic énergétique de classe C, gage de maîtrise des charges.

Des dépendances pratiques, un puits, un garage et une cave complètent cet ensemble rare, situé à quelques minutes de la voie rapide vers Angers et des bords de Loire, tout en profitant du calme du centre-bourg avec école et bus accessibles à pied.

Un bien d'exception. Venez le visiter et laissez-vous séduire dès le premier pas à l'intérieur.

Les informations sur les risques auxquels ce bien est exposé sont disponibles sur le site du gouvernement : https://www.georisques.gouv.fr
Voir plus

Référence: WI_c57643
Honoraires d'agence de 3.27% à la charge de l'acquéreur
Barème des honoraires
DPE
A
B
C
D
E
F
G
GES
A
B
C
D
E
F
G

Prêt immobilier

Vous souhaitez connaître votre capacité d’emprunt et trouver le meilleur crédit immobilier ?
Réaliser une simulation gratuite

Maison à DENEE
Maison à DENEE
Maison à DENEE
Maison à DENEE
Maison à DENEE
Maison à DENEE
RDC - Maison à DENEE
RDC
1er étage - Maison à DENEE
1er étage
Ce site est protégé par reCAPTCHA la Politique de confidentialité et les Conditions d’utilisation de Google s’appliquent.
Obtenir un prêt immobilier au meilleur taux ?

En poursuivant votre navigation sans modifier vos paramètres, vous acceptez l'utilisation de cookies susceptibles de réaliser des statistiques de visite. Cliquez ici pour plus d'informations