Appartement 2 pièces avec terrasse et parking 42,79 m2

— Suresnes 92150 —
419 000 €
43 m²
2 pièces
parkingbalcon/terrasse

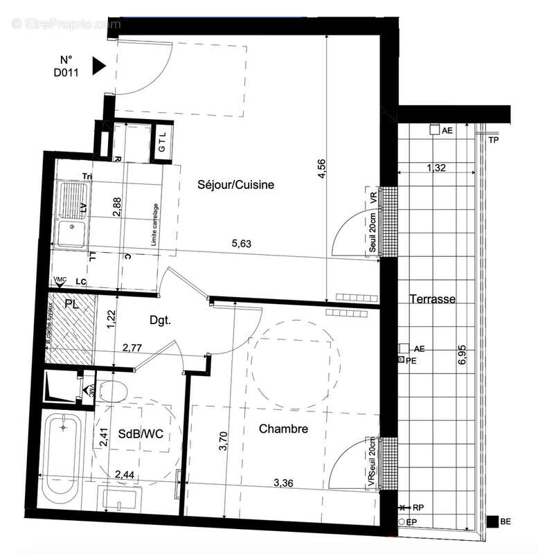
Cet appartement de deux pièces est situé au premier étage.La surface habitable est de 42,79 m2, complétée par une terrasse de 9,13 m2, portant la surface totale à 51,92 m2.
L’entrée dessert un dégagement distribuant l’ensemble des pièces.Le séjour avec cuisine ouverte développe une surface de 22,37 m2 et bénéficie d’un accès direct à la terrasse.
La chambre offre une surface de 11,67 m2, distincte de l’espace de vie.La salle de bains avec WC représente 5,37 m2, accessible depuis le dégagement.
L’appartement bénéficie de prestations de qualité, tant sur les matériaux que sur les équipements, assurant un usage confortable et durable au quotidien.
La terrasse prolonge les pièces principales et constitue un espace extérieur utilisable.
L’appartement s’inscrit dans une résidence organisée autour de plusieurs bâtiments, avec des commerces en rez-de-chaussée et des cheminements piétons.L’ensemble est structuré autour d’un cœur d’îlot paysager et d’une sente traversante intégrant des espaces verts et des circulations douces.
Contactez-nous pour plus d'informations !
Parking inclus dans le prix
Images d'illustration, non contractuelles
Voir plus

Bien en copropriété.
Barème des honoraires
DPE
A
B
C
D
E
F
G
GES
A
B
C
D
E
F
G

Prêt immobilier

Vous souhaitez connaître votre capacité d’emprunt et trouver le meilleur crédit immobilier ?
Réaliser une simulation gratuite

Appartement à SURESNES
Appartement à SURESNES
Appartement à SURESNES
Appartement à SURESNES
Ce site est protégé par reCAPTCHA la Politique de confidentialité et les Conditions d’utilisation de Google s’appliquent.
Obtenir un prêt immobilier au meilleur taux ?

En poursuivant votre navigation sans modifier vos paramètres, vous acceptez l'utilisation de cookies susceptibles de réaliser des statistiques de visite. Cliquez ici pour plus d'informations