Bénéficiez des services de nos partenaires locaux soigneusement sélectionnés
pour vous accompagner dans votre parcours d'achat immobilier

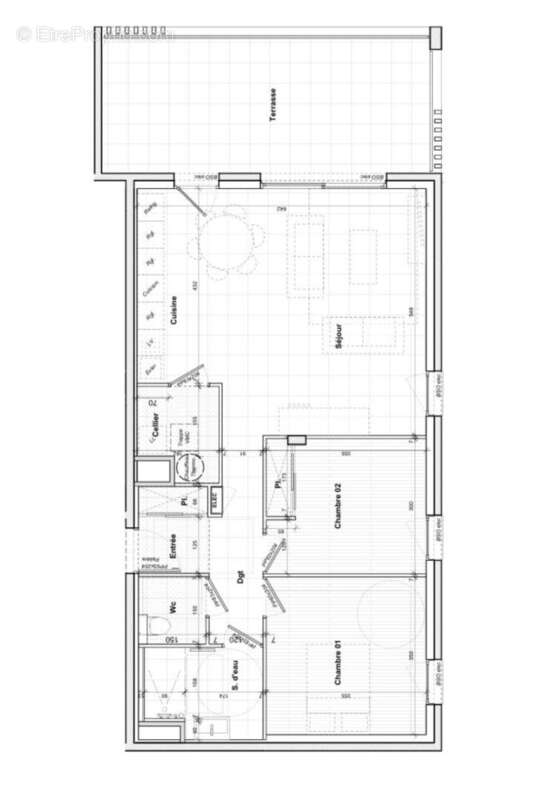
Appartement Saint Symphorien Sur Coise 3 pièce(s) 74.60 m2

— Saint-Symphorien-Sur-Coise 69590 —
280 000 €
74 m²
3 pièces
parkingbalcon/terrasseascenseur

Nos partenaires locaux
Appartement neuf d'exception - VEFA - livrable fin 2026 Découvrez ce superbe appartement neuf de 74.60 m² conçu pour offrir confort et modernité, au sein d'une résidence de qualité. Il bénéficie de belles prestations et d'une distribution optimisée des espaces. Vous profiterez d'une magnifique terrasse de 22.80 m², idéale pour vos moments de détente, avec une vue dégagée dans un environnement calme et privilégié. Un garage complète ce bien, apportant un véritable confort au quotidien. Livraison prévue fin 2026 Normes récentes, performance énergétique optimale Cadre paisible et agréable à vivre Un bien rare, parfait pour une résidence principale ou un investissement de qualité. Copropriété de 12 lots (). Pierre GREGOIRE (EI) Agent Commercial - Numéro RSAC : 935 291 914 R.S.A.C. - Lyon.
Voir plus

Référence: 159
Bien en copropriété. Nombre de lots : 12. Procédure en cours.
Honoraires à la charge du vendeur.
Barème des honoraires
Appartement à SAINT-SYMPHORIEN-SUR-COISE
Appartement à SAINT-SYMPHORIEN-SUR-COISE
Appartement à SAINT-SYMPHORIEN-SUR-COISE
Appartement à SAINT-SYMPHORIEN-SUR-COISE
Géorisques

Les informations sur les risques auxquels ce bien est exposé sont disponibles sur le site Géorisques : www.georisques.gouv.fr

Ce site est protégé par hCaptcha Politique de confidentialité et Conditions d’utilisation s’appliquent.