Bénéficiez des services de nos partenaires locaux soigneusement sélectionnés
pour vous accompagner dans votre parcours d'achat immobilier

Emplacement exceptionnel à deux pas du marché central de royan

— Royan 17200 —
174 000 €
62 m² / 5 m²
2 pièces
balcon/terrassejardin

Nos partenaires locaux
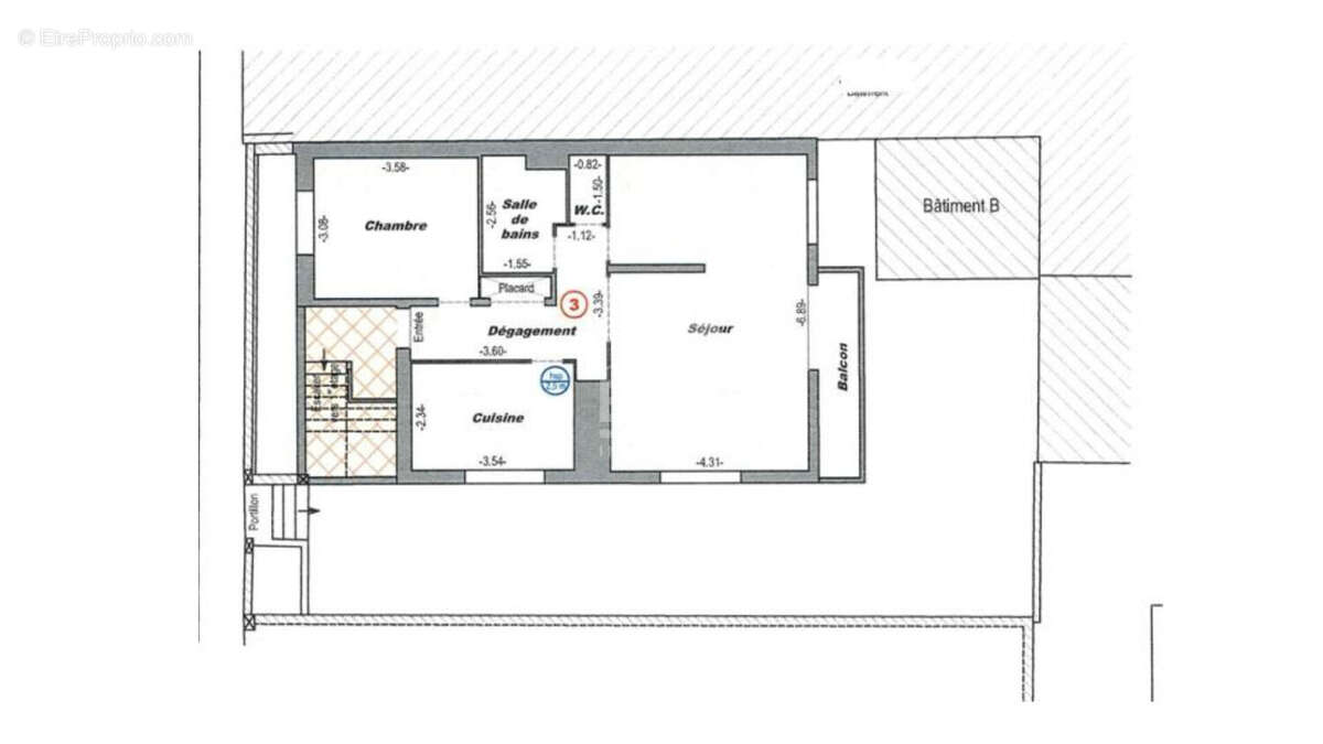
Dans un immeuble typique des années 50, votre agence ERA vous invite à découvrir cet appartement de 63 m², situé au deuxième et dernier étage, qui vous séduira par son charme, sa luminosité et son beau potentiel. Il se compose d'une entrée, d'un séjour lumineux ouvrant sur un balcon exposé Sud-Ouest, d'une cuisine indépendante, d'une chambre, d'une salle de bains ainsi que de toilettes indépendants. Des travaux de rafraîchissement sont à prévoir, offrant l'occasion de repenser chaque espace et de créer un intérieur chaleureux qui vous ressemble. Une belle opportunité, parfaite pour un investissement locatif, un pied-à-terre en bord de mer ou pour profiter d'une vie citadine à deux pas des plages et commerces. Prenez vite rendez-vous pour organiser une visite (5.45 % honoraires TTC à la charge de l'acquéreur.) Copropriété de 3 lots - dont 3 lots habitation. (Pas de procédure en cours). Charges annuelles : 100 euros. Caroline OSTIER (EI) Agent Commercial - Numéro RSAC : 951056589 - ROYAN.
Voir plus

Référence: 481
Bien en copropriété. Nombre de lots : 3. Charges de copropriété : 100 €.
Honoraires d'agence de 5.45% à la charge de l'acquéreur
Barème des honoraires

Prêt immobilier

Vous souhaitez connaître votre capacité d’emprunt et trouver le meilleur crédit immobilier ?
Réaliser une simulation gratuite

Appartement à ROYAN
Appartement à ROYAN
Appartement à ROYAN
Appartement à ROYAN
Appartement à ROYAN
Appartement à ROYAN
Appartement à ROYAN
Appartement à ROYAN
Appartement à ROYAN
Ce site est protégé par reCAPTCHA la Politique de confidentialité et les Conditions d’utilisation de Google s’appliquent.
Obtenir un prêt immobilier au meilleur taux ?

En poursuivant votre navigation sans modifier vos paramètres, vous acceptez l'utilisation de cookies susceptibles de réaliser des statistiques de visite. Cliquez ici pour plus d'informations