Bénéficiez des services de nos partenaires locaux soigneusement sélectionnés
pour vous accompagner dans votre parcours d'achat immobilier

Maison 81m² à montlouis-sur-loire

— Montlouis-Sur-Loire 37270 —
283 500 €
82 m² / 319 m²
4 pièces
parkingjardin

Nos partenaires locaux
Seulement chez BELISIMMO MONTLOUIS SUR LOIRE
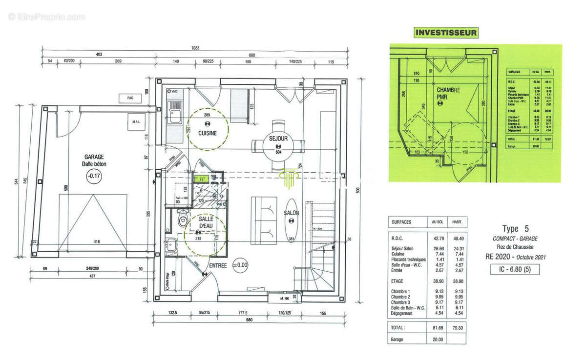
Dans un secteur calme et très recherché , quelle opportunité de rentrer dans une MAISON RECENTE -2026- achevée et visitable, aux prestations de bonne facture, pour y poser vos valises et surtout pour satisfaire toute votre famille.

Découvrez à son rez-de-chaussée : un salon/séjour avec cuisine ouverte, baignée de lumière avec son exposition NORD/ SUD et son accès direct sur l'extérieur. Salle d'eau , un WC, un cellier et un grand garage de 20m² complète ce niveau.

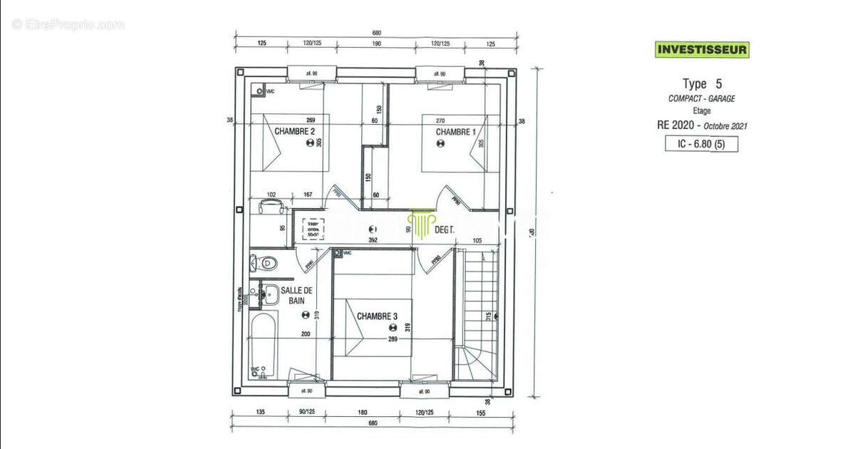
L'étage vous invite sur un palier desservant 3 belles chambres, une salle d'eau et un wc Vous pourrez profiter d'un jardin clos 319 m².

LES +++ : Maison sous décennale constructeur, panneaux photovoltaïques, domotique, cuisine contemporaine, plancher béton. !!!
MAISON MODERNE AVEC BEAUCOUP DE CONFORT !!!
PTZ envisageable!

Son emplacement idéal offre un accès facile aux axes routiers, aux commerces, aux écoles et aux infrastructures locales, tout en préservant le calme propre à une vie en province.
***** N'attendez plus contactez Yann GROEN ***** Prix souhaité : 283 500 euros dont 5% d'honoraires charge acquéreurs. DPE : A - GES : A - Les informations sur les risques auxquels ce bien est éventuellement exposé sont disponibles sur le site Géorisques : www.georisques.gouv.fr Agence BELIS IMMO 9 Rue du Maréchal Foch 37270 MONTLOUIS SUR LOIRE

Honoraires inclus de 5% TTC à la charge de l'acquéreur. Prix hors honoraires 270 000 €. DPE en cours. Les informations sur les risques auxquels ce bien est exposé sont disponibles sur le site Géorisques : georisques.gouv.fr.
Voir plus

Référence: 3486YX-AGENCEBELISIMMO
Honoraires d'agence de 5% à la charge de l'acquéreur
Barème des honoraires

Prêt immobilier

Vous souhaitez connaître votre capacité d’emprunt et trouver le meilleur crédit immobilier ?
Réaliser une simulation gratuite

Maison à MONTLOUIS-SUR-LOIRE
Maison à MONTLOUIS-SUR-LOIRE
Maison à MONTLOUIS-SUR-LOIRE
Maison à MONTLOUIS-SUR-LOIRE
Ce site est protégé par reCAPTCHA la Politique de confidentialité et les Conditions d’utilisation de Google s’appliquent.
Obtenir un prêt immobilier au meilleur taux ?

En poursuivant votre navigation sans modifier vos paramètres, vous acceptez l'utilisation de cookies susceptibles de réaliser des statistiques de visite. Cliquez ici pour plus d'informations