Manosque centre-ville - maison de famille t8 avec grand jardin, bassin et dépendances

— Manosque 04100 —
549 000 €
206 m² / 1 243 m²
8 pièces
parkingbalcon/terrassejardin

RARE AU CŒUR DE MANOSQUE MAISON DE CHARME AVEC JARDIN ET MULTIPLES POSSIBILITÉS
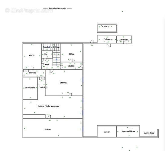
En plein centre-ville, à proximité immédiate des commerces, écoles, cinéma et services, découvrez cette belle maison de caractère du début du XXe siècle offrant 205 m2 habitables sur un terrain arboré de 946 m2 avec bassin alimenté par l’eau du canal.
Une maison aux multiples usages
Idéale pour une grande famille, un projet intergénérationnel, une activité libérale ou un investissement locatif, cette propriété peut être occupée en résidence unique ou divisée en deux logements indépendants, avec possibilité d’un troisième espace (habitation ou bureau professionnel).
Agencement actuel
Logement principal :

Rez-de-chaussée : salon lumineux, cuisine ouverte sur salle à manger, bureau, buanderie, WC séparé, accès direct au jardin.
Étage : deux chambres, salle de bains , WC séparé, balcon avec vue sur le jardin.

Logement indépendant (étage) : séjour avec cuisine équipée, deux chambres, salle d’eau, WC séparé.
Extérieurs et dépendances
Magnifique jardin paysager de 946 m2, luxuriant et parfaitement entretenu, agrémenté de nombreuses variétés d’arbres fruitiers et de vignes, sublimé par un grand bassin, plusieurs espaces de détente, serre, atelier, volière, caves (fruitière et à vin), et abri à bois.
Calme, intimité et verdure au cœur de la ville — un bien rare à Manosque !
Équipements et confort
Pompe à chaleur air/air réversible, chauffe-eau thermodynamique, insert bois, double vitrage PVC, isolation renforcée.
Les + de ce bien

Charme de l’ancien et confort moderne
Emplacement hypercentre avec toutes commodités à pied
Jardin arboré exceptionnel
Deux logements modulables (possibilité d’un troisième)
Très bonne performance énergétique

Situation et environnement
Manosque séduit par son art de vivre provençal, son cadre naturel privilégié et son dynamisme économique grâce à la proximité du CEA Cadarache / ITER (15 min), de Pertuis (25 min) et de l’A51 vers Aix-en-Provence et Marseille (45 min). Un secteur recherché, idéal pour allier qualité de vie et rentabilité locative. - Annonce rédigée et publiée par un Agent Mandataire -
Voir plus

Référence: 219669
Honoraires à la charge du vendeur.
Barème des honoraires
DPE
A
B
C
D
E
F
G
GES
A
B
C
D
E
F
G

Prêt immobilier

Vous souhaitez connaître votre capacité d’emprunt et trouver le meilleur crédit immobilier ?
Réaliser une simulation gratuite

Maison à MANOSQUE
Maison à MANOSQUE
Maison à MANOSQUE
Maison à MANOSQUE
Maison à MANOSQUE
Maison à MANOSQUE
Maison à MANOSQUE
Maison à MANOSQUE
Maison à MANOSQUE
Maison à MANOSQUE
Maison à MANOSQUE
Maison à MANOSQUE
Maison à MANOSQUE
Maison à MANOSQUE
Maison à MANOSQUE
Maison à MANOSQUE
Maison à MANOSQUE
Maison à MANOSQUE
Maison à MANOSQUE
Maison à MANOSQUE
Maison à MANOSQUE
Maison à MANOSQUE
Maison à MANOSQUE
Maison à MANOSQUE
Maison à MANOSQUE
Maison à MANOSQUE
Maison à MANOSQUE
Maison à MANOSQUE
Maison à MANOSQUE
Maison à MANOSQUE
Maison à MANOSQUE
Maison à MANOSQUE
Maison à MANOSQUE
Ce site est protégé par reCAPTCHA la Politique de confidentialité et les Conditions d’utilisation de Google s’appliquent.
Obtenir un prêt immobilier au meilleur taux ?

En poursuivant votre navigation sans modifier vos paramètres, vous acceptez l'utilisation de cookies susceptibles de réaliser des statistiques de visite. Cliquez ici pour plus d'informations