Bénéficiez des services de nos partenaires locaux soigneusement sélectionnés
pour vous accompagner dans votre parcours d'achat immobilier

Commerce 804m² à mellac

— Mellac 29300 —
n.c. €
804 m²
parking

Nos partenaires locaux
A VENDRE - LOCAL D'ACTIVITE - 804 M2 - QUIMPERLE / MELLAC

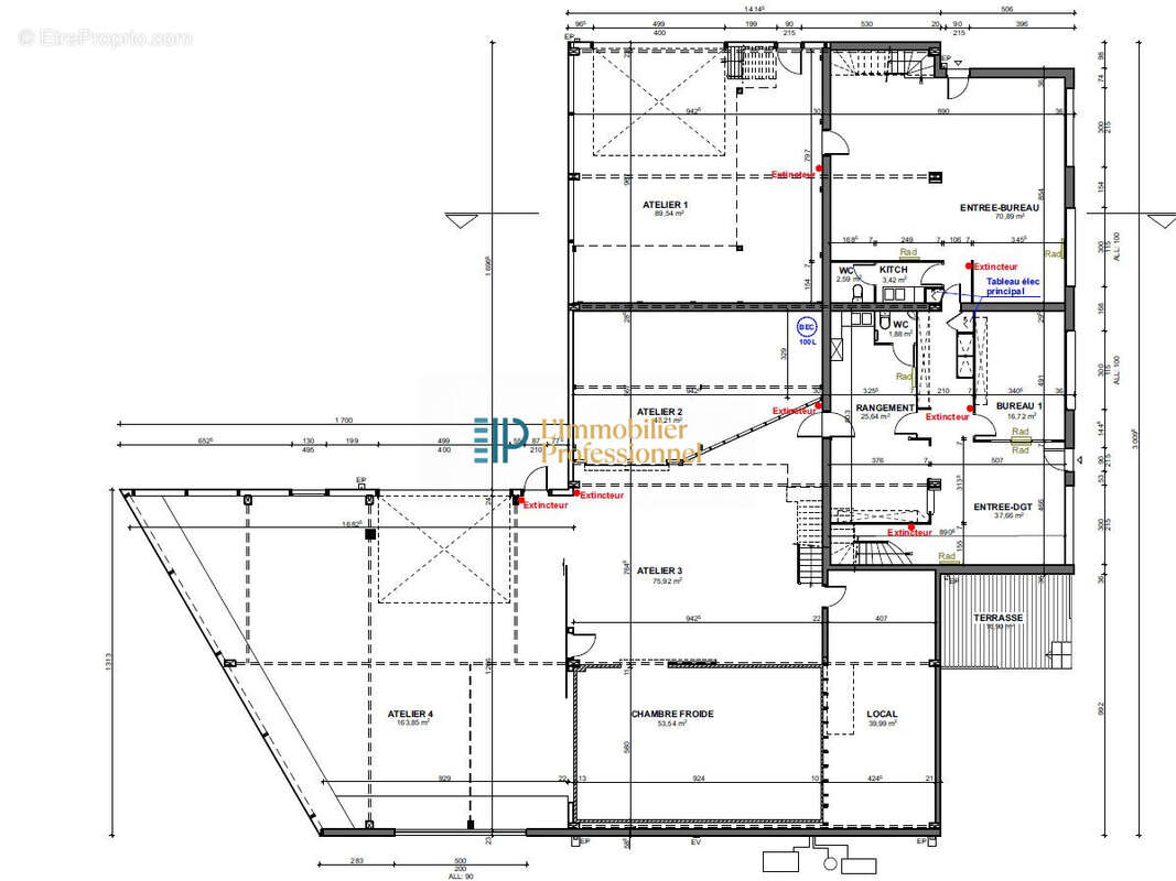
Au coeur de la zone artisanale et commerciale de Kervidanou, à la vente, un bâtiment à usage commercial et artisanal de 804 m² environ comprenant :
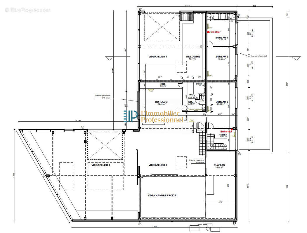
Sur la gauche – un hall d'exposition avec bureau à l'étage et trois bureaux au rez de chaussée, une zone atelier avec réserve et chambre froide, espace vestiaire/sanitaires et deux mezzanines.
Une cour fermée avec zone couverte de stockage.
Sur la droite – un hall d'exposition, deux bureaux à l'étage, sanitaire, une zone atelier avec mezzanine.
Parcelle entièrement clôturée d'une surface de 2 845 m².

Possibilité de diviser en 2 lots
Lot N° 1 – comprenant 111 m² de bureaux – 90 m² d'atelier + 42 m² de mezzanine environ
Lot N° 2 – comprenant 172 m² de bureaux + atelier et chambre froide pour 380 m² environ

Classe énergie A, Classe climat A. Les informations sur les risques auxquels ce bien est exposé sont disponibles sur le site Géorisques : georisques.gouv.fr. .
Les informations sur les risques naturels, miniers, ou technologiques, auxquels ces biens sont exposés, sont disponibles sur le site www.georisques.gouv.fr
Voir plus

Référence: VP2310-IMMOPROBZH
Honoraires d'agence de 7% à la charge de l'acquéreur
Barème des honoraires
DPE
A
B
C
D
E
F
G
GES
A
B
C
D
E
F
G

Prêt immobilier

Vous souhaitez connaître votre capacité d’emprunt et trouver le meilleur crédit immobilier ?
Réaliser une simulation gratuite

Commerce à MELLAC
Commerce à MELLAC
Commerce à MELLAC
Commerce à MELLAC
Commerce à MELLAC
Commerce à MELLAC
Commerce à MELLAC
Commerce à MELLAC
Commerce à MELLAC
Ce site est protégé par reCAPTCHA la Politique de confidentialité et les Conditions d’utilisation de Google s’appliquent.
Obtenir un prêt immobilier au meilleur taux ?

En poursuivant votre navigation sans modifier vos paramètres, vous acceptez l'utilisation de cookies susceptibles de réaliser des statistiques de visite. Cliquez ici pour plus d'informations