Bénéficiez des services de nos partenaires locaux soigneusement sélectionnés
pour vous accompagner dans votre parcours d'achat immobilier

Villa pereire - maison de standing - 151,85m2

— Saint-Germain-En-Laye 78100 —
1 869 000 €
152 m² / 209 m²
7 pièces
parkingbalcon/terrassejardin

Nos partenaires locaux
Découvrez cette charmante maison de 151.85 m2 habitables, idéalement située à deux pas de la station de tramway Ligne 13 'Lisière Pereire'. Alliant confort, espace et praticité, cette propriété est parfaite pour une famille en quête de sérénité tout en restant proche des commodités.
Description détaillée
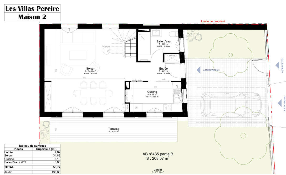
Au rez-de-jardin, l'entrée vous mène au séjour / salle à manger baigné de lumière naturelle et traversant est-ouest. Vous apprécierez également la cuisine indépendante à aménager à votre goût. Cet espace s'ouvre sur une terrasse de 16.41 m2 et un jardin arboré de 135 m2. Une salle d'eau avec WC complète ce niveau pour plus de praticité.
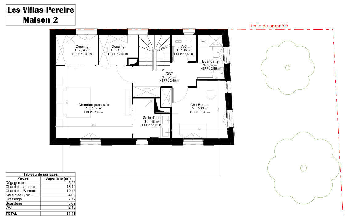
Au 1er étage, la maison offre une suite parentale spacieuse et sa propre salle d'eau privative avec wc et 2 dressings, un véritable havre de paix pour les parents. À ce même niveau se trouvent une pièce pouvant servir de bureau ou de chambre supplémentaire, une buanderie, ainsi qu’un WC séparé.
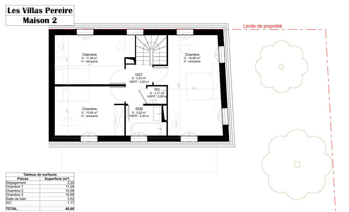
Au 2ème étage, l’espace nuit est parfaitement adapté pour les enfants avec 3 grandes chambres, une salle de bains et un WC séparé.
Caractéristiques extérieures et localisation
La maison repose sur un terrain global de 208.57m2, dont le jardin privé de 135m2 constitue un véritable atout pour profiter de la nature au quotidien.
Située à seulement quelques minutes de la station de tramway 'Lisière Pereire', cette maison bénéficie d’une excellente accessibilité vers Paris et les environs. Proche des écoles, des commerces et des infrastructures sportives, elle allie vie urbaine et calme résidentiel.
Ne manquez pas cette opportunité rare de vivre dans un cadre recherché à Saint-Germain-en-Laye. Cette maison est prête à accueillir votre famille et à devenir le lieu de nombreux souvenirs.
Pour plus d'informations, contactez-nous dès aujourd'hui !
Voir plus

Honoraires à la charge du vendeur.
Barème des honoraires

Prêt immobilier

Vous souhaitez connaître votre capacité d’emprunt et trouver le meilleur crédit immobilier ?
Réaliser une simulation gratuite

Maison à SAINT-GERMAIN-EN-LAYE
Maison à SAINT-GERMAIN-EN-LAYE
Maison à SAINT-GERMAIN-EN-LAYE
Maison à SAINT-GERMAIN-EN-LAYE
Maison à SAINT-GERMAIN-EN-LAYE
Ce site est protégé par reCAPTCHA la Politique de confidentialité et les Conditions d’utilisation de Google s’appliquent.
Obtenir un prêt immobilier au meilleur taux ?

En poursuivant votre navigation sans modifier vos paramètres, vous acceptez l'utilisation de cookies susceptibles de réaliser des statistiques de visite. Cliquez ici pour plus d'informations