Maison à vendre à figari ogliastrello, au calme avec jardin et garage

— Figari 20114 —
372 000 €
100 m² / 1 500 m²
4 pièces
parkingbalcon/terrassejardin

Située à Figari dans le hameau d'Ogliastrello, cette maison de 98 m2 bénéficie d’un emplacement recherché dans un secteur calme et préservé, tout en restant à proximité de l’aéroport, des commodités et des plages.
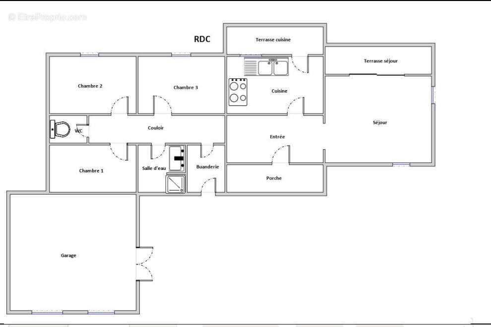
Dès l’entrée, la maison offre une distribution claire et fonctionnelle des espaces. Elle dessert d’un côté l’espace de vie et de l’autre l’espace nuit, assurant une organisation confortable au quotidien.
L’espace de vie se compose d’un salon aux beaux volumes, mis en valeur par une charpente apparente. La pièce est lumineuse, grâce à ses nombreuses ouvertures, et bénéficie d’une exposition plein Sud. Une cheminée à insert ainsi qu’une climatisation réversible dans le salon garantissent un confort optimal en toute saison. La cuisine indépendante permet de conserver des espaces bien définis.
L’espace nuit comprend trois chambres, une salle d’eau et des WC indépendants, répondant aux besoins d’une famille. Une buanderie complète l’ensemble.
La maison est édifiée sur un terrain d’environ 1 500 m2, offrant de l’espace, de la tranquillité et de multiples possibilités d’aménagement extérieur. Un garage d’environ 30 m2 vient compléter ce bien, idéal pour le stationnement, le stockage ou un futur atelier.
Construite au début des années 80, la maison est habitable en l’état et repose sur une structure saine. Des travaux de rénovation sont à prévoir afin d’actualiser les prestations et de valoriser pleinement le potentiel de ce bien.
Une opportunité rare pour acquéreurs en recherche d’une maison à Figari avec terrain, dans un environnement de qualité, à personnaliser selon leurs projets
Voir plus

Référence: 142
Honoraires d'agence de 6.29% à la charge de l'acquéreur
Barème des honoraires
DPE
A
B
C
D
E
F
G
GES
A
B
C
D
E
F
G

Prêt immobilier

Vous souhaitez connaître votre capacité d’emprunt et trouver le meilleur crédit immobilier ?
Réaliser une simulation gratuite

Maison à FIGARI
Maison à FIGARI
Maison à FIGARI
Maison à FIGARI
Maison à FIGARI
Maison à FIGARI
Maison à FIGARI
Maison à FIGARI
Maison à FIGARI
Maison à FIGARI
Maison à FIGARI
Maison à FIGARI
Maison à FIGARI
Maison à FIGARI
Maison à FIGARI
Maison à FIGARI
Maison à FIGARI
Maison à FIGARI
Maison à FIGARI
Maison à FIGARI
Maison à FIGARI
Maison à FIGARI
Maison à FIGARI
Maison à FIGARI
Ce site est protégé par reCAPTCHA la Politique de confidentialité et les Conditions d’utilisation de Google s’appliquent.
Obtenir un prêt immobilier au meilleur taux ?

En poursuivant votre navigation sans modifier vos paramètres, vous acceptez l'utilisation de cookies susceptibles de réaliser des statistiques de visite. Cliquez ici pour plus d'informations