Bénéficiez des services de nos partenaires locaux soigneusement sélectionnés
pour vous accompagner dans votre parcours d'achat immobilier

Appartement

— Marseille-12e 13012 —
285 000 €
70 m²
3 pièces
balcon/terrasse

Nos partenaires locaux
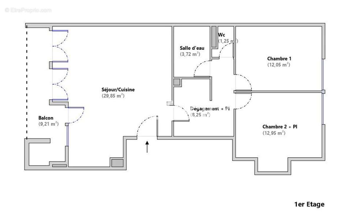
13012 - MARSEILLE - SAINT BARNABÉ - 3 PIECES - 2 CHAMBRES - 70.0m² - APPARTEMENT AVEC BALCON ET CAVE - LUMINOSITÉ - EXCELLENTE RENOVATION

efficity, l'agence qui estime votre bien en ligne, vous propose EN EXCLUSIVITÉ À proximité du centre de Saint-Barnabé, dans un environnement calme et recherché, cet appartement T3 de 70 m² est situé au 1er étage sans ascenseur d'une résidence sécurisée et bien entretenue, composée de seulement 33 lots.

La localisation est particulièrement appréciable grâce à la proximité immédiate des accès L2, du métro La Fourragère et des lignes de bus, permettant un quotidien pratique tout en conservant un cadre résidentiel.

L'appartement, traversant, bénéficie d'une belle luminosité naturelle. Il se compose d'une pièce de vie spacieuse de plus de 30 m², ouverte sur une cuisine entièrement équipée, créant un espace convivial et fonctionnel. L'ensemble s'ouvre sur un balcon de plus de 9 m² avec coin buanderie bien pensé, idéal pour profiter de l'extérieur. De nombreux rangements complètent le bien, ainsi qu'une cave.

Le logement a fait l'objet d'une rénovation complète en 2024, réalisée avec goût, ne nécessitant aucun travaux. Il dispose de double vitrage, d'une climatisation installée en 2022 et présente une performance énergétique classée C. La façade de l'immeuble a récemment été rénovée, garantissant une copropriété saine.

Les charges de copropriété, complètes et maîtrisées, incluent l'eau froide, l'eau chaude, le chauffage, l'entretien des parties communes et des espaces verts, ainsi que l'assurance, la gestion et le fonds ALUR.

Le stationnement est libre au sein de la résidence, avec la possibilité de louer un box.

Un appartement clé en main, lumineux et confortable, situé dans un secteur recherché, idéal pour une résidence principale.

Pour plus d'éléments ou organiser une visite contact Elie Dahan au [Coordonnées masquées] ou [Coordonnées masquées]
Les informations sur les risques auxquels ce bien est exposé sont disponibles sur le site Georisque : georisques. gouv. fr
Elie Dahan - EI - est Agent Commercial mandataire en immobilier, immatriculé au Registre Spécial des Agents Commerciaux du Tribunal de Commerce de Marseille 6e Arrondissement sous le n°993070200.
Siège social du mandant : effiCity, 48 avenue de Villiers - 75017 PARIS - Société par Actions Simplifiée, société au capital de 132 373,05 euros, immatriculée au RCS Paris 497 617 746 et titulaire de la Carte professionnelle CPI 75[Coordonnées masquées]02 025 - CCI Paris IDF - Caisse de Garantie : GALIAN Assurances 89 rue de la Boétie 75008 Paris
Voir plus

Référence: 201889
Bien en copropriété. Nombre de lots : 45. Charges de copropriété : 237 €.
Honoraires à la charge du vendeur.
Barème des honoraires
DPE
A
B
C
D
E
F
G
GES
A
B
C
D
E
F
G

Prêt immobilier

Vous souhaitez connaître votre capacité d’emprunt et trouver le meilleur crédit immobilier ?
Réaliser une simulation gratuite

Appartement à MARSEILLE-12E
Appartement à MARSEILLE-12E
Appartement à MARSEILLE-12E
Appartement à MARSEILLE-12E
Appartement à MARSEILLE-12E
Appartement à MARSEILLE-12E
Appartement à MARSEILLE-12E
Appartement à MARSEILLE-12E
Appartement à MARSEILLE-12E
Appartement à MARSEILLE-12E
Appartement à MARSEILLE-12E
Appartement à MARSEILLE-12E
Appartement à MARSEILLE-12E
Appartement à MARSEILLE-12E
Appartement à MARSEILLE-12E
Appartement à MARSEILLE-12E
Appartement à MARSEILLE-12E
Appartement à MARSEILLE-12E
Ce site est protégé par reCAPTCHA la Politique de confidentialité et les Conditions d’utilisation de Google s’appliquent.
Obtenir un prêt immobilier au meilleur taux ?

En poursuivant votre navigation sans modifier vos paramètres, vous acceptez l'utilisation de cookies susceptibles de réaliser des statistiques de visite. Cliquez ici pour plus d'informations