Bénéficiez des services de nos partenaires locaux soigneusement sélectionnés
pour vous accompagner dans votre parcours d'achat immobilier

Maison contemporaine avec piscine sur le toit marseille 9e

— Marseille-9e 13009 —
820 000 €
120 m² / 800 m²
5 pièces
parkingjardinpiscine

Nos partenaires locaux
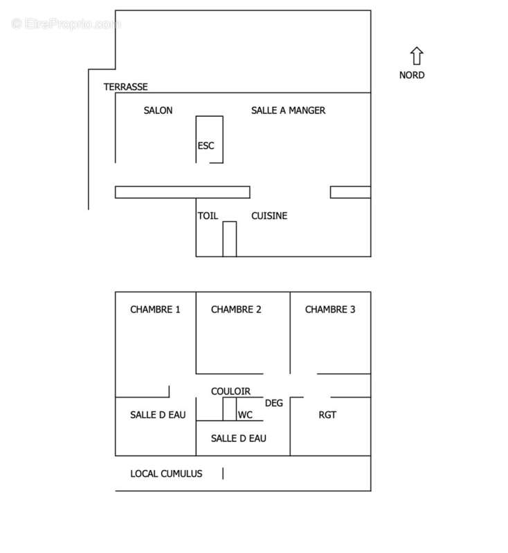
Découvrez cette maison contemporaine située au 55 boulevard Félibrige, dans le 9e arrondissement de Marseille. Offrant une vue magnifique, cette propriété en hauteur propose une surface habitable de 120 m2, comprenant une tres belle pièce à vivre , cuisine americaine équipée , un poêle à bois , une salle à manger, le tout ouvrant sur une terrasse de 40 m2 avec vue exceptionnelle sur toute la baie.
Au niveau inférieur, le coin nuit avec 3 chambres spacieuses et de grands rangements , la chambre parentale a sa propre salle d' eau et WC, une autre salle de bain et un wc indépendant , ainsi qu'un bureau qui pourrait etre transformé en une 4e chambre .
Profitez d'un vaste terrain de 800 m2 avec un terrain de pétanque, une cuisine d'été et son four à pizza , un très grand garage avec électricité , une cave saine de 25 m2 ,une piscine sur le toit pour des moments uniques en famille ou entre amis.
Une porte du jardin ouvre directement dans le parc des calanques et vous permet d'acceder à Morgiou en 30 minutes, à Luminy... des balades incroyables en partant de la maison.
Fibre,alarme, tous les volets sont électriques indépendants mais avec un master switch,double vitrage, climatisation , poele à bois et chaudiere à gaz, possibilité de sur élever le garage pour un studio indépendant.
Un bien rare à découvrir sans tarder, idéalement situé dans un secteur recherché de Marseille.

DPE C
mandat 1276
Pour tout renseignement, merci de contacter Caroline Contoz [Coordonnées masquées]
RSAC 803734953
Voir plus

Référence: 2176
Barème des honoraires
DPE
A
B
C
D
E
F
G
GES
A
B
C
D
E
F
G

Prêt immobilier

Vous souhaitez connaître votre capacité d’emprunt et trouver le meilleur crédit immobilier ?
Réaliser une simulation gratuite

Maison à MARSEILLE-9E
Maison à MARSEILLE-9E
Maison à MARSEILLE-9E
Maison à MARSEILLE-9E
Maison à MARSEILLE-9E
Maison à MARSEILLE-9E
Maison à MARSEILLE-9E
Maison à MARSEILLE-9E
Maison à MARSEILLE-9E
Maison à MARSEILLE-9E
Maison à MARSEILLE-9E
Maison à MARSEILLE-9E
Maison à MARSEILLE-9E
Maison à MARSEILLE-9E
Maison à MARSEILLE-9E
Maison à MARSEILLE-9E
Maison à MARSEILLE-9E
Maison à MARSEILLE-9E
Maison à MARSEILLE-9E
Maison à MARSEILLE-9E
Maison à MARSEILLE-9E
Maison à MARSEILLE-9E
Maison à MARSEILLE-9E
Maison à MARSEILLE-9E
Maison à MARSEILLE-9E
Maison à MARSEILLE-9E
Maison à MARSEILLE-9E
Maison à MARSEILLE-9E
Maison à MARSEILLE-9E
Maison à MARSEILLE-9E
Ce site est protégé par reCAPTCHA la Politique de confidentialité et les Conditions d’utilisation de Google s’appliquent.
Obtenir un prêt immobilier au meilleur taux ?

En poursuivant votre navigation sans modifier vos paramètres, vous acceptez l'utilisation de cookies susceptibles de réaliser des statistiques de visite. Cliquez ici pour plus d'informations