Bénéficiez des services de nos partenaires locaux soigneusement sélectionnés
pour vous accompagner dans votre parcours d'achat immobilier

Mas en pierre avec appartement indépendant et piscine au cœur de cabrières-d’avignon

— Cabrieres-D'avignon 84220 —
699 000 €
204 m² / 1 165 m²
9 pièces
parkingbalcon/terrassejardinpiscine

Nos partenaires locaux

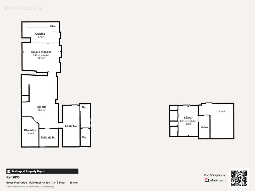
Au cœur du Luberon, dans le magnifique village de Cabrières-d’Avignon, à seulement 5 minutes de Gordes, découvrez ce superbe mas en pierre idéalement situé, proche de la nature et des commodités. Cette propriété de caractère offre un cadre de vie privilégié, mêlant charme authentique, luminosité et confort moderne.
La maison principale développe environ 156 m2 habitables et se compose d’un vaste séjour, d’une cuisine avec salle à manger conviviale, de 5 chambres et de 3 salles de bains. Exposée plein sud, elle bénéficie de belles hauteurs sous plafond, de grandes ouvertures donnant directement sur le jardin et d’une agréable luminosité tout au long de la journée.
Un appartement autonome d’environ 48 m2 vient compléter l’ensemble. Il comprend un séjour avec cuisine, une chambre et une salle d’eau, offrant un espace idéal pour accueillir famille, amis ou envisager un revenu locatif saisonnier.
Édifiée sur un terrain d’environ 1 165 m2 entièrement clos par de magnifiques murs en pierre, la propriété profite d’un environnement rare au cœur du village. Côté détente, vous apprécierez la piscine 8 x 4 m prolongée par un pool house d’environ et d'une superbe cuisine d’été, parfaits pour profiter des longues journées en Provence.proprietes.
Un double garage d’environ 27 m2 complète les prestations de ce mas, offrant stationnement et espaces de rangement supplémentaires. Venez découvrir cette belle propriété dans un village d’exception, au sein d’un cadre idyllique typique du Luberon.
Les informations sur les risques auxquels ce bien est exposé sont disponibles sur le site Géorisques : www.georisques.gouv.fr
Voir plus

Référence: 2830
Barème des honoraires
DPE
A
B
C
D
E
F
G
GES
A
B
C
D
E
F
G

Prêt immobilier

Vous souhaitez connaître votre capacité d’emprunt et trouver le meilleur crédit immobilier ?
Réaliser une simulation gratuite

Maison à CABRIERES-D'AVIGNON
Maison à CABRIERES-D'AVIGNON
Maison à CABRIERES-D'AVIGNON
Maison à CABRIERES-D'AVIGNON
Maison à CABRIERES-D'AVIGNON
Maison à CABRIERES-D'AVIGNON
Maison à CABRIERES-D'AVIGNON
Maison à CABRIERES-D'AVIGNON
Maison à CABRIERES-D'AVIGNON
Maison à CABRIERES-D'AVIGNON
Maison à CABRIERES-D'AVIGNON
Maison à CABRIERES-D'AVIGNON
Maison à CABRIERES-D'AVIGNON
Maison à CABRIERES-D'AVIGNON
Maison à CABRIERES-D'AVIGNON
Maison à CABRIERES-D'AVIGNON
Maison à CABRIERES-D'AVIGNON
Maison à CABRIERES-D'AVIGNON
Maison à CABRIERES-D'AVIGNON
Maison à CABRIERES-D'AVIGNON
Maison à CABRIERES-D'AVIGNON
Maison à CABRIERES-D'AVIGNON
Maison à CABRIERES-D'AVIGNON
Ce site est protégé par reCAPTCHA la Politique de confidentialité et les Conditions d’utilisation de Google s’appliquent.
Obtenir un prêt immobilier au meilleur taux ?

En poursuivant votre navigation sans modifier vos paramètres, vous acceptez l'utilisation de cookies susceptibles de réaliser des statistiques de visite. Cliquez ici pour plus d'informations