Appartement 4 pièces en duplex avec terrasses et parking.

— Orly 94310 —
460 800 €
91 m²
4 pièces
parkingbalcon/terrasse

Appartement de quatre pièces en duplex situé au premier étage d’une résidence à taille maîtrisée.La surface habitable est de 90,85 m2. Le bien dispose de deux terrasses de 6,72 m2 et 3,57 m2, soit 10,29 m2 d’espaces extérieurs.
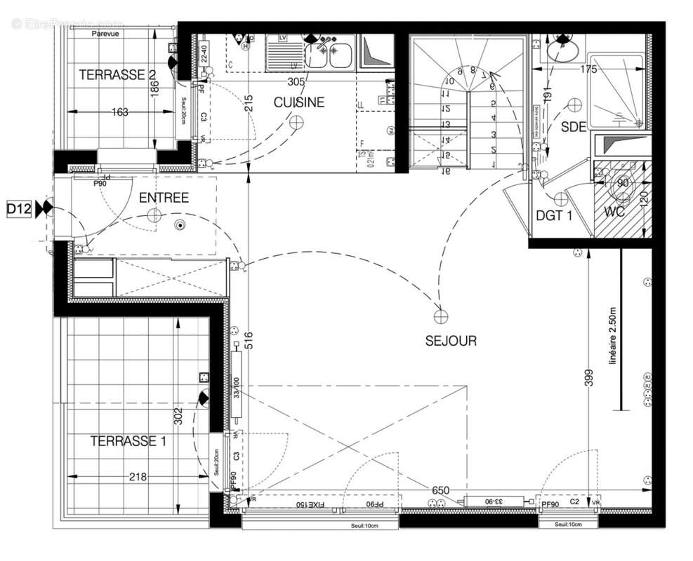
Le premier niveau comprend une entrée menant à un séjour de 36,04 m2, en lien direct avec les terrasses.La cuisine, séparée, développe une surface de 6,19 m2.Ce niveau comprend également une salle d’eau de 2,98 m2 et des toilettes indépendantes de 1,08 m2.
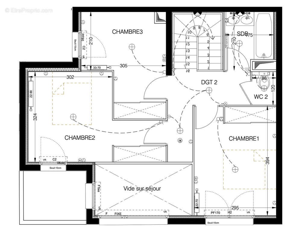
À l’étage, l’espace nuit se compose de trois chambres de 11,50 m2, 12,50 m2 et 9,68 m2.Un dégagement dessert une salle de bains de 3,35 m2 ainsi que des toilettes indépendantes de 1,05 m2.
L’appartement bénéficie de prestations de qualité assurant un usage fonctionnel et durable.Un emplacement de stationnement est inclus dans le prix.
La résidence est composée de bâtiments de faible hauteur organisés autour d’allées piétonnes et d’espaces paysagers.Elle propose des accès individualisés, des stationnements sécurisés et des locaux dédiés aux vélos, dans un environnement structuré et accessible.
Contactez-nous pour plus d'informations !
Frais de notaire offerts pour toute réservation
Images d'illustration, non contractuelles
Voir plus

Bien en copropriété. Nombre de lots : 26.
Barème des honoraires
DPE
A
B
C
D
E
F
G
GES
A
B
C
D
E
F
G

Prêt immobilier

Vous souhaitez connaître votre capacité d’emprunt et trouver le meilleur crédit immobilier ?
Réaliser une simulation gratuite

Appartement à ORLY
Appartement à ORLY
Appartement à ORLY
Appartement à ORLY
Appartement à ORLY
Ce site est protégé par reCAPTCHA la Politique de confidentialité et les Conditions d’utilisation de Google s’appliquent.
Obtenir un prêt immobilier au meilleur taux ?

En poursuivant votre navigation sans modifier vos paramètres, vous acceptez l'utilisation de cookies susceptibles de réaliser des statistiques de visite. Cliquez ici pour plus d'informations