Garlin - ancien hotel restaurant 17 pièce(s)

— Garlin 64330 —
249 800 €
400 m²
17 pièces
parkingbalcon/terrasse

Et si votre prochain projet immobilier devenait un véritable projet de vie ?

Au c½ur d'un village paisible, entre les vignobles du Madiran et les coteaux du Béarn,
Ancien Hôtel-Restaurant d'environ 400 m² offrant une base solide pour développer une activité de chambres d'hôtes, gîte ou location saisonnière, tout en profitant d'un environnement naturel et d'un attrait touristique reconnu.

Descriptif :
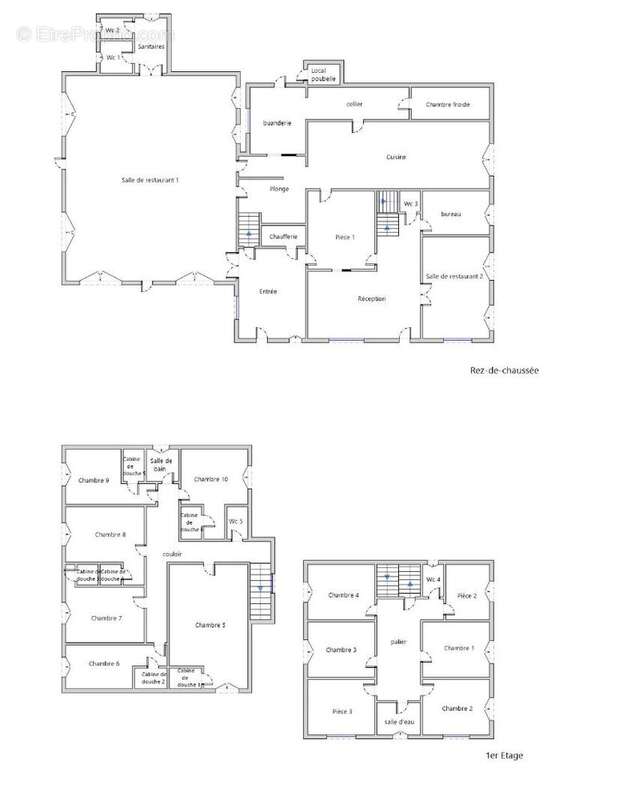
Rez-de-chaussée :
Vaste entrée, deux salles de réception / restaurant, bureau, sanitaires, cuisine professionnelle avec chambre froide, buanderie.

À l'étage :
Deux escaliers indépendants desservent les espaces nuit,
- 1er escalier : 6 chambres avec salle d'eau et WC communs
- 2ème escalier : 6 chambres avec salle d'eau & WC privatifs + sanitaires sur le palier

Extérieurs :
- Grande terrasse carrelée, Cour goudronnée
- Jardin sans vis-à-vis,
- Vue dégagée sur les coteaux du Béarn
- Grand parking goudronné, facilitant l'accueil de la clientèle
- 2 beaux hangars sécurisés avec portes séquentielles
- Abri attenant
- Portail électrique

Éléments techniques :
Menuiseries en double vitrage, Volets roulants, Assainissement individuel aux normes, Diagnostics corrects, DPE : D, Chauffage central au Gaz, Réseaux et installations fonctionnels, Jardin sans vis-à-vis

Un bâti sain, entretenu et fonctionnel bénéficiant de rénovations récentes et permettant d'envisager une reprise d'activité ou un nouveau projet sans lourds travaux structurels.

LES PLUS :
- Cadre naturel verdoyant et reposant,
- Vue ouverte sur les coteaux du Béarn,
- Secteur touristique recherché (bastides, châteaux, ½notourisme (Madiran), randonnées, patrimoine local..),
- Proximité du circuit automobile d'Aydie, générateur de fréquentation,
- À environ 1h de Pau et de Mont-de-Marsan,
- Écoles et transports scolaires à proximité, à 15mn de toutes commodités et pole de santé
- Un lieu déjà pensé pour accueillir, vivre et entreprendre

IDEAL pour :
- une Reconversion professionnelle ou changement de rythme,
- un Projet touristique ou d'accueil à taille humaine,
- un équilibre entre activité professionnelle et qualité de vie,
- des Amoureux d'un lieu authentique, fonctionnel et porteur de sens.

Un ensemble rare, prêt à écrire une nouvelle histoire.
Envie d'en savoir plus ou de programmer une visite ?

Contactez Evelyne au [Coordonnées masquées]
Annonce REF N° EMA2819 - Honoraires d'Agence à la charge de l'acquéreur soit 3,85 % TTC du prix du bien

Annonce rédigée par Evelyne MARTIN E.I., Agent Commercial, immatriculé RSAC du Tribunal de commerce de DAX sous le numéro : 899 976 922, pour le compte de MONZEO, marque déposée par NEAXIA dont le siège social se situe 2 rue des Phénix 64600 ANGLET, et détentrice de la carte T n° CPI 64[Coordonnées masquées]22 277 délivrée par la CCI de Bayonne Pays Basque
Les informations sur les risques auxquels ce bien est exposé sont disponibles sur le site Géorisques : www.georisques.gouv.fr
Voir plus

Référence: EMA2819
DPE
A
B
C
D
E
F
G
GES
A
B
C
D
E
F
G

Prêt immobilier

Vous souhaitez connaître votre capacité d’emprunt et trouver le meilleur crédit immobilier ?
Réaliser une simulation gratuite

Maison à GARLIN
Maison à GARLIN
Maison à GARLIN
Maison à GARLIN
Maison à GARLIN
Maison à GARLIN
Maison à GARLIN
Maison à GARLIN
Maison à GARLIN
Maison à GARLIN
Maison à GARLIN
Maison à GARLIN
Maison à GARLIN
Maison à GARLIN
Maison à GARLIN
Maison à GARLIN
Maison à GARLIN
Maison à GARLIN
Maison à GARLIN
Ce site est protégé par reCAPTCHA la Politique de confidentialité et les Conditions d’utilisation de Google s’appliquent.
Obtenir un prêt immobilier au meilleur taux ?

En poursuivant votre navigation sans modifier vos paramètres, vous acceptez l'utilisation de cookies susceptibles de réaliser des statistiques de visite. Cliquez ici pour plus d'informations