Bénéficiez des services de nos partenaires locaux soigneusement sélectionnés
pour vous accompagner dans votre parcours d'achat immobilier

Propriété familiale sur 1 hectares et demi de terrain

— Bourgoin-Jallieu 38300 —
820 000 €
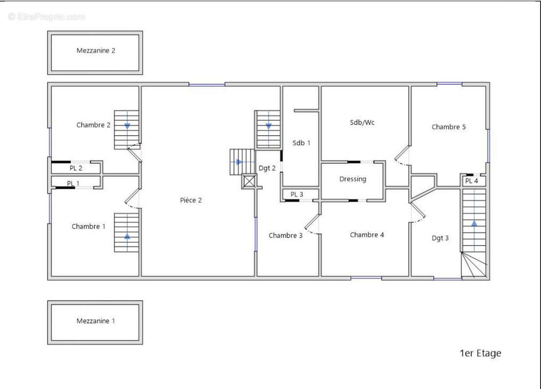
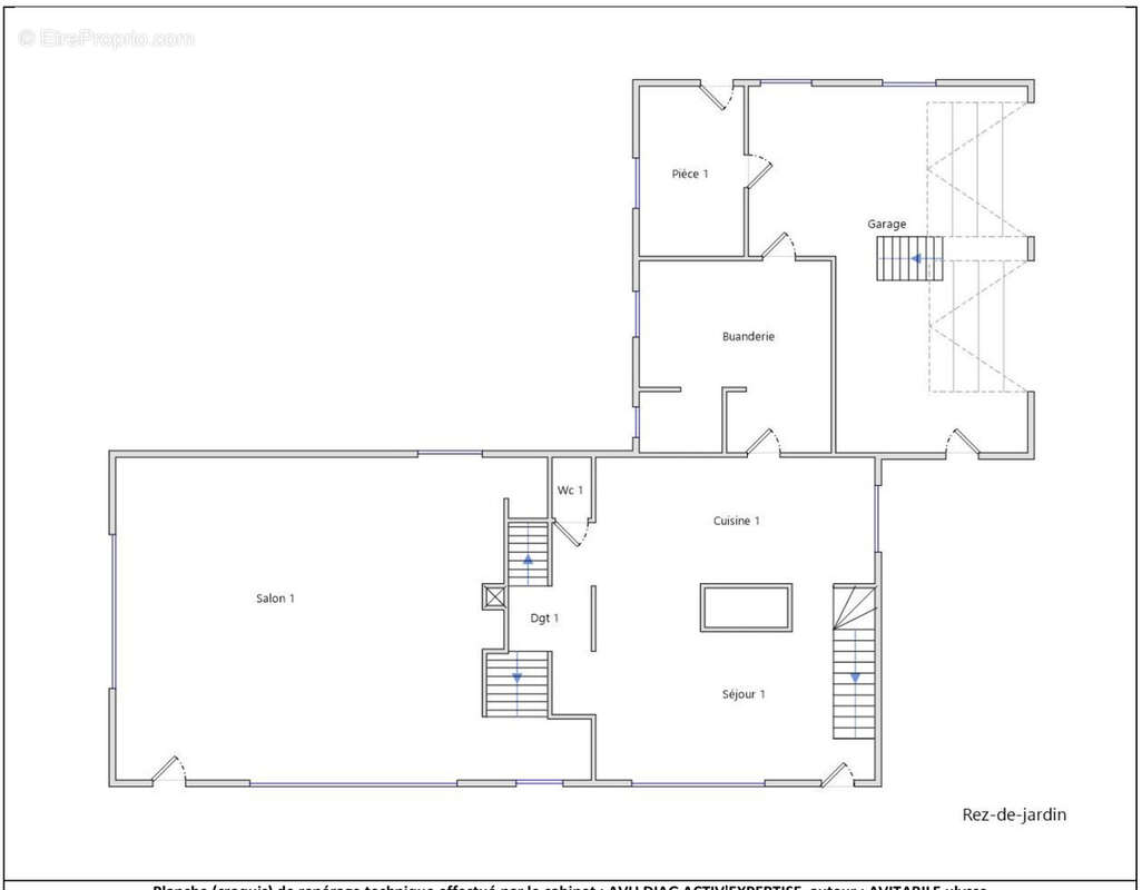
300 m² / 15 785 m²
9 pièces
parkingbalcon/terrassejardinpiscine

Nos partenaires locaux
Exclusivité « MADAME MONSIEUR IMMOBILIER »
Située sur la commune de Saint-Agnin, cette propriété exceptionnelle offre un cadre de vie incomparable.
Nichée sur un hectare et demi de terrain, elle bénéficie d’une vue panoramique à couper le souffle, idéale pour les amoureux de la nature et des espaces verts.

Dotée d’une surface habitable généreuse de 300 mètres carrés, cette demeure combine harmonieusement le charme de l’ancien avec le confort moderne.

L’architecture authentique de cette ancienne grange rénovée, réalisée avec des matériaux de haute qualité, confère à chaque espace une atmosphère chaleureuse et raffinée.

Les aménagements intérieurs ont été pensés pour offrir un confort optimal à ses résidents, avec des espaces de vie généreux et lumineux.

La propriété comprend également un double garage, une piscine avec pool house, offrant un espace de détente et de loisirs sans pareil.

De plus, une dépendance non attenante à la maison offre la possibilité d’exploiter cet espace pour du tourisme tel que Airbnb ou des chambres d’hôtes, offrant ainsi une opportunité supplémentaire de revenus sans compromettre l’intimité de la résidence principale.

Pour les passionnés d’équitation ou les amateurs de grands espaces, le terrain offre la possibilité d’accueillir des chevaux ou d’autres animaux, grâce à son hectare et demi de terrain aménageable .
Avec son emplacement privilégié, ses prestations haut de gamme et son potentiel d’aménagement, cette maison incarne le raffinement et le confort à l’état pur.

Pour plus d’informations ou pour planifier une visite, veuillez contactez Lindsay au [Coordonnées masquées]
Voir plus

Référence: 364
Honoraires à la charge du vendeur.
Barème des honoraires
DPE
A
B
C
D
E
F
G
GES
A
B
C
D
E
F
G

Prêt immobilier

Vous souhaitez connaître votre capacité d’emprunt et trouver le meilleur crédit immobilier ?
Réaliser une simulation gratuite

Maison à BOURGOIN-JALLIEU
Maison à BOURGOIN-JALLIEU
Maison à BOURGOIN-JALLIEU
Maison à BOURGOIN-JALLIEU
Maison à BOURGOIN-JALLIEU
Maison à BOURGOIN-JALLIEU
Maison à BOURGOIN-JALLIEU
Maison à BOURGOIN-JALLIEU
Maison à BOURGOIN-JALLIEU
Maison à BOURGOIN-JALLIEU
Maison à BOURGOIN-JALLIEU
Maison à BOURGOIN-JALLIEU
Maison à BOURGOIN-JALLIEU
Maison à BOURGOIN-JALLIEU
Maison à BOURGOIN-JALLIEU
Maison à BOURGOIN-JALLIEU
Maison à BOURGOIN-JALLIEU
Maison à BOURGOIN-JALLIEU
Maison à BOURGOIN-JALLIEU
Maison à BOURGOIN-JALLIEU
Maison à BOURGOIN-JALLIEU
Maison à BOURGOIN-JALLIEU
Maison à BOURGOIN-JALLIEU
Maison à BOURGOIN-JALLIEU
Maison à BOURGOIN-JALLIEU
Maison à BOURGOIN-JALLIEU
Maison à BOURGOIN-JALLIEU
Maison à BOURGOIN-JALLIEU
Maison à BOURGOIN-JALLIEU
Maison à BOURGOIN-JALLIEU
Maison à BOURGOIN-JALLIEU
Maison à BOURGOIN-JALLIEU
Maison à BOURGOIN-JALLIEU
Maison à BOURGOIN-JALLIEU
Maison à BOURGOIN-JALLIEU
Ce site est protégé par reCAPTCHA la Politique de confidentialité et les Conditions d’utilisation de Google s’appliquent.
Obtenir un prêt immobilier au meilleur taux ?

En poursuivant votre navigation sans modifier vos paramètres, vous acceptez l'utilisation de cookies susceptibles de réaliser des statistiques de visite. Cliquez ici pour plus d'informations