Bénéficiez des services de nos partenaires locaux soigneusement sélectionnés
pour vous accompagner dans votre parcours d'achat immobilier

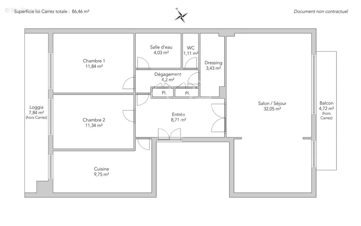
Paris 17e - niel - appartement à vendre - 4 pièces - 86,46m² carrez - 2 chambres - balcons - parking.

— Paris-17e 75017 —
1 020 000 €
86 m²
4 pièces
parkingbalcon/terrasse

Nos partenaires locaux
Avenue Niel, à proximité immédiate des transports et commerces, dans un immeuble récent et entretenu, nous vous proposons un bel appartement de 86,46m² loi Carrez au troisième étage par ascenseur.

À rénover, le plan traversant propose une entrée, un double séjour exposé sud-est donnant sur un balcon filant de 4,72m², deux chambres et une cuisine sur cour ouvrant sur un large balcon de 7,84m² à la vue dégagée et arborée, une salle de bains, un grand dressing et des toilettes séparées.

Une cave complète ce bien.
Possibilité d'acquérir en supplément une place de parking directement accessible dans l'immeuble.

Bien à fort potentiel après rénovation.
Voir plus

Référence: 2893WAGBOU
Barème des honoraires
DPE
A
B
C
D
E
F
G
GES
A
B
C
D
E
F
G

Prêt immobilier

Vous souhaitez connaître votre capacité d’emprunt et trouver le meilleur crédit immobilier ?
Réaliser une simulation gratuite

Appartement à PARIS-17E
Appartement à PARIS-17E
Appartement à PARIS-17E
Appartement à PARIS-17E
Appartement à PARIS-17E
Appartement à PARIS-17E
Appartement à PARIS-17E
Appartement à PARIS-17E
Appartement à PARIS-17E
Appartement à PARIS-17E
Appartement à PARIS-17E
Appartement à PARIS-17E
Appartement à PARIS-17E
Appartement à PARIS-17E
Ce site est protégé par reCAPTCHA la Politique de confidentialité et les Conditions d’utilisation de Google s’appliquent.
Obtenir un prêt immobilier au meilleur taux ?

En poursuivant votre navigation sans modifier vos paramètres, vous acceptez l'utilisation de cookies susceptibles de réaliser des statistiques de visite. Cliquez ici pour plus d'informations