Bénéficiez des services de nos partenaires locaux soigneusement sélectionnés
pour vous accompagner dans votre parcours d'achat immobilier

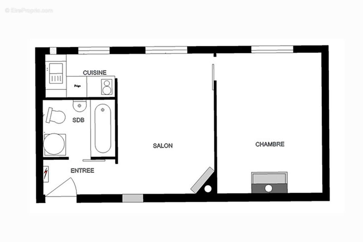
Paris montparnasse - bel appartement 2 pièces de 30 m2

— Paris-14e 75014 —
298 000 €
30 m²
2 pièces

Nos partenaires locaux
à la vente, ce charmant 2 Pièces au Coeur de Montparnasse Découvrez ce cosy T2 de 30m2 idéalement situé dans l'un des quartiers les plus prisés de Paris. Niché au coeur du boulevard Montparnasse, il offre un cadre de vie vibrant, à deux pas des cafés emblématiques et de la brasserie mythique La Coupole, des commerces, des transports et des jardins. Ses caractéristiques : Au 1er étage sur cour, au calme Un séjour avec parquet ancien, cuisine semi-ouverte moderne et aménagée, chambre confortable Rénové avec goût, murs blancs, parquet en bois, cheminées décoratives Une cave Les + : Emplacement exceptionnel au coeur de la Rive Gauche Proximité immédiate des métros, commerces et restaurants Charme parisien avec parquet et cheminées Ce bien est parfait pour un investissement locatif, un pied-à-terre parisien ou une résidence principale. Contactez-nous, pour organiser une visite ! Copropriété de 151 lots - dont 52 lots habitation. (Pas de procédure en cours). Charges annuelles : 1350 euros.
Voir plus

Référence: 981
Bien en copropriété. Nombre de lots : 151. Charges de copropriété : 1350 €.
Honoraires à la charge du vendeur.
Barème des honoraires
DPE
A
B
C
D
E
F
G
GES
A
B
C
D
E
F
G

Prêt immobilier

Vous souhaitez connaître votre capacité d’emprunt et trouver le meilleur crédit immobilier ?
Réaliser une simulation gratuite

Appartement à PARIS-14E
Appartement à PARIS-14E
Appartement à PARIS-14E
Appartement à PARIS-14E
Appartement à PARIS-14E
Appartement à PARIS-14E
Appartement à PARIS-14E
Appartement à PARIS-14E
Appartement à PARIS-14E
Ce site est protégé par reCAPTCHA la Politique de confidentialité et les Conditions d’utilisation de Google s’appliquent.
Obtenir un prêt immobilier au meilleur taux ?

En poursuivant votre navigation sans modifier vos paramètres, vous acceptez l'utilisation de cookies susceptibles de réaliser des statistiques de visite. Cliquez ici pour plus d'informations