Bénéficiez des services de nos partenaires locaux soigneusement sélectionnés
pour vous accompagner dans votre parcours d'achat immobilier

Toulouse - saint-aubin - charmant t5 en duplex de 113m2

— Toulouse 31000 —
589 000 €
113 m²
5 pièces

Nos partenaires locaux
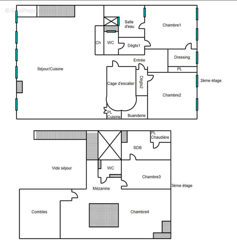
Dans le secteur prisé de Saint-Aubin, notre agence Paladia a le plaisir de vous présenter ce superbe appartement T5 en duplex d'une surface de 150,58 m² au sol, et 113.58 m² carrez au 2ème et dernier étage d'un bel immeuble ancien de Toulouse. En très bon état général, l'appartement se compose d'une entrée avec rangement, d'un magnifique séjour lumineux de 40 m² avec parquet , hauteur sous plafond orné de poutres apparentes et d'un mur en briques toulousaines créant une atmosphère très chaleureuse. La cuisine ouverte sur le séjour vous séduira par son design ainsi que par ses nombreux rangements. Fonctionnelle et conviviale cet espace est idéal pour partager des moments en famille et entre amis. Sur ce premier niveau vous profiterez d'une suite parentale avec salle d'eau et dressing, d'une deuxième chambre spacieuse, d'un coin buanderie ainsi que d'un wc séparé. A l'étage, vous profiterez de deux chambres supplémentaires ainsi que d'une salle d'eau et d'un wc. L'appartement est équipé d'un système de chauffage au gaz et d'un système de climatisation par pompe à chaleur. Dans un quartier dynamique, avec le marché saint aubin et l'ensemble des commerces du quartier ( boulangerie, fromager, boucher, supermarché...) à 250 mètres, le théâtre 3 T à 150 et à 500 mètres du métro Jean-Jaurès ( ligne A et B), cet appartement confortable est idéal pour les citadins ayant le goûts des espaces atypiques. Copropriété de 3 lots - dont 3 lots habitation. (Pas de procédure en cours). Charges annuelles : 1200 euros. Nicolas STILLMUNKES (EI) Agent Commercial - Numéro RSAC : 910293083 - TOULOUE.
Voir plus

Référence: 652
Bien en copropriété. Nombre de lots : 3. Charges de copropriété : 1200 €.
Honoraires à la charge du vendeur.
Barème des honoraires
DPE
A
B
C
D
E
F
G
GES
A
B
C
D
E
F
G

Prêt immobilier

Vous souhaitez connaître votre capacité d’emprunt et trouver le meilleur crédit immobilier ?
Réaliser une simulation gratuite

Appartement à TOULOUSE
Appartement à TOULOUSE
Appartement à TOULOUSE
Appartement à TOULOUSE
Appartement à TOULOUSE
Appartement à TOULOUSE
Appartement à TOULOUSE
Appartement à TOULOUSE
Appartement à TOULOUSE
Appartement à TOULOUSE
Appartement à TOULOUSE
Appartement à TOULOUSE
Ce site est protégé par reCAPTCHA la Politique de confidentialité et les Conditions d’utilisation de Google s’appliquent.
Obtenir un prêt immobilier au meilleur taux ?

En poursuivant votre navigation sans modifier vos paramètres, vous acceptez l'utilisation de cookies susceptibles de réaliser des statistiques de visite. Cliquez ici pour plus d'informations