Bénéficiez des services de nos partenaires locaux soigneusement sélectionnés
pour vous accompagner dans votre parcours d'achat immobilier

2 pièces vue dégagée !

— Pantin 93500 —
399 000 €
63 m²
2 pièces
parkingbalcon/terrasseascenseur

Nos partenaires locaux
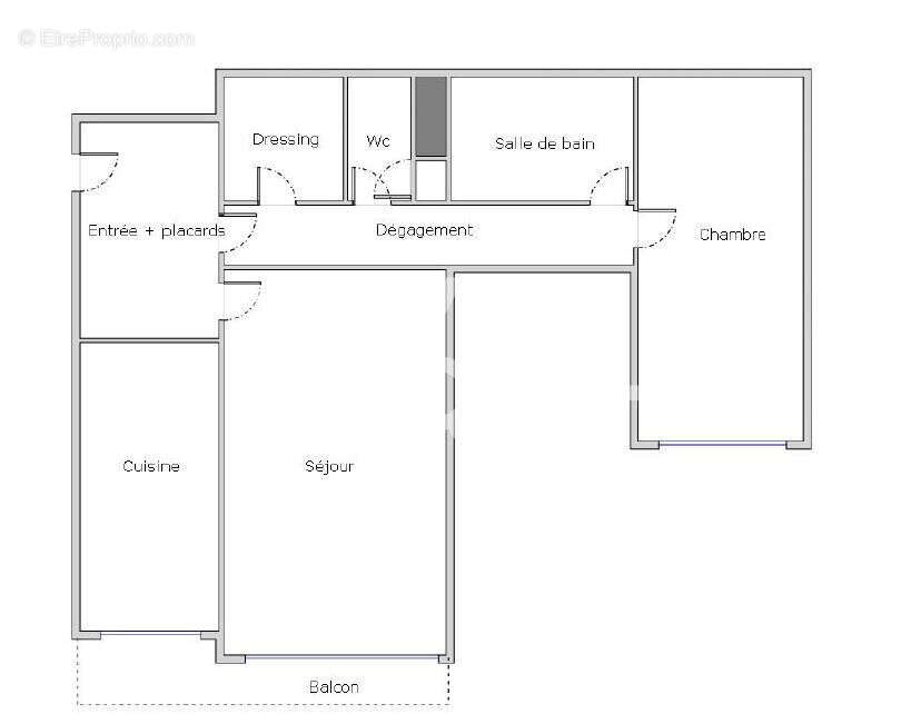
Exclusivité Guy Hoquet Pantin Vue dégagée sur le canal de l'Ourcq Au 7ème étage avec ascenseur dans la résidence "Bord de l'eau" avec une vue sur le canal, un bel immeuble bien entretenu et sécurisé, découvrez ce bel appartement de 2 pièces de 63m² Carrez avec son extérieur. En entrant vous aurez une entrée avec des placards de rangements desservant un séjour avec sa baie vitrée sur le balcon et sa belle vue, une cuisine séparée que vous pouvez ouvrir pour avoir une pièce de vie de 38 m², un couloir qui donne accès à une buanderie, une chambre avec un placard de 13m², une salle de bains avec WC séparés. Possible d'avoir séjour et cuisine de 39m² en enlevant des cloisons Une cave et un parking complètent le bien. Ses atouts : dans une résidence de 2.5 hectares avec son parc privé, lumineux, calme, local vélos, quartier recherché, à 2 pas de Paris en vélo. Coup de coeur assuré ! Copropriété de 1483 lots - dont 432 lots habitation. (Pas de procédure en cours). Charges annuelles : 3400 euros.
Voir plus

Référence: 282
Bien en copropriété. Nombre de lots : 1483. Charges de copropriété : 3400 €.
Honoraires à la charge du vendeur.
DPE
A
B
C
D
E
F
G
GES
A
B
C
D
E
F
G

Prêt immobilier

Vous souhaitez connaître votre capacité d’emprunt et trouver le meilleur crédit immobilier ?
Réaliser une simulation gratuite

Appartement à PANTIN
Appartement à PANTIN
Appartement à PANTIN
Appartement à PANTIN
Appartement à PANTIN
Appartement à PANTIN
Appartement à PANTIN
Appartement à PANTIN
Appartement à PANTIN
Appartement à PANTIN
Appartement à PANTIN
Ce site est protégé par reCAPTCHA la Politique de confidentialité et les Conditions d’utilisation de Google s’appliquent.
Obtenir un prêt immobilier au meilleur taux ?

En poursuivant votre navigation sans modifier vos paramètres, vous acceptez l'utilisation de cookies susceptibles de réaliser des statistiques de visite. Cliquez ici pour plus d'informations