Investissement locatif – st michel sur orge - résidence cap west - 6,01% de rentabilité.

— Saint-Michel-Sur-Orge 91240 —
90 000 €
28 m²
1 pièce
parkingbalcon/terrasse

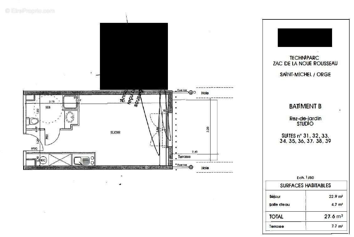
Réalisez un placement immobilier sécurisé en résidence affaires sans souci de gestion : le produit idéal pour bâtir un patrimoine immobilier tout en bénéficiant d'une rentabilité sécurisée par des loyers stables, dès l'acquisition. • Loyer annuel HT : 5 408 € • Rentabilité : 6,01 % • Gestionnaire : Cap West Vous bénéficiez du statut fiscal LMNP amortissable, permettant une exonération d'impôt sur vos revenus locatifs. Le bien est exploité par un gestionnaire professionnel (Cap West), engagé par un bail commercial, vous assurant le versement des loyers dès l'acquisition, que le logement soit loué ou non. Description du bien : Ce studio situé au rez-de-chaussée offre une disposition fonctionnelle et pratique : une entrée avec placard et kitchenette, une pièce principale, une salle d'eau avec WC, ainsi qu'une terrasse en jouissance privative. Un parking extérieur complète le lot. Le propriétaire bénéficie d'une occupation privée de deux semaines par an. À propos de la résidence : La résidence Cap West est une résidence affaires idéalement située à Saint-Michel-sur-Orge, à 45 minutes de Paris, dans un environnement calme, proche des commerces, avec un accès rapide au RER C, aux lignes de bus et aux axes routiers (N104). Son implantation proche des transports et des services constitue un atout majeur. L'établissement propose un ensemble de services globaux : accueil, vidéosurveillance, interphone, laverie, accès internet, parking, kit linge et vaisselle, espaces communs sécurisés. La copropriété comprend plusieurs dizaines de logements dédiés à la location d'affaires. À propos du gestionnaire occupant : Cap West, fondé en 2008 et filiale du groupe West Finance, est un spécialiste reconnu dans la gestion de résidences d'affaires en Île-de-France, assurant une gestion stable et professionnelle. Le Coin du LMNP - Frédéric Bertrand agent basé à NEUILLY SUR SEINE - [Coordonnées masquées] - Plus d'informations sur www.lecoindulmnp.fr réf. 22126 Bien soumis au statut juridique de la Copropriété. Charges annuelles de copropriété (Montant moyen annuel quote-part du budget prévisionnel vendeur) : 531,60 €. Pas de procédure en cours. Prix TTC et Honoraires à charge vendeur TTC.
Voir plus

Référence: 22126
Bien en copropriété. Charges de copropriété : 531 €.
Honoraires à la charge du vendeur.
Barème des honoraires

Prêt immobilier

Vous souhaitez connaître votre capacité d’emprunt et trouver le meilleur crédit immobilier ?
Réaliser une simulation gratuite

Appartement à SAINT-MICHEL-SUR-ORGE
Appartement à SAINT-MICHEL-SUR-ORGE
Ce site est protégé par reCAPTCHA la Politique de confidentialité et les Conditions d’utilisation de Google s’appliquent.
Obtenir un prêt immobilier au meilleur taux ?

En poursuivant votre navigation sans modifier vos paramètres, vous acceptez l'utilisation de cookies susceptibles de réaliser des statistiques de visite. Cliquez ici pour plus d'informations