Bénéficiez des services de nos partenaires locaux soigneusement sélectionnés
pour vous accompagner dans votre parcours d'achat immobilier

Investissement locatif – verrières-en-anjou – résidence affaires cap west - 8.09 % de rentabilité

— Pellouailles-Les-Vignes 49112 —
74 000 €
40 m²
2 pièces
parking

Nos partenaires locaux
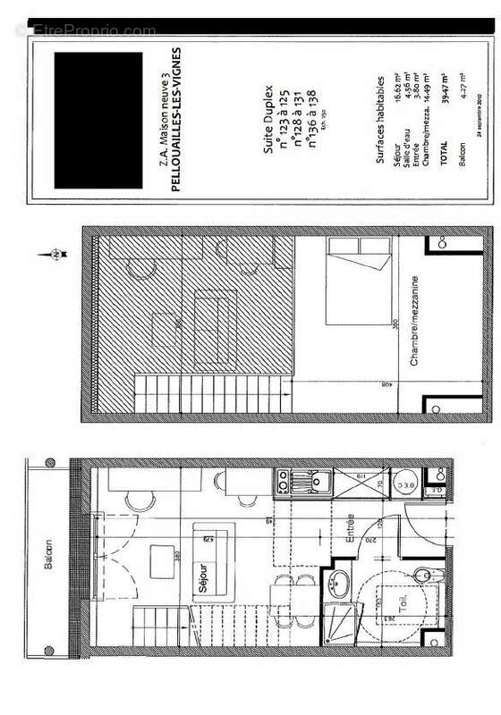
Réalisez un investissement locatif sécurisé en résidence d'Affaires sans souci de gestion : le produit idéal pour vous constituer un patrimoine immobilier tout en bénéficiant d'une rentabilité sécurisée par des loyers stables, dès l'acquisition. • Loyer annuel HT : 5 988 € • Rentabilité : 8.09 % • Gestionnaire : CAP WEST Vous bénéficiez du statut fiscal LMNP amortissable, permettant une exonération d'impôt sur vos revenus locatifs. Le bien est exploité par un gestionnaire professionnel (CAP WEST), engagé par un bail commercial, vous assurant le versement des loyers dès l'acquisition, que le logement soit loué ou non. Description du bien : Cet appartement T2 en duplex situé au 1er étage offre une disposition optimisée et agréable : entrée avec placards et kitchenette, salle d'eau avec w.c., séjour, escalier d'accès au niveau R+2, et mezzanine. Il profite en outre d'un balcon à jouissance privative et exclusive. Un stationnement extérieur est également attribué. À propos de la résidence : La résidence CAP WEST est une résidence d'Affaires, idéalement située à Verrières-en-Anjou, à moins de 15 minutes du centre-ville d'Angers et à 5 minutes du Parc-Expo, proche de la sortie A11 et de la halte TER du Vieux-Briollay. Elle accueille une clientèle d'affaires et propose des hébergements meublés avec services para-hôteliers. Sa localisation à proximité des axes routiers et des transports lui confère une forte attractivité. L'établissement propose une offre de services globale : accueil, connexion Wi-Fi, blanchisserie, salle de remise en forme, sécurité, parking extérieur sécurisé. La copropriété comprend environ 90 logements. À propos du gestionnaire occupant : CAP WEST, filiale du groupe West Finance, gère plus de 40 résidences de tourisme et d'affaires en France. Avec plus de 25 ans d'expérience, le gestionnaire bénéficie d'une expertise reconnue dans le secteur des résidences de services. Le coin du LMNP - Gregoire Touche agent basé à NEUILLY SUR SEINE - [Coordonnées masquées] - Plus d'informations sur [Coordonnées masquées] réf. 25702 Bien soumis au statut juridique de la Copropriété. Charges annuelles de copropriété (Montant moyen annuel quote-part du budget prévisionnel vendeur) : 925 €. Pas de procédure en cours. Honoraires à la charge du vendeur
Voir plus

Référence: 25702
Bien en copropriété. Charges de copropriété : 925 €.
Honoraires à la charge du vendeur.
Barème des honoraires
DPE
A
B
C
D
E
F
G
GES
A
B
C
D
E
F
G

Prêt immobilier

Vous souhaitez connaître votre capacité d’emprunt et trouver le meilleur crédit immobilier ?
Réaliser une simulation gratuite

Appartement à PELLOUAILLES-LES-VIGNES
Appartement à PELLOUAILLES-LES-VIGNES
Ce site est protégé par reCAPTCHA la Politique de confidentialité et les Conditions d’utilisation de Google s’appliquent.
Obtenir un prêt immobilier au meilleur taux ?

En poursuivant votre navigation sans modifier vos paramètres, vous acceptez l'utilisation de cookies susceptibles de réaliser des statistiques de visite. Cliquez ici pour plus d'informations