Bénéficiez des services de nos partenaires locaux soigneusement sélectionnés
pour vous accompagner dans votre parcours d'achat immobilier

Appartement t3 249 900€

— Saint-Barthelemy-D'anjou 49124 —
249 900 €
67 m²
3 pièces
parkingascenseur

Nos partenaires locaux
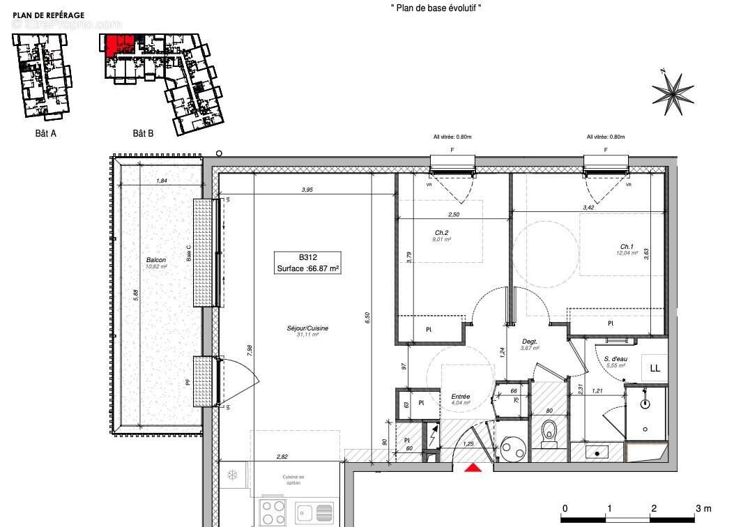
Découvrez ce bel appartement T3 neuf de 66,91 m², aux volumes parfaitement optimisés, idéal pour une résidence principale, un premier achat ou un investissement locatif. Situé aux portes d'Angers, dans un environnement calme et recherché, ce bien séduit par la qualité de ses prestations : matériaux soigneusement sélectionnés, finitions contemporaines, belle luminosité et confort de vie optimal. Il se compose de : Un séjour lumineux avec espace cuisine ouvert, Deux chambres confortables, Une salle d'eau moderne, Un balcon offrant une vue dégagée sur un cadre verdoyant et paisible. Vous bénéficierez également de la proximité immédiate des commerces, des transports et des axes rapides vers Angers, facilitant le quotidien. Implanté au sein d'une résidence neuve conforme à la réglementation RE2020, cet appartement garantit performance énergétique, économies et sérénité à long terme. Prix : 249 900 € Une opportunité rare à saisir rapidement ! Agent commercial RSAC ANGERS 885 348 490 - Honoraires à la charge du vendeur - Les informations sur les risques auxquels ce bien est exposé sont disponibles sur le site Géorisques : https://www.georisques.gouv.fr/. SAS REVO IMMO - MICHALOT Arnaud EI - O674 304 819 - Plus d'informations sur www.revo.immo (réf. 4901051262).
Voir plus

Référence: 2619
Honoraires à la charge du vendeur.
Barème des honoraires

Prêt immobilier

Vous souhaitez connaître votre capacité d’emprunt et trouver le meilleur crédit immobilier ?
Réaliser une simulation gratuite

Appartement à SAINT-BARTHELEMY-D'ANJOU
Appartement à SAINT-BARTHELEMY-D'ANJOU
Appartement à SAINT-BARTHELEMY-D'ANJOU
Appartement à SAINT-BARTHELEMY-D'ANJOU
Appartement à SAINT-BARTHELEMY-D'ANJOU
Ce site est protégé par reCAPTCHA la Politique de confidentialité et les Conditions d’utilisation de Google s’appliquent.
Obtenir un prêt immobilier au meilleur taux ?

En poursuivant votre navigation sans modifier vos paramètres, vous acceptez l'utilisation de cookies susceptibles de réaliser des statistiques de visite. Cliquez ici pour plus d'informations