Bénéficiez des services de nos partenaires locaux soigneusement sélectionnés
pour vous accompagner dans votre parcours d'achat immobilier

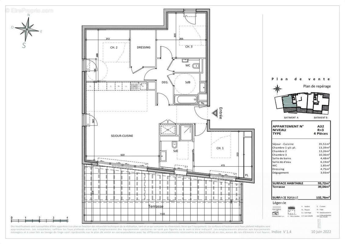
Appartement 94m² à cap-d'ail

— Cap-D'ail 06320 —
1 280 000 €
94 m²
4 pièces
balcon/terrasseascenseuraccès handicapé

Nos partenaires locaux
Dans une petite résidence de standing située en plein coeur de Cap D'Ail, à deux pas des commerces et tout proche des plages, en dernier étage, ce superbe appartement traversant de 4-pièces offre une très jolie vue panoramique sur la mer.
Avec ses prestations de standing, cet appartement se compose d'une entrée desservant un spacieux séjour/cuisine d'angle s'ouvrant par une large baie vitrée sur la terrasse bénéficiant d'une magnifique vue sur la mer et la ville.

Une première chambre à coucher en suite avec sa salle d'eau et son WC, disposant d'un grand placard, s'ouvre également sur la terrasse.

De l'autre côté, se trouve les deux autres chambres à coucher dont une avec un grand dressing, une salle de bains et un WC invités.

Prestations haut-de-gamme et finitions de choix, dalle grès cérame sur plot 60x60 cm, volets roulants électriques centralisés, parquet au sol en option, fermeture électrique des box individuels, vidéo-surveillance dans le hall et les parkings, gestion de l'éclairage et volets roulants dans toutes les pièces, rafraîchissement dans toutes les pièces.

Les informations sur les risques auxquels ce bien est exposé sont disponibles sur le site Géorisques http://georisques.gouv.fr

Honoraires à la charge du vendeur. Dans une copropriété de 29 lots. Aucune procédure n'est en cours. Non soumis au DPE. Les informations sur les risques auxquels ce bien est exposé sont disponibles sur le site Géorisques : georisques.gouv.fr.
Voir plus

Référence: VA16666-EXPFRANCE
Bien en copropriété. Nombre de lots : 29.
Honoraires à la charge du vendeur.
Barème des honoraires

Prêt immobilier

Vous souhaitez connaître votre capacité d’emprunt et trouver le meilleur crédit immobilier ?
Réaliser une simulation gratuite

Appartement à CAP-D'AIL
Appartement à CAP-D'AIL
Appartement à CAP-D'AIL
Appartement à CAP-D'AIL
Appartement à CAP-D'AIL
Ce site est protégé par reCAPTCHA la Politique de confidentialité et les Conditions d’utilisation de Google s’appliquent.
Obtenir un prêt immobilier au meilleur taux ?

En poursuivant votre navigation sans modifier vos paramètres, vous acceptez l'utilisation de cookies susceptibles de réaliser des statistiques de visite. Cliquez ici pour plus d'informations