Terrain 438m² à le tampon

— Le Tampon 97430 —
118 000 €
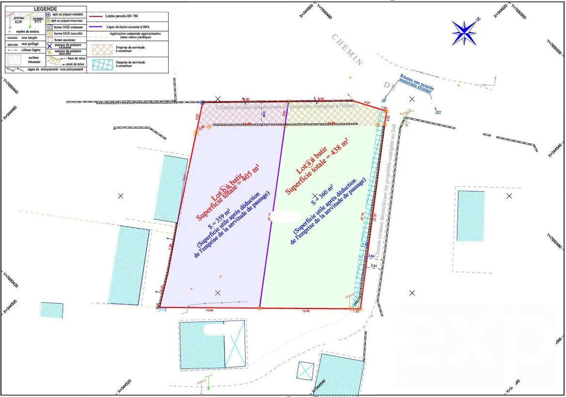
438 m²

À découvrir sur le secteur calme et résidentiel de Pont d'Yves, au Tampon, cette belle parcelle plate de 438 m².
Située à environ 700 mètres d'altitude, elle offre un environnement paisible et la possibilité d'orienter votre future construction pour profiter d'une vue mer et montagne.

? Informations principales :

- Superficie : 438 m²

- Viabilisé

- Terrain plat, facile à aménager

- Zone Uc (PLU) :

- Emprise au sol non réglementée

- Hauteur des constructions : 9 m à l'égout du toit / 13 m au faîtage

- Annexes et dépendances : 3,5 m max

? Atouts du secteur :

Cadre calme et verdoyant

Bonne accessibilité

Idéal pour un projet de résidence principale ou locatif

? Possibilité d'investissement avec le dispositif Girardin à l'IS :
Le dispositif Girardin à l'IS permet de bénéficier d'un avantage fiscal significatif en réalisant une construction neuve destinée à la location.
Vous profitez ainsi d'un crédit ou d'une réduction d'impôt sur les sociétés, sous réserve de respecter les conditions de mise en location (durée, loyers plafonnés, ressources des locataires).

? Et pour faciliter vos démarches, nous pouvons également vous mettre en relation avec un professionnel compétent pour créer la société nécessaire à ce type d'investissement.

? Une opportunité rare de conjuguer projet immobilier, défiscalisation et accompagnement clé en main !

Honoraires à la charge du vendeur. Les informations sur les risques auxquels ce bien est exposé sont disponibles sur le site Géorisques : georisques.gouv.fr.

Votre conseiller eXp France : José STANCA
Agent commercial (Entreprise individuelle)
RSAC 894206317 ST PIERRE
Voir plus

Référence: VT1072-EXPFRANCE
Honoraires à la charge du vendeur.
Barème des honoraires

Prêt immobilier

Vous souhaitez connaître votre capacité d’emprunt et trouver le meilleur crédit immobilier ?
Réaliser une simulation gratuite

Terrain à LE TAMPON
Terrain à LE TAMPON
Terrain à LE TAMPON
Terrain à LE TAMPON
Terrain à LE TAMPON
Ce site est protégé par reCAPTCHA la Politique de confidentialité et les Conditions d’utilisation de Google s’appliquent.
Obtenir un prêt immobilier au meilleur taux ?

En poursuivant votre navigation sans modifier vos paramètres, vous acceptez l'utilisation de cookies susceptibles de réaliser des statistiques de visite. Cliquez ici pour plus d'informations