Bénéficiez des services de nos partenaires locaux soigneusement sélectionnés
pour vous accompagner dans votre parcours d'achat immobilier

Appartement 85m² à gujan-mestras

— Gujan-Mestras 33470 —
506 000 €
85 m²
4 pièces

Nos partenaires locaux
Iad France - Marc Franc ([Coordonnées masquées]) vous propose : === Frais de notaire offerts jusqu'au 31 décembre 2025 ===

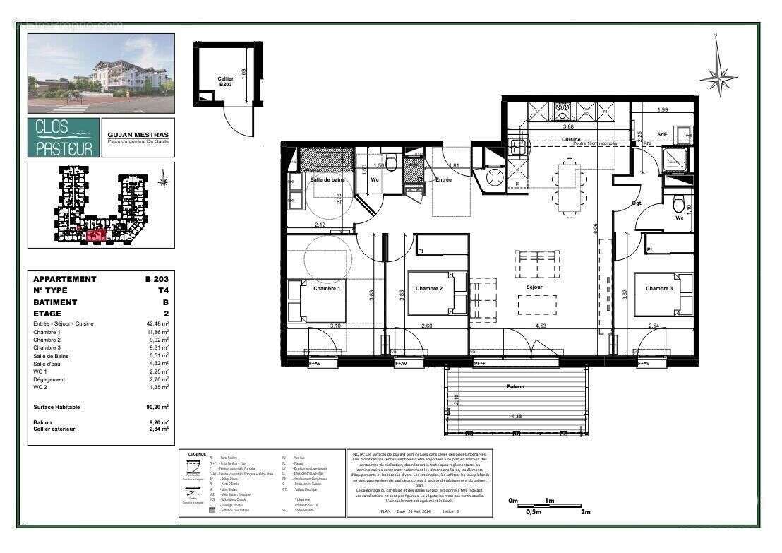
OPPORTUNITÉ -T4 - Résidence 'CLOS PASTEUR' à GUJAN-MESTRAS

Résidence « CLOS PASTEUR», une architecture balnéaire majestueuse sur le bassin d'ARCACHON.

- 4 pièces de 90 m² environ, R + 2,. 3 chambres,. Balcon de 9 m² environ,, cellier extérieur 3 m² environ,. 2 places de parking au sous-sol,. frais de notaire estimés à 16900 euros en moyenne (OFFERTS jusqu'au 31 décembre 2025)

Vous l'avez rêvé, ne manquez pas de concrétiser votre projet, profitez en famille de cette opportunité à GUJAN-MESTRAS où se conjuguent douceur de vie et territoire attractif.

La résidence 'CLOS PASTEUR', logements à l'accession libre, lumineux et confortables, dans un cadre idéal où tout est pensé pour que vous puissiez jouir de logements aux nombreux avantages.

Règlementation Environnementale RE 2020. Livraison prévisionnelle 2eme T 2026.

Contactez-moi pour en savoir plus et réserver !

Honoraires d'agence à la charge du vendeur. Bien non soumis au DPE. Les informations sur les risques auxquels ce bien est exposé sont disponibles sur le site Géorisques : www.georisques.gouv.fr. La présente annonce immobilière a été rédigée sous la responsabilité éditoriale de M. Marc Franc EI (ID 83540), mandataire indépendant en immobilier (sans détention de fonds), agent commercial de la SAS I@D France immatriculé au RSAC de VANNES sous le numéro 931732952, titulaire de la carte de démarchage immobilier pour le compte de la société I@D France SAS.
Retrouvez tous nos biens sur notre site internet. www.iadfrance.fr.
Informations LOI ALUR :
Honoraires charge vendeur. (gedeon_6727_32341560)
Voir plus

Référence: 1905566-5
Honoraires à la charge du vendeur.

Prêt immobilier

Vous souhaitez connaître votre capacité d’emprunt et trouver le meilleur crédit immobilier ?
Réaliser une simulation gratuite

Photo 1 - Appartement à GUJAN-MESTRAS
Photo 1
Photo 2 - Appartement à GUJAN-MESTRAS
Photo 2
Photo 3 - Appartement à GUJAN-MESTRAS
Photo 3
Photo 4 - Appartement à GUJAN-MESTRAS
Photo 4
Photo 5 - Appartement à GUJAN-MESTRAS
Photo 5
Photo 6 - Appartement à GUJAN-MESTRAS
Photo 6
Photo 7 - Appartement à GUJAN-MESTRAS
Photo 7
Ce site est protégé par reCAPTCHA la Politique de confidentialité et les Conditions d’utilisation de Google s’appliquent.
Obtenir un prêt immobilier au meilleur taux ?

En poursuivant votre navigation sans modifier vos paramètres, vous acceptez l'utilisation de cookies susceptibles de réaliser des statistiques de visite. Cliquez ici pour plus d'informations