Bénéficiez des services de nos partenaires locaux soigneusement sélectionnés
pour vous accompagner dans votre parcours d'achat immobilier

Appartement 79m² à marseille-6e

— Marseille-6e 13006 —
540 000 €
79 m²
4 pièces
parkingbalcon/terrasseascenseur

Nos partenaires locaux
Iad France - Pierre Magerand ([Coordonnées masquées]) vous propose : Appartement T4 avec balcon à Marseille.

Située rue de Montevideo, la résidence Héritage s'inscrit harmonieusement dans le tissu urbain historique du quartier. Inspirée de l'architecture marseillaise et pensée comme un îlot résidentiel intimiste, elle offre un cadre de vie rare en cOEur de ville, mêlant élégance contemporaine et calme à proximité immédiate des commerces, écoles et transports.

Un appartement raffiné :
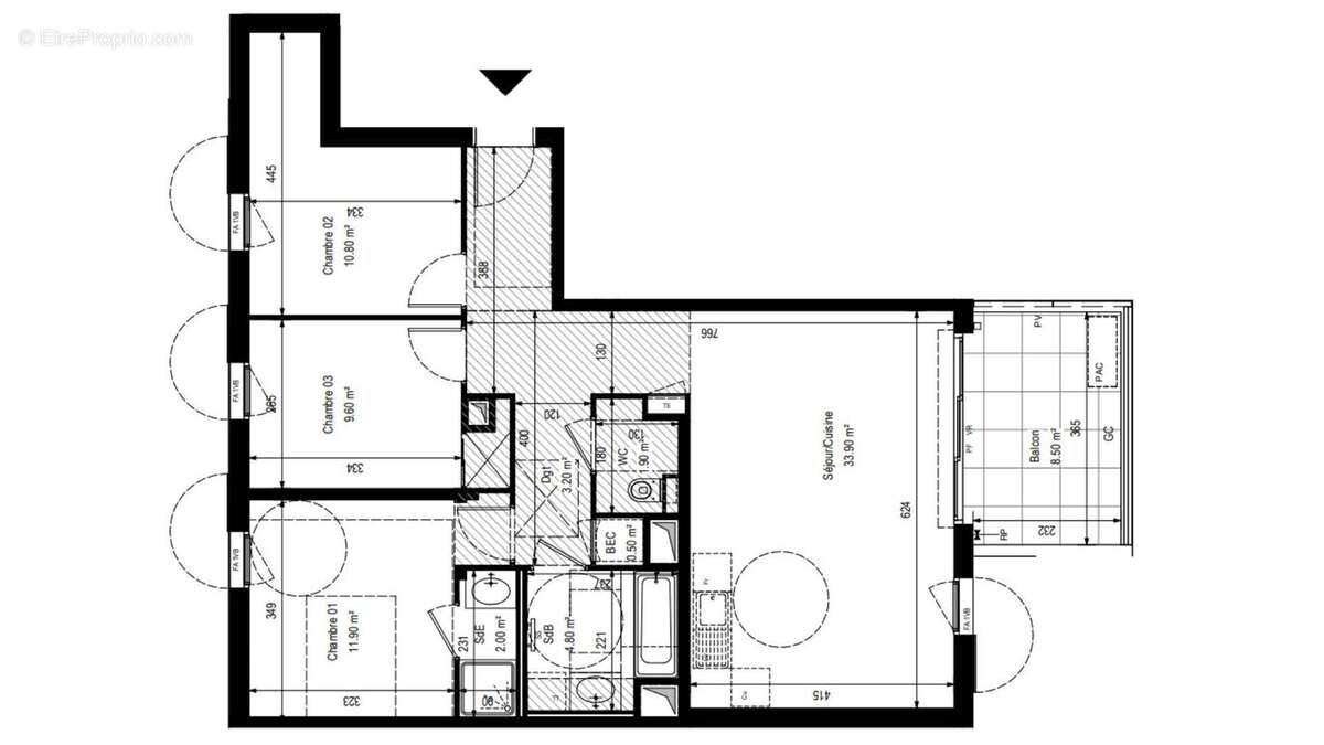
Situé au 1 er étage, cet appartement T4 de 79 m² environ habitables se prolonge par un balcon de 9 m² environ.

- Séjour / cuisine de 34 m² environ.
- Trois chambres confortables.
- Salle de bain moderne.
- Annexe incluse : un parking.

De belles prestations :
- Chauffage et rafraîchissement par pompe à chaleur individuelle triple service.
- Menuiseries de qualité avec double vitrage et volets roulants motorisés.
- Résidence sécurisée avec ascenseur, contrôle d'accès et stationnements en sous-sol.
- COEur d'îlot paysager apportant calme et fraîcheur au quotidien.

L'art de vivre à Marseille 6 :
- Quartier central et recherché, à proximité immédiate de la place Castellane.
- Commerces, écoles, marchés et transports accessibles à pied.
- Accès rapide au Vieux-Port, à la Corniche et aux plages.
- Environnement urbain vivant, alliant charme historique et dynamisme culturel.

N'hésitez pas à me contacter pour plus d'informations ou pour un accompagnement sur mesure.

Honoraires d'agence à la charge du vendeur. Bien non soumis au DPE. Les informations sur les risques auxquels ce bien est exposé sont disponibles sur le site Géorisques : www.georisques.gouv.fr. La présente annonce immobilière a été rédigée sous la responsabilité éditoriale de M. Pierre Magerand EI (ID 86098), mandataire indépendant en immobilier (sans détention de fonds), agent commercial de la SAS I@D France immatriculé au RSAC de Cusset sous le numéro 938729175, titulaire de la carte de démarchage immobilier pour le compte de la société I@D France SAS.
Retrouvez tous nos biens sur notre site internet. www.iadfrance.fr.
Informations LOI ALUR :
Honoraires charge vendeur. (gedeon_6727_32341637)
Voir plus

Référence: 1908575-1
Honoraires à la charge du vendeur.

Prêt immobilier

Vous souhaitez connaître votre capacité d’emprunt et trouver le meilleur crédit immobilier ?
Réaliser une simulation gratuite

Photo 1 - Appartement à MARSEILLE-6E
Photo 1
Photo 2 - Appartement à MARSEILLE-6E
Photo 2
Photo 3 - Appartement à MARSEILLE-6E
Photo 3
Photo 4 - Appartement à MARSEILLE-6E
Photo 4
Photo 5 - Appartement à MARSEILLE-6E
Photo 5
Photo 6 - Appartement à MARSEILLE-6E
Photo 6
Ce site est protégé par reCAPTCHA la Politique de confidentialité et les Conditions d’utilisation de Google s’appliquent.
Obtenir un prêt immobilier au meilleur taux ?

En poursuivant votre navigation sans modifier vos paramètres, vous acceptez l'utilisation de cookies susceptibles de réaliser des statistiques de visite. Cliquez ici pour plus d'informations