Bénéficiez des services de nos partenaires locaux soigneusement sélectionnés
pour vous accompagner dans votre parcours d'achat immobilier

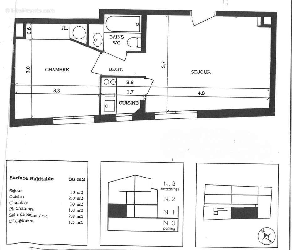
Appartement 36m² à montpellier

— Montpellier 34000 —
140 000 €
36 m²
2 pièces

Nos partenaires locaux
Montpellier secteur Clémenceau proche centre ville Joli type 2 de 36 m2 hab env au 1er étage d'une résidence calme et sécurisée. T2 composé d'une jolie pièce de vie lumineuse, d'une salle de bain avec wc, d'un coin cuisine et d'une belle chambre. Bien actuellement libre de toute occupation et location, idéal 1er achat ou investissement locatif. Bien en copropriété, pas de procédures en cours, prix de vente HAI 140 000 € les honoraires d'agence sont à la charge du vendeur.
'Les informations sur les risques auxquels ce bien est exposé sont disponibles sur le site Géorisques : www.georisques.gouv.fr'

Honoraires à la charge du vendeur. Dans une copropriété de 30 lots. Quote-part moyenne du budget prévisionnel 800 €/an. Aucune procédure n'est en cours. Classe énergie C, Classe climat B Montant moyen estimé des dépenses annuelles d'énergie pour un usage standard, établi à partir des prix de l'énergie de l'année 2022 : entre 500.00 et 800.00 €. Les informations sur les risques auxquels ce bien est exposé sont disponibles sur le site Géorisques : georisques.gouv.fr.
Voir plus

Référence: VA5412-IDEACONSEIL
Bien en copropriété. Nombre de lots : 30. Charges de copropriété : 800 €.
Honoraires à la charge du vendeur.
DPE
A
B
C
D
E
F
G
GES
A
B
C
D
E
F
G

Prêt immobilier

Vous souhaitez connaître votre capacité d’emprunt et trouver le meilleur crédit immobilier ?
Réaliser une simulation gratuite

Appartement à MONTPELLIER
Appartement à MONTPELLIER
Appartement à MONTPELLIER
Appartement à MONTPELLIER
Appartement à MONTPELLIER
Appartement à MONTPELLIER
Appartement à MONTPELLIER
Ce site est protégé par reCAPTCHA la Politique de confidentialité et les Conditions d’utilisation de Google s’appliquent.
Obtenir un prêt immobilier au meilleur taux ?

En poursuivant votre navigation sans modifier vos paramètres, vous acceptez l'utilisation de cookies susceptibles de réaliser des statistiques de visite. Cliquez ici pour plus d'informations