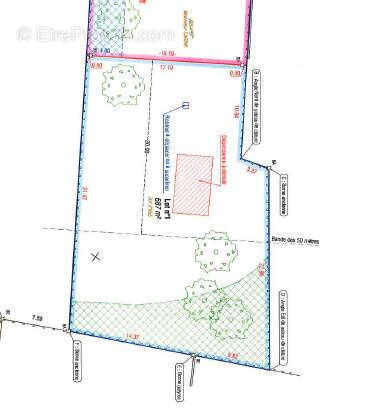
Terrain hors lotissement de 687 m2

— La Chapelle-Saint-Mesmin 45380 —
109 900 €
687 m²
jardin

Terrain à bâtir à vendre - 687 m2 au calme Venez découvrir ce magnifique terrain à bâtir de 687 m2, situé en second rang, au calme, et offrant un accès privé via un chemin d’accès. Ce terrain est hors lotissement et libre constructeur, vous offrant ainsi une grande liberté pour réaliser votre projet immobilier.
Caractéristiques principales :


Surface totale : 687 m2 (hors chemin d'accès)


Façade : 22 m


Emprise au sol : supérieure à 200 m2


Surface de pleine terre : 60 % à laisser intacte


Construction possible jusqu’à 9 m au faîtage et 6 m à l'égout de toit


Exposition sud en façade arrière


Ce terrain vous permet de construire une belle maison familiale ou même deux petites maisons, selon vos besoins. Avec la possibilité de construire un étage 'droit', vous bénéficierez d’un beau potentiel d'aménagement, tout en respectant les normes d’urbanisme.
Situation idéale : Idéalement situé, il bénéficie d’un cadre calme tout en étant à proximité de toutes les commodités. La ligne de bus 51 est à quelques mètres à pied, et la gare SNCF toute proche vous permet de rejoindre le centre d’Orléans en seulement 8 minutes.
Ce terrain est une opportunité rare pour réaliser le projet de vos rêves dans un secteur prisé. Ne laissez pas passer cette chance de bâtir votre future maison dans un environnement agréable et accessible.
Pour plus d'informations ou pour organiser une visite, contactez-nous ! Retrouvez l'ensemble de nos annonces sur notre site www.success-immo.fr
Voir plus

Référence: 194
Honoraires d'agence de 7.75% à la charge de l'acquéreur
Barème des honoraires

Prêt immobilier

Vous souhaitez connaître votre capacité d’emprunt et trouver le meilleur crédit immobilier ?
Réaliser une simulation gratuite

Terrain à LA CHAPELLE-SAINT-MESMIN
Terrain à LA CHAPELLE-SAINT-MESMIN
Terrain à LA CHAPELLE-SAINT-MESMIN
Terrain à LA CHAPELLE-SAINT-MESMIN
Terrain à LA CHAPELLE-SAINT-MESMIN
Terrain à LA CHAPELLE-SAINT-MESMIN
Ce site est protégé par reCAPTCHA la Politique de confidentialité et les Conditions d’utilisation de Google s’appliquent.
Obtenir un prêt immobilier au meilleur taux ?

En poursuivant votre navigation sans modifier vos paramètres, vous acceptez l'utilisation de cookies susceptibles de réaliser des statistiques de visite. Cliquez ici pour plus d'informations